| 案例風格 | 現代簡約風格 | 案例戶型 | 平層 | 案例面積 | 140㎡ |
|---|---|---|---|---|---|
| 樓盤名稱 | 鴻運嘉園 | 設 計 師 | 蔣琛 | 案例造價 | 定制家|全包22萬 |
設計說明
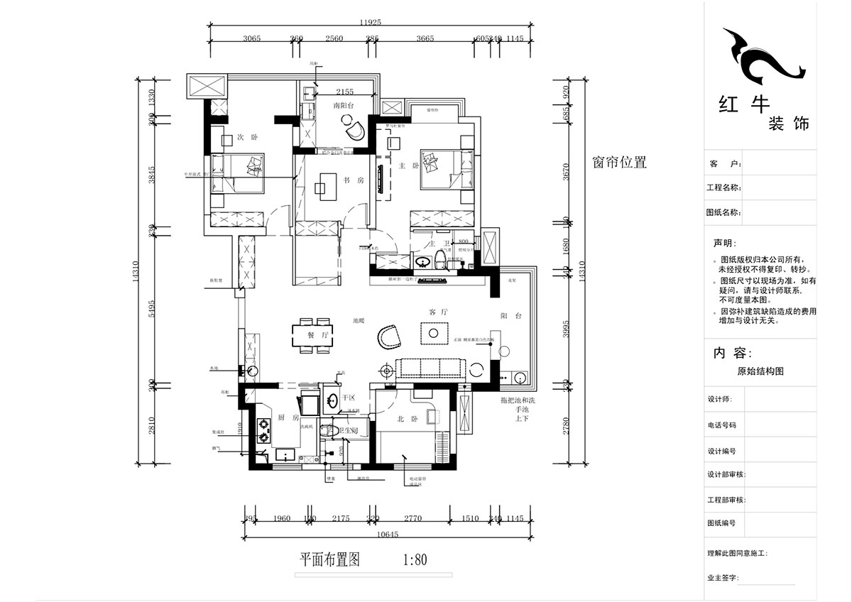
設計戶型:140㎡|4室2廳2衛
裝修類型:新房裝修
裝修方式:全包裝修
設計費服務費(元):1萬
施工費(元):10萬
主材、輔材的材料費總和(元):12萬
費用總和(元):22萬
主材品牌:L&D瓷磚、圣象地板、金豪森木門、開來櫥柜、摩恩潔具、奧普吊頂
開工日期:2022年07月22日
竣工日期:2022年11月22日
項目經理:錢新平
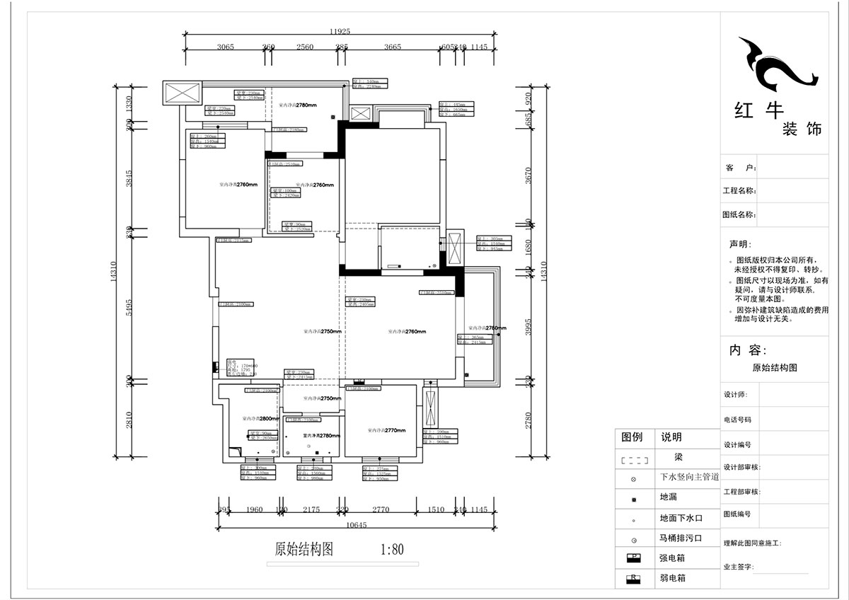
改造前建筑情況:
風格主要以簡約現代為主。
客戶對房子的要求就是收納功能要多,四房全部要布置成臥室,家里常駐人口就是5人,風格客戶比較偏向現代簡約,在設計上給客戶做的最大的改動就是廚房衛生間進行了重組,廚房的門改到了餐廳方向,這樣的動線更符合生活,衛生間做成干濕分區,廚房墻體重建,其中一邊墻體是承重墻,所以還要考慮冰箱放在廚房,進門尺寸不受影響。
方案設計說明:
簡約的生活方式讓我們拋棄繁雜,認清自己,接納自己。黑白灰的簡約空間里,呈現更多的理性情感。取名寫意,寓意不受束縛,忠于本心,這也是我們對主人公的祝福。




家裝攻略
- 二手房裝修舊房翻新太難了,想要裝修不求人?建議收藏!
- 工地巡檢:步履不停,以行動兌現品質承諾,嚴格把控每一環!
- 避坑指南:裝修坑多、水深?歸根結底五個字:信息不對稱
- 工地巡檢日:標準&品質是底線,專業&用心是態度!
- 好評如潮:曬一波熱乎的客戶評價,親身體驗過才最具有發言權!
- 最好的口碑,莫過于裝修業主的真實評價!
- 南京紅牛裝飾:始終如一,以品質說話,以服務鑄口碑!
- 再好的文案,都抵不過客戶的真實反饋!“三個最”【內附完工實景】
- 工地突擊巡檢|嚴把每一處細節,用心守護每一份安心!
- 南京紅牛裝飾再添榮譽,榮獲兩面錦旗,雙倍肯定,十分滿意!
- 南京115㎡現代簡約風裝修,每一處都將“實用”和“顏值”完美兼容!
- 裝修寶典:為何說企業文化是企業靈魂,是企業生存與發展的根本?
- 南京裝修公司紅牛裝飾工地突擊巡檢:一厘一毫堅守品質,一心一意守護新家!
- 南京裝修避坑指南:裝修材料的選擇,直接影響您入住新家的早晚?
- 南京比較靠譜的裝修公司?南京紅牛裝飾裝修寶典:新房裝修好多久可以入住?關鍵在于……
- 工地巡檢:雙節同慶,品質同行,嚴把每一道工序,用心守護夢想家!
- 避坑指南:老房改造二手舊房翻新注意這幾點,省心又省錢!
- 690億元!2025最后一批“國補”資金已下達!還可疊加企補!至高可省40000元!
- 【9月再添榮譽】業主說紅牛裝飾設計牛!監工牛!預算牛!超滿意!
- 九月秋意漸濃,南京紅牛裝飾工地巡檢步履不停,只為兌現品質承諾!


