| 案例風格 | 現代簡約風格 | 案例戶型 | 平層 | 案例面積 | 52㎡ |
|---|---|---|---|---|---|
| 樓盤名稱 | 水西門大街133號 | 設 計 師 | 南京紅牛裝飾 | 案例造價 | 定制家|全包8.3萬 |
設計說明
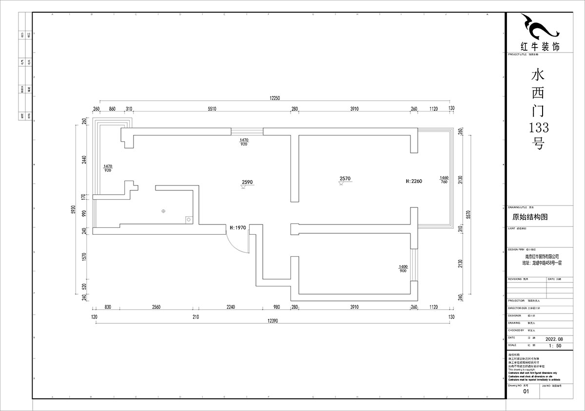
設計戶型:52㎡|2室1廳1廚1衛
裝修類型:老房裝修
裝修方式:全包裝修
設計費服務費(元):3000
施工費(元):4萬
主材、輔材的材料費總和(元):4.3萬
費用總和(元):8.3萬
主材品牌:L&D瓷磚、李洋地板、李洋木門、開來櫥柜、奧普吊頂
開工日期:2022年08月27日
竣工日期:2022年12月10日
項目經理:林永哨
改造前建筑缺陷:
1、衛生間很窄,干濕不分離
2、進門得鞋柜的柜子需要設計合理
3、廚房比較破舊,利用率差
方案設計說明:
本案設計在跟客戶溝通后整體風格定位為現代風格。
本戶型是2室1廳1廚1衛的戶型,業主要求廚房利用更合理點,進門寬敞些,衛生間能正常滿足家庭需求,還不擁擠,需要個大臺盆,房間做的開闊,想做個客廳出來,合理的位置多點儲藏空間。喜歡簡單,家里要看著清爽,在美觀得前提下,儲藏空間做的多點。
本案設計墻面用的是白色乳膠漆,家具柜體以橡木木色為主,配上白色的門板,讓空間更加溫馨,吊頂層高做高點,燈光設計講究空間的柔和,著重點光源的點綴,讓家更加的明亮溫馨。





家裝攻略
- 二手房裝修舊房翻新太難了,想要裝修不求人?建議收藏!
- 工地巡檢:步履不停,以行動兌現品質承諾,嚴格把控每一環!
- 避坑指南:裝修坑多、水深?歸根結底五個字:信息不對稱
- 工地巡檢日:標準&品質是底線,專業&用心是態度!
- 好評如潮:曬一波熱乎的客戶評價,親身體驗過才最具有發言權!
- 最好的口碑,莫過于裝修業主的真實評價!
- 南京紅牛裝飾:始終如一,以品質說話,以服務鑄口碑!
- 再好的文案,都抵不過客戶的真實反饋!“三個最”【內附完工實景】
- 工地突擊巡檢|嚴把每一處細節,用心守護每一份安心!
- 南京紅牛裝飾再添榮譽,榮獲兩面錦旗,雙倍肯定,十分滿意!
- 南京115㎡現代簡約風裝修,每一處都將“實用”和“顏值”完美兼容!
- 裝修寶典:為何說企業文化是企業靈魂,是企業生存與發展的根本?
- 南京裝修公司紅牛裝飾工地突擊巡檢:一厘一毫堅守品質,一心一意守護新家!
- 南京裝修避坑指南:裝修材料的選擇,直接影響您入住新家的早晚?
- 南京比較靠譜的裝修公司?南京紅牛裝飾裝修寶典:新房裝修好多久可以入住?關鍵在于……
- 工地巡檢:雙節同慶,品質同行,嚴把每一道工序,用心守護夢想家!
- 避坑指南:老房改造二手舊房翻新注意這幾點,省心又省錢!
- 690億元!2025最后一批“國補”資金已下達!還可疊加企補!至高可省40000元!
- 【9月再添榮譽】業主說紅牛裝飾設計牛!監工牛!預算牛!超滿意!
- 九月秋意漸濃,南京紅牛裝飾工地巡檢步履不停,只為兌現品質承諾!


