| 案例風格 | 現代簡約風格 | 案例戶型 | 平層 | 案例面積 | 223㎡ |
|---|---|---|---|---|---|
| 樓盤名稱 | 御江金城 | 設 計 師 | 劉曉芳 | 案例造價 | 半包¥233888 |
設計說明
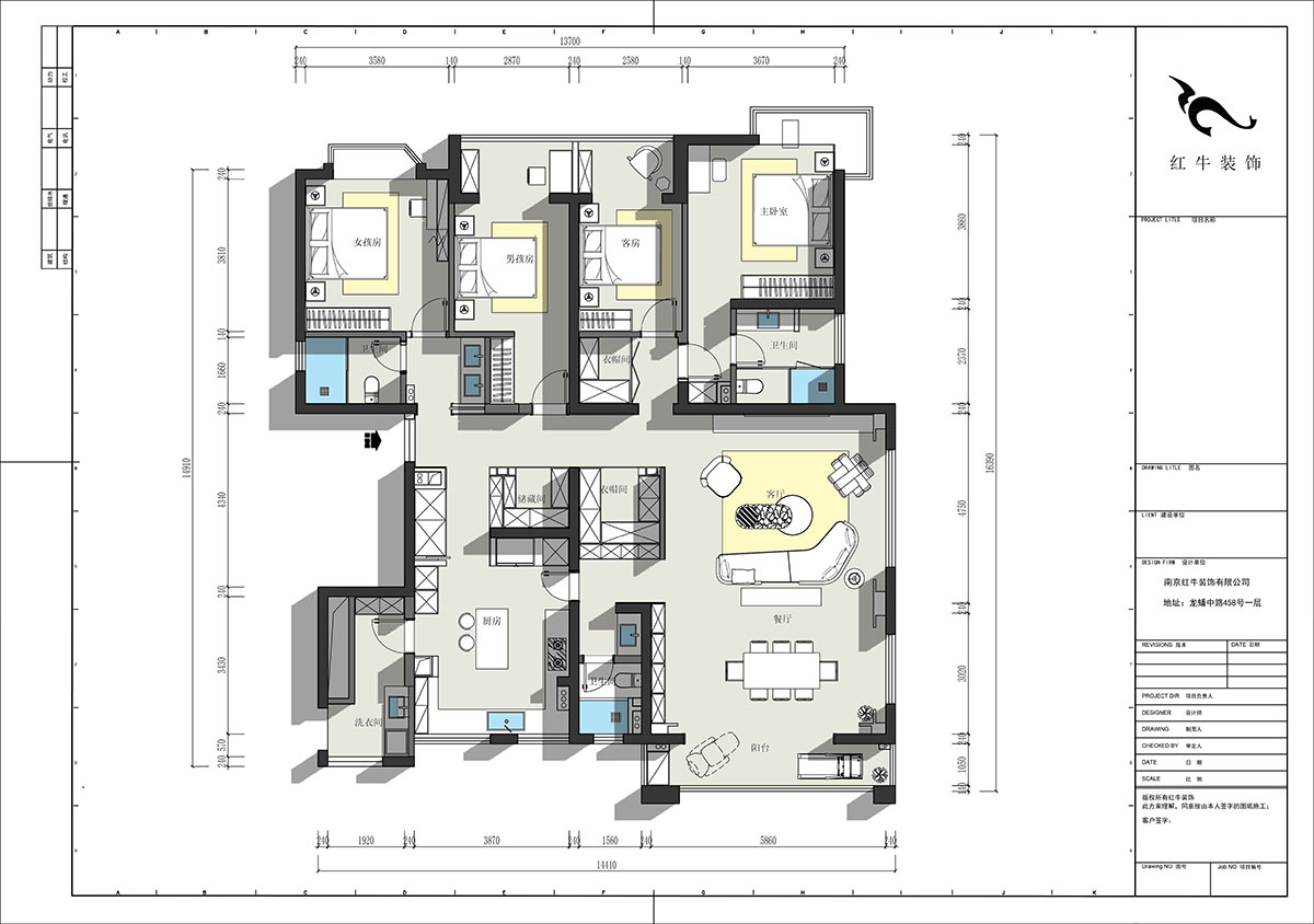
設計戶型:223㎡|4室2廳3衛
裝修類型:新房裝修
裝修方式:半包裝修
設計費服務費(元):22000
施工費(元):233888
開工日期:2022年08月31日
竣工日期:2023年01月20日
項目經理:蔣振玉
改造前建筑缺陷:
本案是大平層,客廳空間比較大,其中兩個房間比較小,另外進門到廚房的路線比較長。
方案設計說明:
1、廚房做成了雙進入,形成了回游動線,外面買菜回來可以在直接進入廚房,不再需要繞路。
2、超大的廚房有19.2平方,廚房櫥柜設計成G字形。操作使用方便,吧臺的設計增加了家人之間的互動,同時也可以再餐廳完成簡餐。
3、把女兒衛生間獨立出來做成了公共衛生間,設計成多臺盆,早上兩個小朋友同時洗刷也不會受到影響。
4、整體風格現代輕奢,餐廳墻面的裝飾面板窗簾槽,和酒柜顏色統一,懸浮吊頂的設計,淺灰色的石材地面,墻深地淺的設計,讓整個空間看上去沉穩中不失時尚。客廳電視背景墻整體石材+裝飾面板護墻,電視機柜采用石材地臺形式,板簡潔沉穩過道墻面和電視背景墻形成整體,石材和裝飾面板搭配,另外一面是兩個儲藏室的門,均采用“電動巴士”門的設計,因為過道比較長,墻面上的兩個壁龕和內嵌裝飾畫,完美的解決了這個問題。主臥室L形的飄窗,搭配灰色的飄窗軟墊,讓整個空間更有柔性的美,臥室的背景墻也和柜子形成了一體,床頭柜直接從柜子中延伸出,上方開放式個隔層,方便房屋主人擺放一些書籍和裝飾品。


家裝攻略
- 二手房裝修舊房翻新太難了,想要裝修不求人?建議收藏!
- 工地巡檢:步履不停,以行動兌現品質承諾,嚴格把控每一環!
- 避坑指南:裝修坑多、水深?歸根結底五個字:信息不對稱
- 工地巡檢日:標準&品質是底線,專業&用心是態度!
- 好評如潮:曬一波熱乎的客戶評價,親身體驗過才最具有發言權!
- 最好的口碑,莫過于裝修業主的真實評價!
- 南京紅牛裝飾:始終如一,以品質說話,以服務鑄口碑!
- 再好的文案,都抵不過客戶的真實反饋!“三個最”【內附完工實景】
- 工地突擊巡檢|嚴把每一處細節,用心守護每一份安心!
- 南京紅牛裝飾再添榮譽,榮獲兩面錦旗,雙倍肯定,十分滿意!
- 南京115㎡現代簡約風裝修,每一處都將“實用”和“顏值”完美兼容!
- 裝修寶典:為何說企業文化是企業靈魂,是企業生存與發展的根本?
- 南京裝修公司紅牛裝飾工地突擊巡檢:一厘一毫堅守品質,一心一意守護新家!
- 南京裝修避坑指南:裝修材料的選擇,直接影響您入住新家的早晚?
- 南京比較靠譜的裝修公司?南京紅牛裝飾裝修寶典:新房裝修好多久可以入住?關鍵在于……
- 工地巡檢:雙節同慶,品質同行,嚴把每一道工序,用心守護夢想家!
- 避坑指南:老房改造二手舊房翻新注意這幾點,省心又省錢!
- 690億元!2025最后一批“國補”資金已下達!還可疊加企補!至高可省40000元!
- 【9月再添榮譽】業主說紅牛裝飾設計牛!監工牛!預算牛!超滿意!
- 九月秋意漸濃,南京紅牛裝飾工地巡檢步履不停,只為兌現品質承諾!


