| 案例風格 | 現代簡約風格 | 案例戶型 | 別墅 | 案例面積 | 390㎡ |
|---|---|---|---|---|---|
| 樓盤名稱 | 雅園 | 設 計 師 | 劉小勇 | 案例造價 | 定制家|全包100萬 |
設計說明
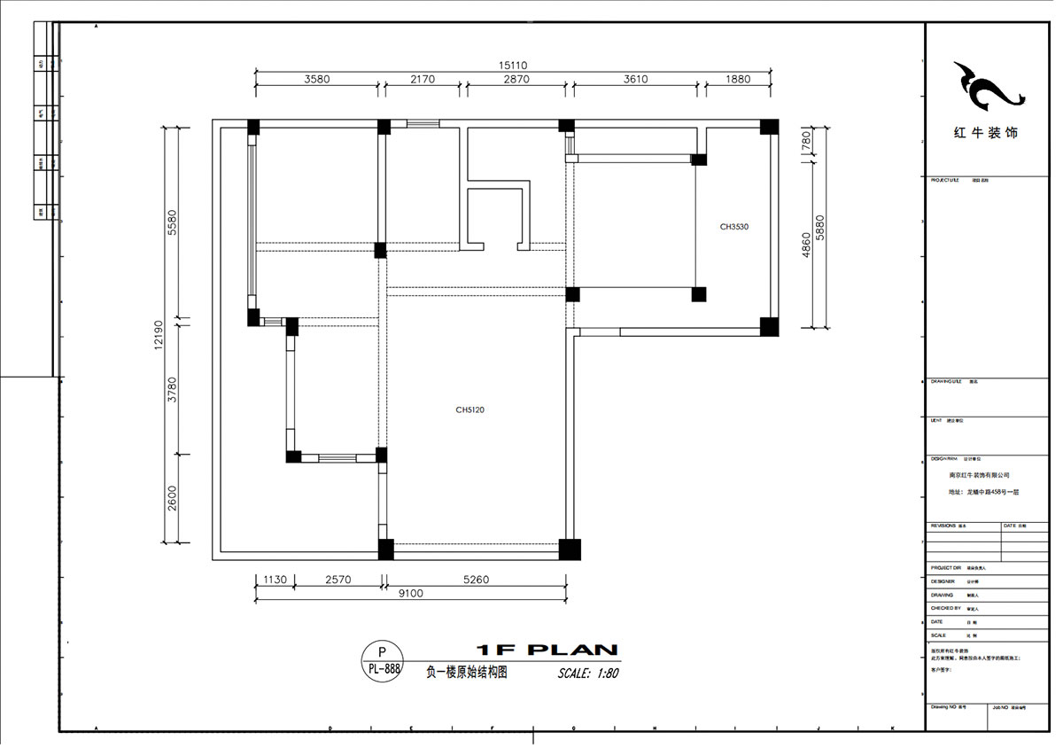
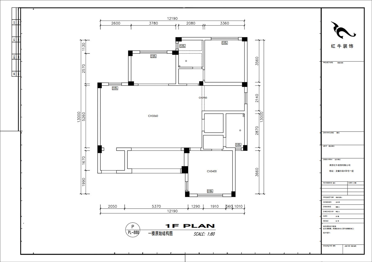
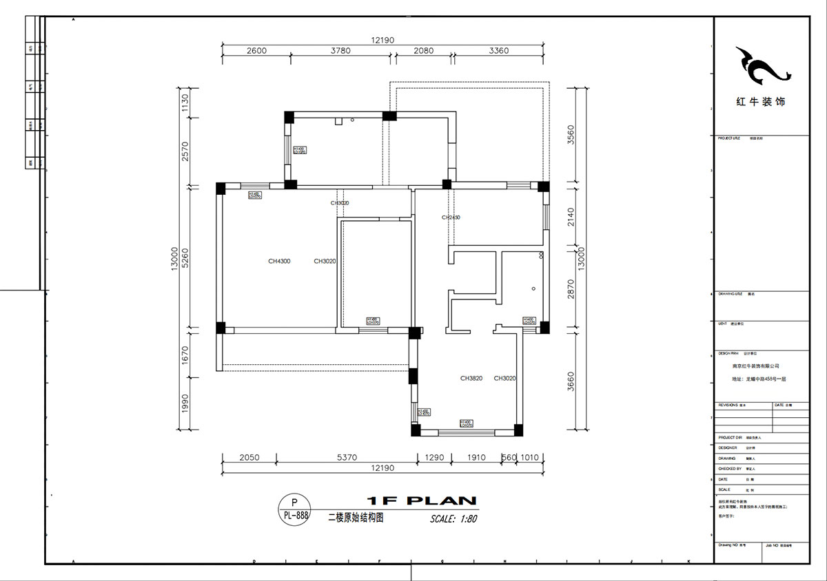
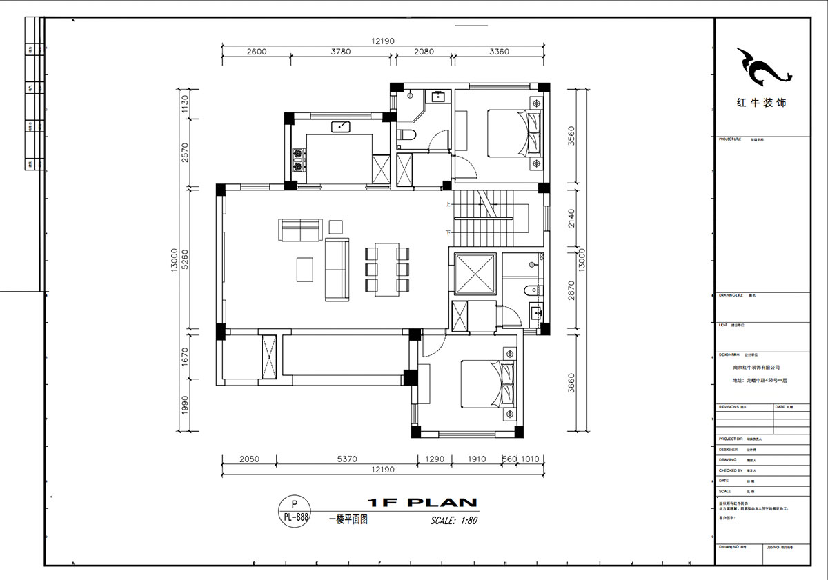
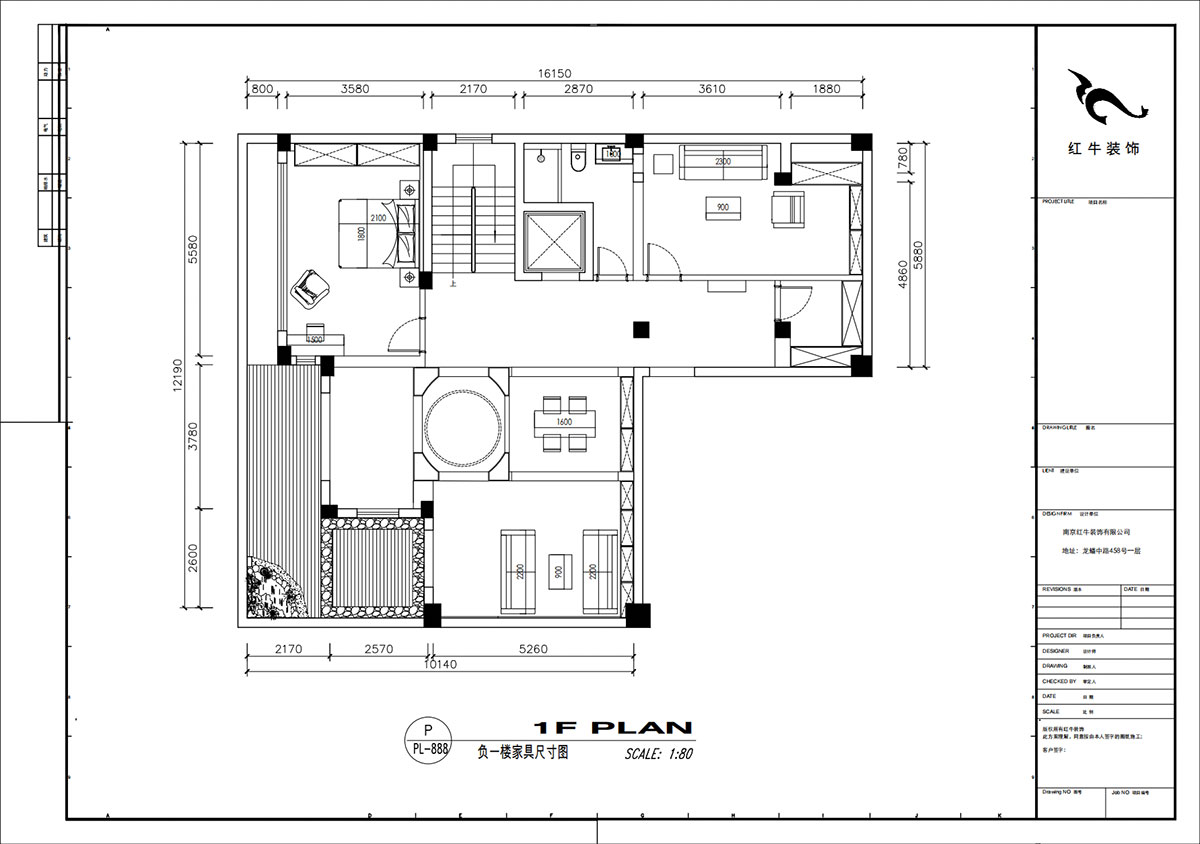
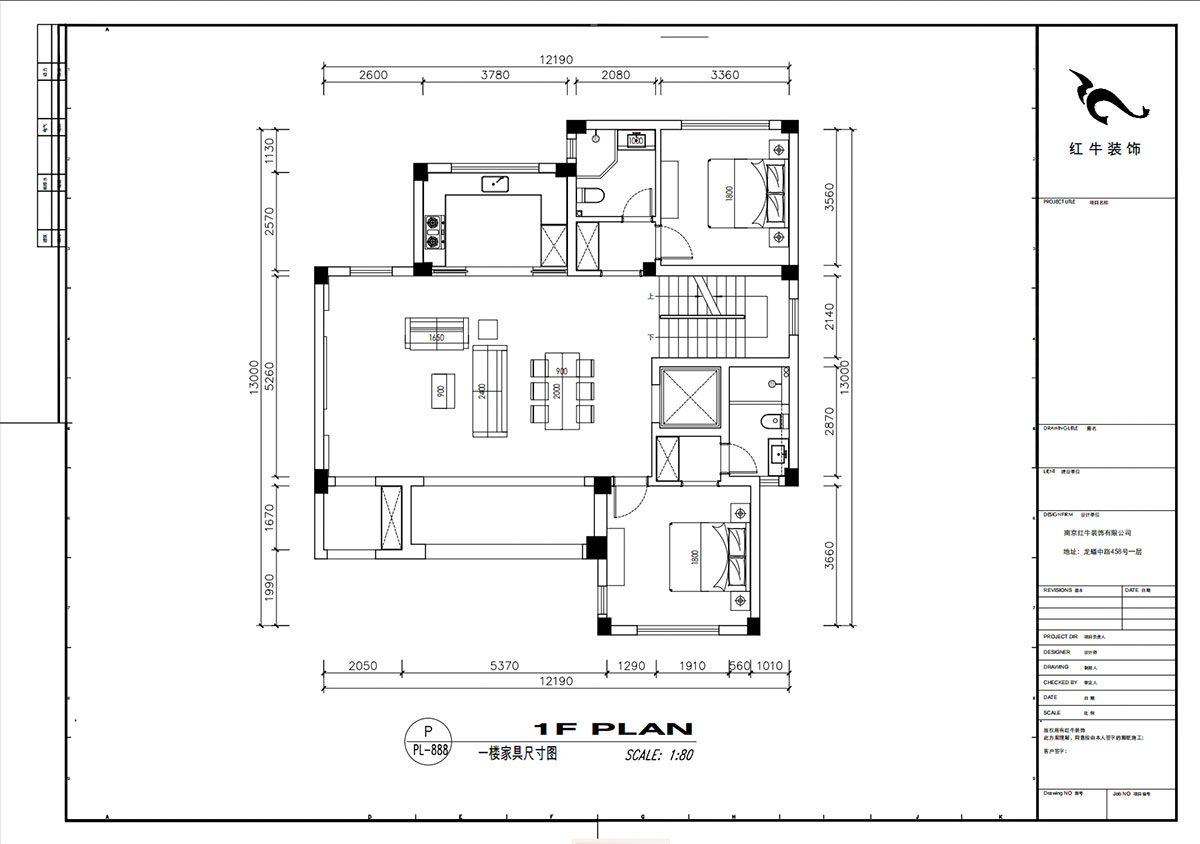
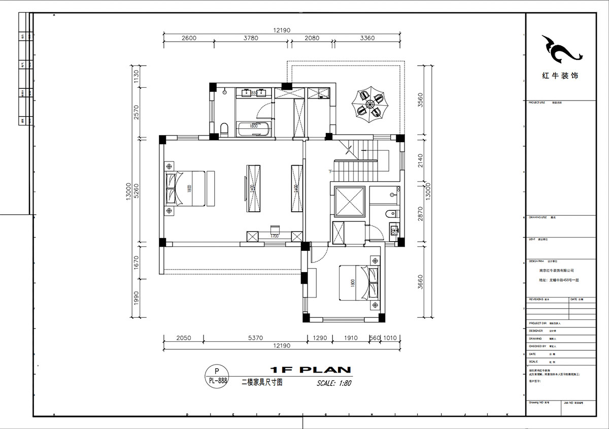
設計戶型:500㎡|9室2廳6衛
裝修類型:三層別墅裝修
裝修方式:全包裝修
設計費服務費(元):20000
開工日期:2022年11月03日
項目經理:毛步友
方案設計說明:
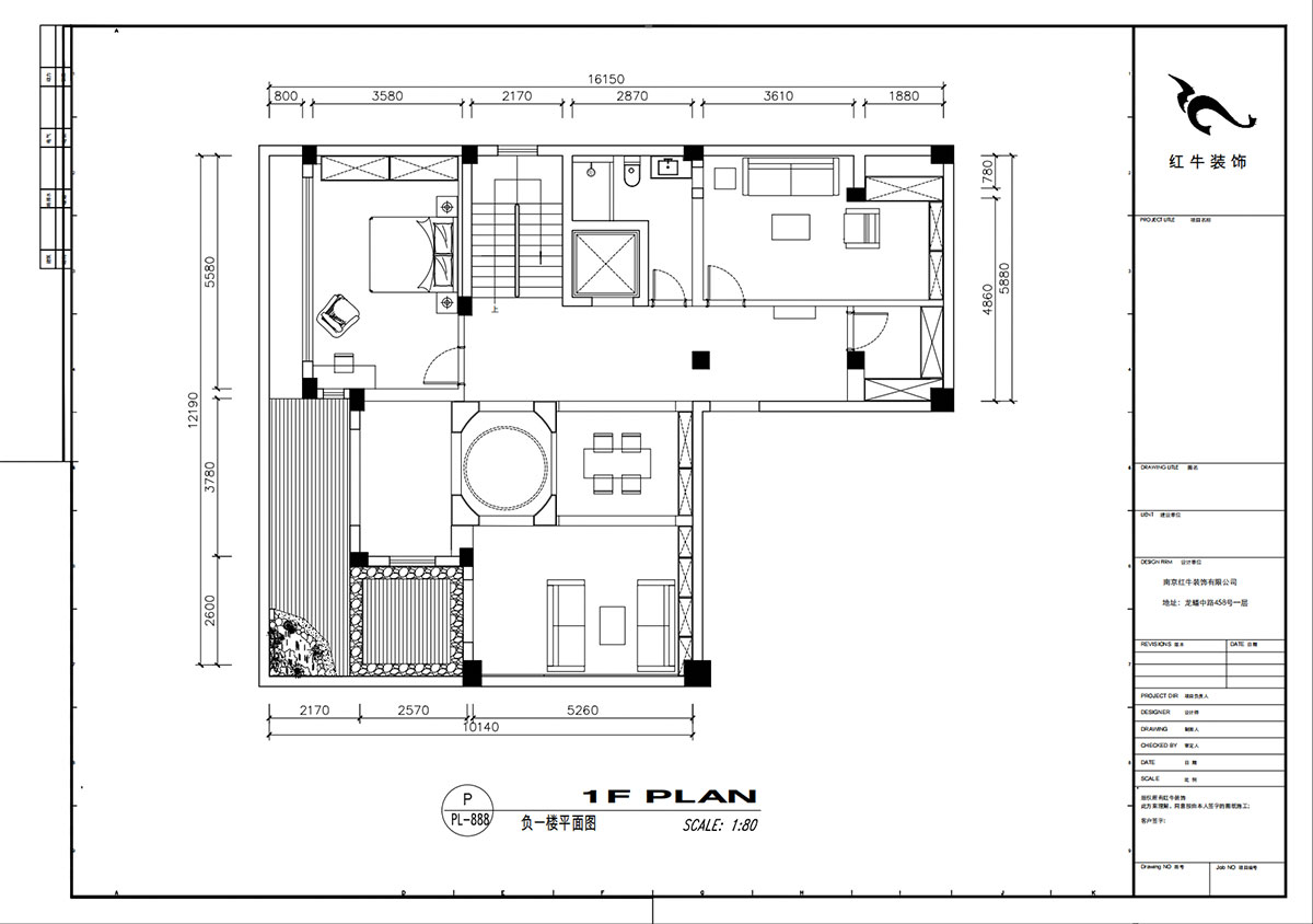
客戶三代人居住,負一樓空間以會客娛樂為主,負一樓挑空空間以健身學習為主,一樓老人和大男孩居住,二樓為主臥空間和小女孩居住。
客戶要求每個空間都不能擁擠,主臥室原有的書房并到主臥空間,規劃了男女主人的衣帽間,這樣能夠滿足客戶的需求。
負一樓半挑空間預留了保姆間和洗衣工作間,極大限度保證了一二樓主人的私人空間。









此案風格為現代奢華風格:家是心靈的港灣。隨著人們在旅游中感受到簡約的魅力,“簡約但并不簡單的裝飾風格”。當疲憊的身心對家的依戀越發強烈,人家想要的是輕松、自由的環境,“現代簡約風格”自然就成為家居設計的一種風尚。注重大小色塊的組合,地域性的后期配飾融入設計風格之中。

在會客廳設計上,挑高設計,采用深色柜體、大理石墻面,豪華吊燈配上局部玻璃頂,整個空間高大氣派極具現代感。

在品酒區設計上,深色木飾面,玻璃酒柜與頂面金屬線條相呼應,奢華感十足,與會客區空間融為一體,相互映襯。


在客餐廳設計上,整個空間沒有過多的造型設計,墻面采用暖色墻布,背景墻設計也簡潔大方,地面地板人字形鋪設,溫馨而靈動。頂面采取無主燈設計配上魚紋玻璃簡潔而不失奢華。

在主臥設計上,背景選用法紋玻璃、皮革、銅鏡極具視覺沖擊力,挑高吊頂搭配配上豪華吊燈整個空間奢華大氣。
家裝攻略
- 二手房裝修舊房翻新太難了,想要裝修不求人?建議收藏!
- 工地巡檢:步履不停,以行動兌現品質承諾,嚴格把控每一環!
- 避坑指南:裝修坑多、水深?歸根結底五個字:信息不對稱
- 工地巡檢日:標準&品質是底線,專業&用心是態度!
- 好評如潮:曬一波熱乎的客戶評價,親身體驗過才最具有發言權!
- 最好的口碑,莫過于裝修業主的真實評價!
- 南京紅牛裝飾:始終如一,以品質說話,以服務鑄口碑!
- 再好的文案,都抵不過客戶的真實反饋!“三個最”【內附完工實景】
- 工地突擊巡檢|嚴把每一處細節,用心守護每一份安心!
- 南京紅牛裝飾再添榮譽,榮獲兩面錦旗,雙倍肯定,十分滿意!
- 南京115㎡現代簡約風裝修,每一處都將“實用”和“顏值”完美兼容!
- 裝修寶典:為何說企業文化是企業靈魂,是企業生存與發展的根本?
- 南京裝修公司紅牛裝飾工地突擊巡檢:一厘一毫堅守品質,一心一意守護新家!
- 南京裝修避坑指南:裝修材料的選擇,直接影響您入住新家的早晚?
- 南京比較靠譜的裝修公司?南京紅牛裝飾裝修寶典:新房裝修好多久可以入住?關鍵在于……
- 工地巡檢:雙節同慶,品質同行,嚴把每一道工序,用心守護夢想家!
- 避坑指南:老房改造二手舊房翻新注意這幾點,省心又省錢!
- 690億元!2025最后一批“國補”資金已下達!還可疊加企補!至高可省40000元!
- 【9月再添榮譽】業主說紅牛裝飾設計牛!監工牛!預算牛!超滿意!
- 九月秋意漸濃,南京紅牛裝飾工地巡檢步履不停,只為兌現品質承諾!


