| 案例風格 | 現代簡約風格 | 案例戶型 | 平層 | 案例面積 | 94㎡ |
|---|---|---|---|---|---|
| 樓盤名稱 | 春江新城新河苑一期 | 設 計 師 | 朱明琪 | 案例造價 | 定制家|全包12萬 |
設計說明
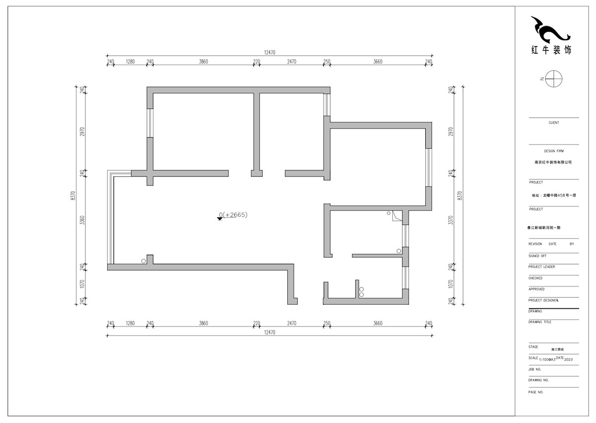
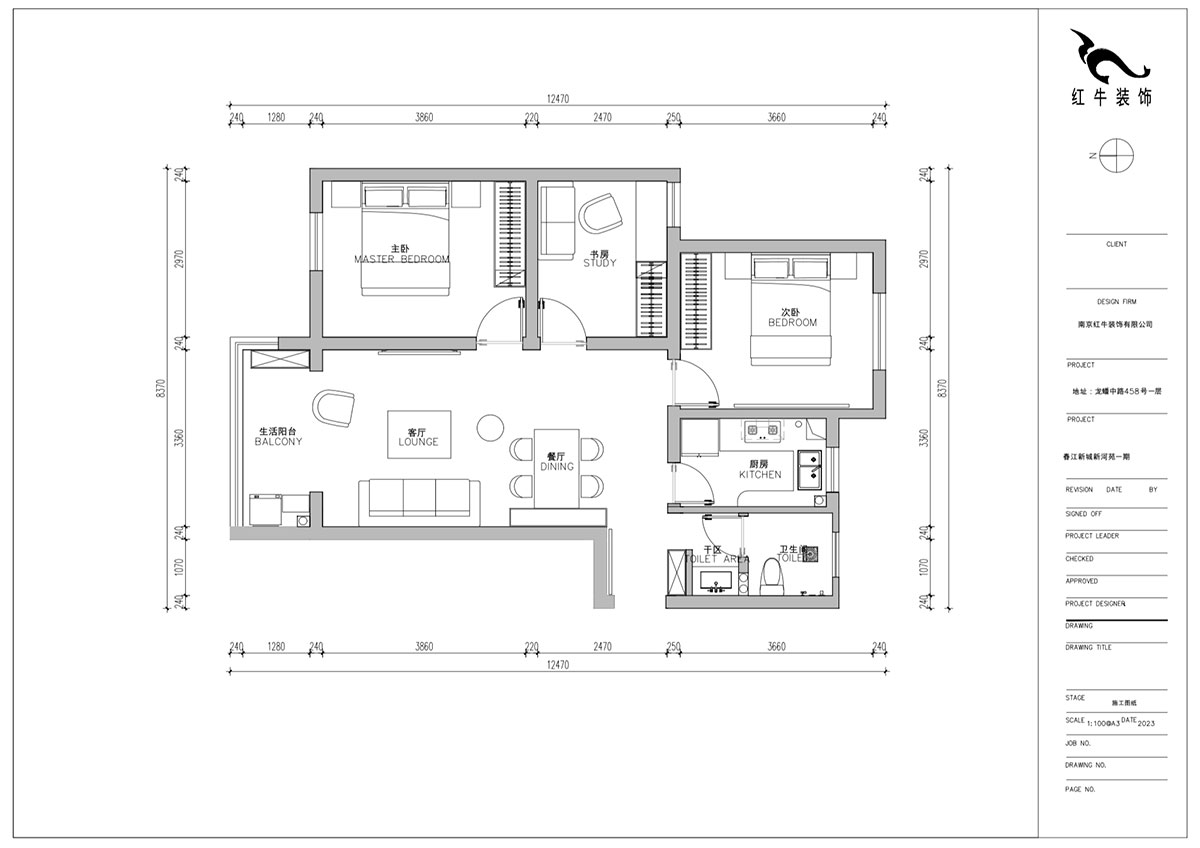
設計戶型:94㎡|3室2廳1衛
裝修類型:老房改造
裝修方式:全包裝修
設計費服務費(元):5000
施工費(元):5萬
主材、輔材的材料費總和(元):7萬
費用總和(元):12萬
主材品牌:L&D瓷磚、圣象地板、戴勝木門、開來櫥柜、法恩莎潔具、奧普吊頂
開工日期:2023年06月23日
竣工日期:2023年12月01日
項目經理:趙正平
改造前建筑情況:
此戶型南北通透,在戶型改造上面并沒有太大的必要,于是我們站在客戶的角度為客戶著想,將廚房的房門朝向進行了改動,讓房間更加方便的同時使得居住的舒適度也有所提升。
應客戶要求,需要較多的收納空間,便借用了書房的空間,整體更協調統一。
方案設計說明:
整體色調以奶油色為主,線條簡潔,千凈利落,在這個浮躁的時代,在簡約的居家空間中,能使業主得以獲得精神上的放松。
客廳說明:客廳空間墻面大面積留白,柔和的色彩,也為空間注入了時尚與溫度。
餐廳說明:餐邊柜擴充了廚房儲物的不足,也提升了適合年輕人的使用生活方式。
臥室說明:搭配大面積的白色定制衣柜,床頭的光源以不同形勢呈現,既滿足不同燈光需求,又恰到好處地起到了裝飾效果,使整體臥室空間呈現明亮、溫柔的舒適狀態。
衛生間說明:干區選擇整體色彩搭配干凈、大方,墻面設計選擇大尺寸瓷磚上墻,高級感滿滿。




家裝攻略
- 二手房裝修舊房翻新太難了,想要裝修不求人?建議收藏!
- 工地巡檢:步履不停,以行動兌現品質承諾,嚴格把控每一環!
- 避坑指南:裝修坑多、水深?歸根結底五個字:信息不對稱
- 工地巡檢日:標準&品質是底線,專業&用心是態度!
- 好評如潮:曬一波熱乎的客戶評價,親身體驗過才最具有發言權!
- 最好的口碑,莫過于裝修業主的真實評價!
- 南京紅牛裝飾:始終如一,以品質說話,以服務鑄口碑!
- 再好的文案,都抵不過客戶的真實反饋!“三個最”【內附完工實景】
- 工地突擊巡檢|嚴把每一處細節,用心守護每一份安心!
- 南京紅牛裝飾再添榮譽,榮獲兩面錦旗,雙倍肯定,十分滿意!
- 南京115㎡現代簡約風裝修,每一處都將“實用”和“顏值”完美兼容!
- 裝修寶典:為何說企業文化是企業靈魂,是企業生存與發展的根本?
- 南京裝修公司紅牛裝飾工地突擊巡檢:一厘一毫堅守品質,一心一意守護新家!
- 南京裝修避坑指南:裝修材料的選擇,直接影響您入住新家的早晚?
- 南京比較靠譜的裝修公司?南京紅牛裝飾裝修寶典:新房裝修好多久可以入住?關鍵在于……
- 工地巡檢:雙節同慶,品質同行,嚴把每一道工序,用心守護夢想家!
- 避坑指南:老房改造二手舊房翻新注意這幾點,省心又省錢!
- 690億元!2025最后一批“國補”資金已下達!還可疊加企補!至高可省40000元!
- 【9月再添榮譽】業主說紅牛裝飾設計牛!監工牛!預算牛!超滿意!
- 九月秋意漸濃,南京紅牛裝飾工地巡檢步履不停,只為兌現品質承諾!


