| 案例風格 | 現代簡約風格 | 案例戶型 | 平層 | 案例面積 | 108㎡ |
|---|---|---|---|---|---|
| 樓盤名稱 | 六合橋西苑 | 設 計 師 | 孟憲濤 | 案例造價 | 定制家|全包14萬 |
南京108平現代簡約風裝修,空間情緒的調節劑!
人們常把美與實用分明確界限,認為“美”是可有可無的,把“實用”作為衡量事物的唯一標準。
生活和人生一樣,本該豐富多彩,而非單一乏味,而家裝設計便是二者的調和劑。

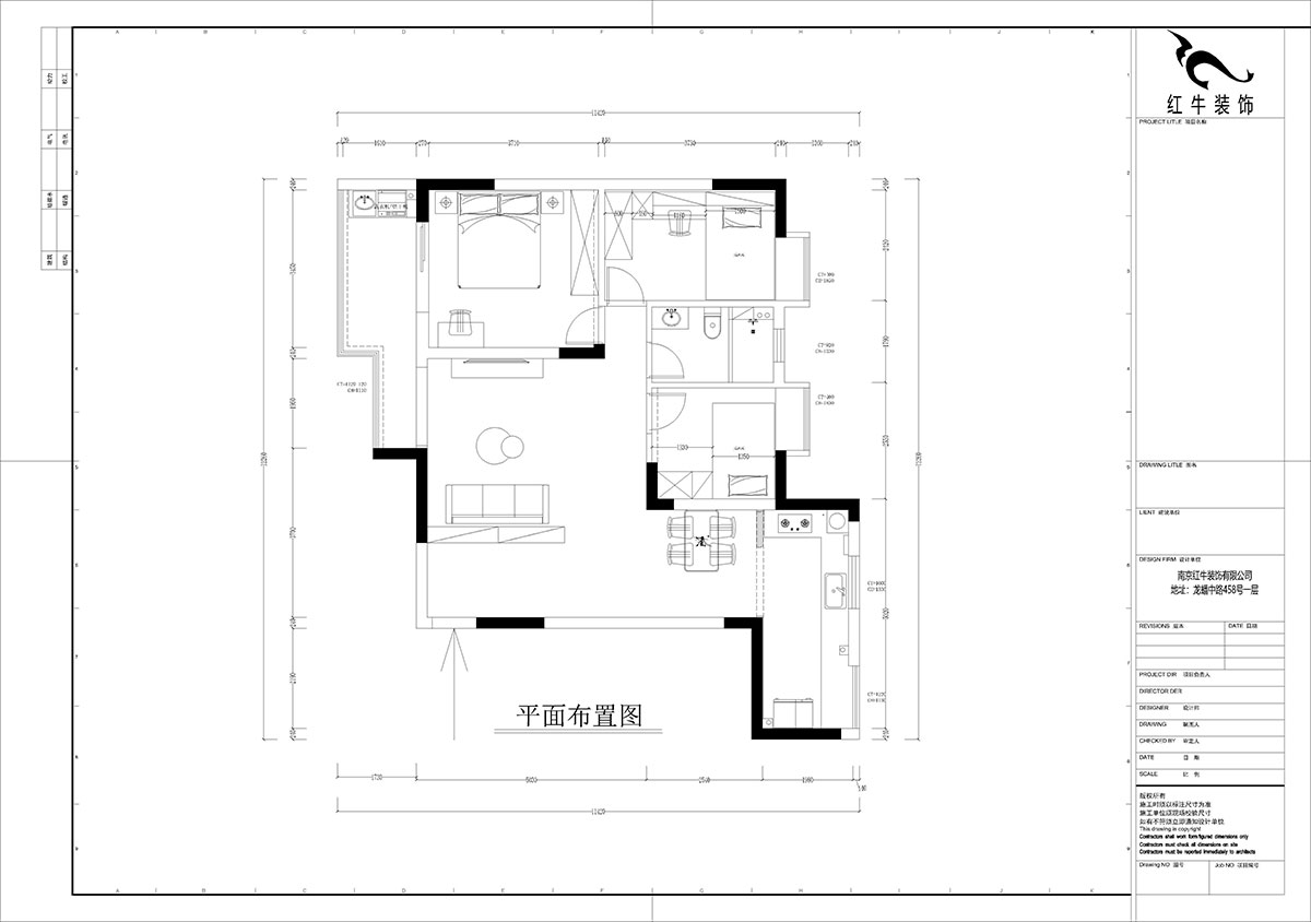
入戶一字形鞋柜,暖白色門板為主色調,黑色作為點綴,干凈清爽,融入掛衣鉤、換鞋凳、穿衣鏡等設計。



整體空間沒有過多的色彩,色彩相近、質感不同的米色沙發,窗簾、電視柜以及黑白配的茶幾,恰到好處的留白,使客廳空間寧靜而溫馨。米駝色的地毯,柔和的紋理,詮釋著生活的細膩。


廚房白色的吊柜,灰色的地柜,滿足使用者日常收納儲物,整個廚房空間簡潔、高級。
餐廳延續了整體的設計風格和色調,白色巖板方桌,灰色皮藝餐椅、裝飾畫、燈具等,使用餐氛圍充滿儀式感。

主臥以白灰為基調,床頭背景墻用抽象的藝術畫進行裝飾,灰色飾面、軟包床頭,床品與原木色地板仿佛融為一體,使空間更加簡潔、時尚。

置頂式陽臺柜與開放式設計進行收納儲物,嵌入式洗烘設備、洗衣臺盆,解決了日常所需,又給空間增加了些許層次。


衛生間簡潔實用的干濕分離設計,洗手臺盆、鏡柜、浴室柜,為使用者提供了一個精致、優雅的洗浴體驗。

設計說明
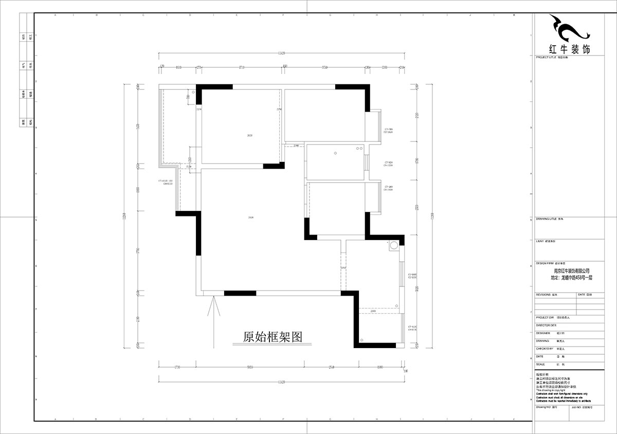
設計戶型:108㎡|3室2廳1衛
裝修類型:老房裝修
裝修方式:全包裝修
設計費服務費(元):5000
施工費(元):7萬
主材、輔材的材料費總和(元):7萬
費用總和(元):14萬
主材品牌:L&D瓷磚、李洋木門、開來櫥柜、法恩莎潔具、奧普吊頂
開工日期:2023年09月03日
竣工日期:2023年12月10日
項目經理:張志國
方案設計說明:
戶型客廳比較大,廚房比較大,餐廳和房間比較小。把廚房墻拆掉往里推,增加餐廳面積,做三聯推移門,加大進廚房門洞尺寸。




家裝攻略
- 二手房裝修舊房翻新太難了,想要裝修不求人?建議收藏!
- 工地巡檢:步履不停,以行動兌現品質承諾,嚴格把控每一環!
- 避坑指南:裝修坑多、水深?歸根結底五個字:信息不對稱
- 工地巡檢日:標準&品質是底線,專業&用心是態度!
- 好評如潮:曬一波熱乎的客戶評價,親身體驗過才最具有發言權!
- 最好的口碑,莫過于裝修業主的真實評價!
- 南京紅牛裝飾:始終如一,以品質說話,以服務鑄口碑!
- 再好的文案,都抵不過客戶的真實反饋!“三個最”【內附完工實景】
- 工地突擊巡檢|嚴把每一處細節,用心守護每一份安心!
- 南京紅牛裝飾再添榮譽,榮獲兩面錦旗,雙倍肯定,十分滿意!
- 南京115㎡現代簡約風裝修,每一處都將“實用”和“顏值”完美兼容!
- 裝修寶典:為何說企業文化是企業靈魂,是企業生存與發展的根本?
- 南京裝修公司紅牛裝飾工地突擊巡檢:一厘一毫堅守品質,一心一意守護新家!
- 南京裝修避坑指南:裝修材料的選擇,直接影響您入住新家的早晚?
- 南京比較靠譜的裝修公司?南京紅牛裝飾裝修寶典:新房裝修好多久可以入住?關鍵在于……
- 工地巡檢:雙節同慶,品質同行,嚴把每一道工序,用心守護夢想家!
- 避坑指南:老房改造二手舊房翻新注意這幾點,省心又省錢!
- 690億元!2025最后一批“國補”資金已下達!還可疊加企補!至高可省40000元!
- 【9月再添榮譽】業主說紅牛裝飾設計牛!監工牛!預算牛!超滿意!
- 九月秋意漸濃,南京紅牛裝飾工地巡檢步履不停,只為兌現品質承諾!


