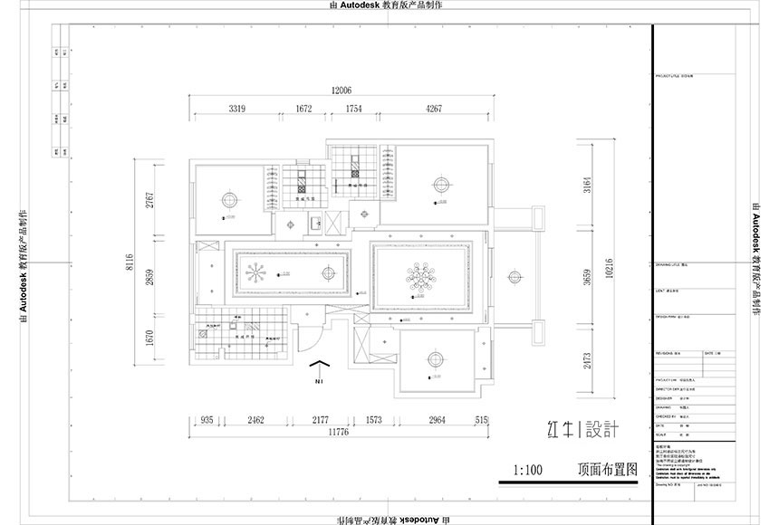
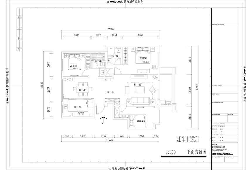
| 案例風格 | 中式風格 | 案例戶型 | 平層 | 案例面積 | 117㎡ |
|---|---|---|---|---|---|
| 樓盤名稱 | 華府國際 | 設 計 師 | 魏明花 | 案例造價 | 14萬(全包) |
設計說明
現代中式風格新東方主義我們意在通過新裝飾主義與中式傳統經典元素的巧妙兼柔,去感受中國文化交織的力量,強調一種超越世俗的生活境界,讓生活在穩重、含蓄、內斂中自由綻放……現代中式風格一直是個深奧的主題,中式是經典又源遠流長的文化,現代時尚卻迸發了它的時代象征。當這兩種碰撞在一起時,富含了經典而又時尚的激情。在這個項目中融合中式與現代元素,將空間演繹成一副中式的奢華風。可以說整個空間就像一張潔白的宣紙,經過渲染著豪放的潑墨與纖細的白描,將中國文化的萬千情懷與東方人的審美情趣完美的結合在一起。


家裝攻略
- 二手房裝修舊房翻新太難了,想要裝修不求人?建議收藏!
- 工地巡檢:步履不停,以行動兌現品質承諾,嚴格把控每一環!
- 避坑指南:裝修坑多、水深?歸根結底五個字:信息不對稱
- 工地巡檢日:標準&品質是底線,專業&用心是態度!
- 好評如潮:曬一波熱乎的客戶評價,親身體驗過才最具有發言權!
- 最好的口碑,莫過于裝修業主的真實評價!
- 南京紅牛裝飾:始終如一,以品質說話,以服務鑄口碑!
- 再好的文案,都抵不過客戶的真實反饋!“三個最”【內附完工實景】
- 工地突擊巡檢|嚴把每一處細節,用心守護每一份安心!
- 南京紅牛裝飾再添榮譽,榮獲兩面錦旗,雙倍肯定,十分滿意!
- 南京115㎡現代簡約風裝修,每一處都將“實用”和“顏值”完美兼容!
- 裝修寶典:為何說企業文化是企業靈魂,是企業生存與發展的根本?
- 南京裝修公司紅牛裝飾工地突擊巡檢:一厘一毫堅守品質,一心一意守護新家!
- 南京裝修避坑指南:裝修材料的選擇,直接影響您入住新家的早晚?
- 南京比較靠譜的裝修公司?南京紅牛裝飾裝修寶典:新房裝修好多久可以入住?關鍵在于……
- 工地巡檢:雙節同慶,品質同行,嚴把每一道工序,用心守護夢想家!
- 避坑指南:老房改造二手舊房翻新注意這幾點,省心又省錢!
- 690億元!2025最后一批“國補”資金已下達!還可疊加企補!至高可省40000元!
- 【9月再添榮譽】業主說紅牛裝飾設計牛!監工牛!預算牛!超滿意!
- 九月秋意漸濃,南京紅牛裝飾工地巡檢步履不停,只為兌現品質承諾!


