| 案例風格 | 中式風格 | 案例戶型 | 平層 | 案例面積 | 86㎡ |
|---|---|---|---|---|---|
| 樓盤名稱 | 文景花園 | 設 計 師 | 劉曉芳 | 案例造價 | |
設計理念
初見業主,夫妻倆對居家格調的追求,對生活方式的見解深深的吸引著我。尊崇中國的儒家思想,有幸與業主約在他的辦公室談方案,辦公室中式擺件,明清家具不失檔次。
回來后我就決定這個房子軟裝配飾往中式風格靠。但由于房子面積有限,傳統的中式風格反而顯得空間厚重壓抑。在這個輕硬裝重軟裝的時代,最后敲定現代中式風格。把中式元素與現代材質的巧妙兼柔。
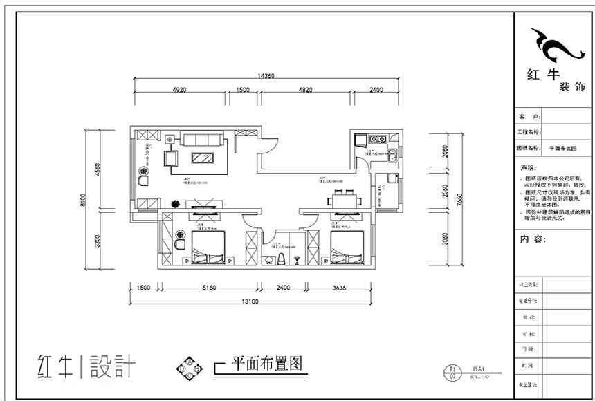
對于原始結構三處的缺陷,與業主溝通后也做了幾處改動。包括犧牲朝北次臥室面積滿足衛生間功能。入門玄關的處理解決了鞋柜的尷尬又巧妙的化解了風水不好的問題。用柜子代替墻體增加儲藏間又隔出生活陽臺。
刪繁去奢,繪事后素,提升空間品質,制造完美家居!

家裝攻略
- 二手房裝修舊房翻新太難了,想要裝修不求人?建議收藏!
- 工地巡檢:步履不停,以行動兌現品質承諾,嚴格把控每一環!
- 避坑指南:裝修坑多、水深?歸根結底五個字:信息不對稱
- 工地巡檢日:標準&品質是底線,專業&用心是態度!
- 好評如潮:曬一波熱乎的客戶評價,親身體驗過才最具有發言權!
- 最好的口碑,莫過于裝修業主的真實評價!
- 南京紅牛裝飾:始終如一,以品質說話,以服務鑄口碑!
- 再好的文案,都抵不過客戶的真實反饋!“三個最”【內附完工實景】
- 工地突擊巡檢|嚴把每一處細節,用心守護每一份安心!
- 南京紅牛裝飾再添榮譽,榮獲兩面錦旗,雙倍肯定,十分滿意!
- 南京115㎡現代簡約風裝修,每一處都將“實用”和“顏值”完美兼容!
- 裝修寶典:為何說企業文化是企業靈魂,是企業生存與發展的根本?
- 南京裝修公司紅牛裝飾工地突擊巡檢:一厘一毫堅守品質,一心一意守護新家!
- 南京裝修避坑指南:裝修材料的選擇,直接影響您入住新家的早晚?
- 南京比較靠譜的裝修公司?南京紅牛裝飾裝修寶典:新房裝修好多久可以入住?關鍵在于……
- 工地巡檢:雙節同慶,品質同行,嚴把每一道工序,用心守護夢想家!
- 避坑指南:老房改造二手舊房翻新注意這幾點,省心又省錢!
- 690億元!2025最后一批“國補”資金已下達!還可疊加企補!至高可省40000元!
- 【9月再添榮譽】業主說紅牛裝飾設計牛!監工牛!預算牛!超滿意!
- 九月秋意漸濃,南京紅牛裝飾工地巡檢步履不停,只為兌現品質承諾!


