| 案例風格 | 北歐風格 | 案例戶型 | 平層 | 案例面積 | 89㎡ |
|---|---|---|---|---|---|
| 樓盤名稱 | 威尼斯水城11街區 | 設 計 師 | 劉曉芳 | 案例造價 | 全包12萬 |
設計說明
此案為北歐風格,設計,簡潔、干練,讓家中呈現一種自然的舒適、干凈之美。一股濃濃的北歐范, 白色的餐椅與原木色的餐桌搭配,現代與自然元素想結合,溫暖的色調一致搭配。讓整個餐廳溫暖起來。讓家居生活更輕松隨性。
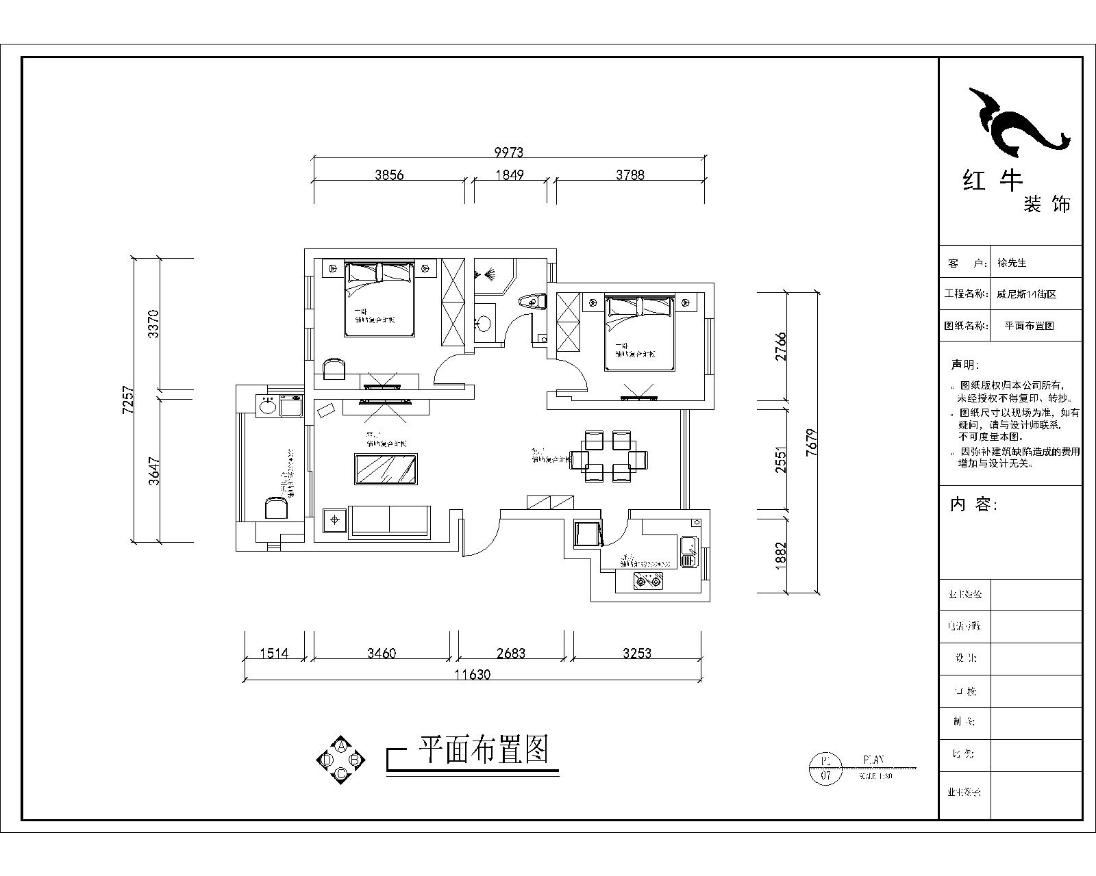
整體戶型比較規整,略改餐廳陽臺拆后使得餐廳空間增大。


南京威尼斯水城89平米北歐風格裝修 | 舒適溫馨之家
此案為北歐風格,設計簡潔、干練,讓家中呈現一種自然的舒適、干凈之美。
白色的餐椅與原木色的餐桌搭配,現代與自然元素相結合,讓整個餐廳溫暖起來,讓家居生活更輕松隨性。

■樓盤名稱:威尼斯水城
■設計風格:北歐風格
■建筑面積:89㎡
■店面地址:南京市秦淮區龍蟠中路458-3號
■服務熱線:025-52228153

沙發后方整面墻都是格子,卻不會給人壓迫感,恰到好處的線條還傳遞出精致簡潔的美。
電視背景墻使用磚墻風格的墻紙,時尚又復古,再掛上大大的液晶電視,加一張長長的白色電視柜,簡潔又大方。
窗簾旁邊有個木架子,上層擺了綠植,下層放了一排書籍,詮釋了一種文藝與悠閑。
灰色一字型沙發簡單大方,上面的彩色抱枕、人像抱枕使之不顯單調。前方兩個相同款式、一黑一白的茶幾組合在一起,顯得輕松又活潑。

靠墻而立的柜子是玄關柜,起到入戶的過渡作用,可以用于擺放一些隨身物品。鐘表除了判斷時間,還有不錯的裝飾作用。
這樣一套餐桌椅,有著簡約時尚的外形,極具雅致美感,配上地上的地毯,讓餐廳區域變成一個更加緊密的整體。
墻上的黑白裝飾畫,具有高度概括的藝術特色,帶有很強的抒情和浪漫主義色彩,提升了餐廳的格調。

縱觀廚房,幾乎是一個白色空間,搭配造型簡潔的設計,看上去清爽又潔凈。
油煙機旁對稱安裝了兩個小吊柜,另一面只安裝了一個吊柜,疏密有度,不會顯得太過緊湊。
另外值得一提的是,在一堆平開門的櫥柜中有一個上翻門的吊柜,是個不錯的調劑。
窗戶使用了百葉窗,既能避免陽光的直射,又可以引進采光與通風。

這間臥室的燈飾都很有特色。吊燈有精美的幾何線條設計,非常的有創意,令人印象深刻,此外燈光還非常柔和舒適。床頭的臺燈由兩個球形組成,也是個性十足。
再看兩個床頭柜,都是圓形的,沉穩大氣,中空的設計讓空間更通透,顯得更有品位。一邊還擺了一盆多肉,萌態十足。
淺色的床品看上去非常舒適,上面點綴了綠色,給空間帶來一絲優雅之氣。

墻色對空間色彩有著主導作用,給墻面刷上大地色,基本上整個空間的色調都不會跑偏,奠定了整個臥室的溫馨的基調。
很吸引目光的就是墻上的裝飾畫,多幅六邊形裝飾畫拼在一起,既有藝術個性,又豐富了墻面空間。
床頭安裝了兩盞吊燈,不僅能解放出桌面空間,還能提升了空間格調。
床頭柜呈現天然的原木色,明亮溫馨,充滿濃郁的北歐氣息,清新自然。

黑白配是最經典的色彩搭配,卻總能不斷創造出時髦前衛的流行感,本案中就用在了浴室柜上。
此外,可以發現,浴室柜儲物空間的利用也很徹底,有柜子、抽屜、格子等不同組合,能夠滿足不同收納需求。
旁邊安裝了淋浴房,能夠達到干濕分離的目的,防止水汽彌漫損壞浴室物品。
家裝攻略
- 二手房裝修舊房翻新太難了,想要裝修不求人?建議收藏!
- 工地巡檢:步履不停,以行動兌現品質承諾,嚴格把控每一環!
- 避坑指南:裝修坑多、水深?歸根結底五個字:信息不對稱
- 工地巡檢日:標準&品質是底線,專業&用心是態度!
- 好評如潮:曬一波熱乎的客戶評價,親身體驗過才最具有發言權!
- 最好的口碑,莫過于裝修業主的真實評價!
- 南京紅牛裝飾:始終如一,以品質說話,以服務鑄口碑!
- 再好的文案,都抵不過客戶的真實反饋!“三個最”【內附完工實景】
- 工地突擊巡檢|嚴把每一處細節,用心守護每一份安心!
- 南京紅牛裝飾再添榮譽,榮獲兩面錦旗,雙倍肯定,十分滿意!
- 南京115㎡現代簡約風裝修,每一處都將“實用”和“顏值”完美兼容!
- 裝修寶典:為何說企業文化是企業靈魂,是企業生存與發展的根本?
- 南京裝修公司紅牛裝飾工地突擊巡檢:一厘一毫堅守品質,一心一意守護新家!
- 南京裝修避坑指南:裝修材料的選擇,直接影響您入住新家的早晚?
- 南京比較靠譜的裝修公司?南京紅牛裝飾裝修寶典:新房裝修好多久可以入住?關鍵在于……
- 工地巡檢:雙節同慶,品質同行,嚴把每一道工序,用心守護夢想家!
- 避坑指南:老房改造二手舊房翻新注意這幾點,省心又省錢!
- 690億元!2025最后一批“國補”資金已下達!還可疊加企補!至高可省40000元!
- 【9月再添榮譽】業主說紅牛裝飾設計牛!監工牛!預算牛!超滿意!
- 九月秋意漸濃,南京紅牛裝飾工地巡檢步履不停,只為兌現品質承諾!


