| 案例風格 | 歐式風格 | 案例戶型 | 平層 | 案例面積 | 115㎡ |
|---|---|---|---|---|---|
| 樓盤名稱 | 威尼斯水城 | 設 計 師 | 劉曉芳 | 案例造價 | 13.5萬 |
南京威尼斯水城115平米簡歐風格裝修 | 愜意又浪漫
本方案是以簡歐風格為主,是一家三口居住,簡歐是一種多以象牙白為主色調,以淺色為主深色為輔,簡歐更為清新、歐式的居室有的不只是豪華大氣,更多的是愜意和浪漫。通過完美的曲線,精益求精的細節處理,帶給家人不盡的舒服觸感。


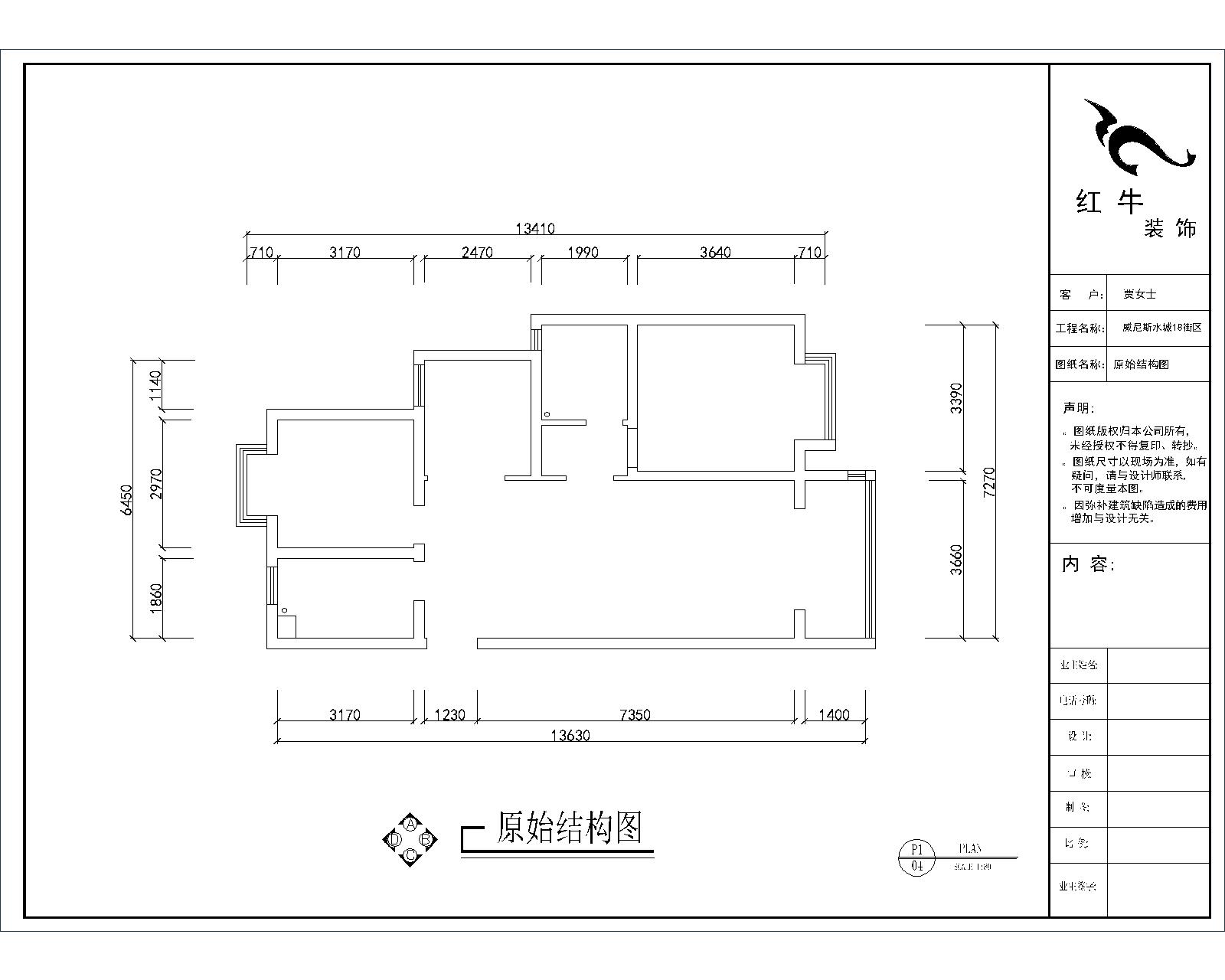
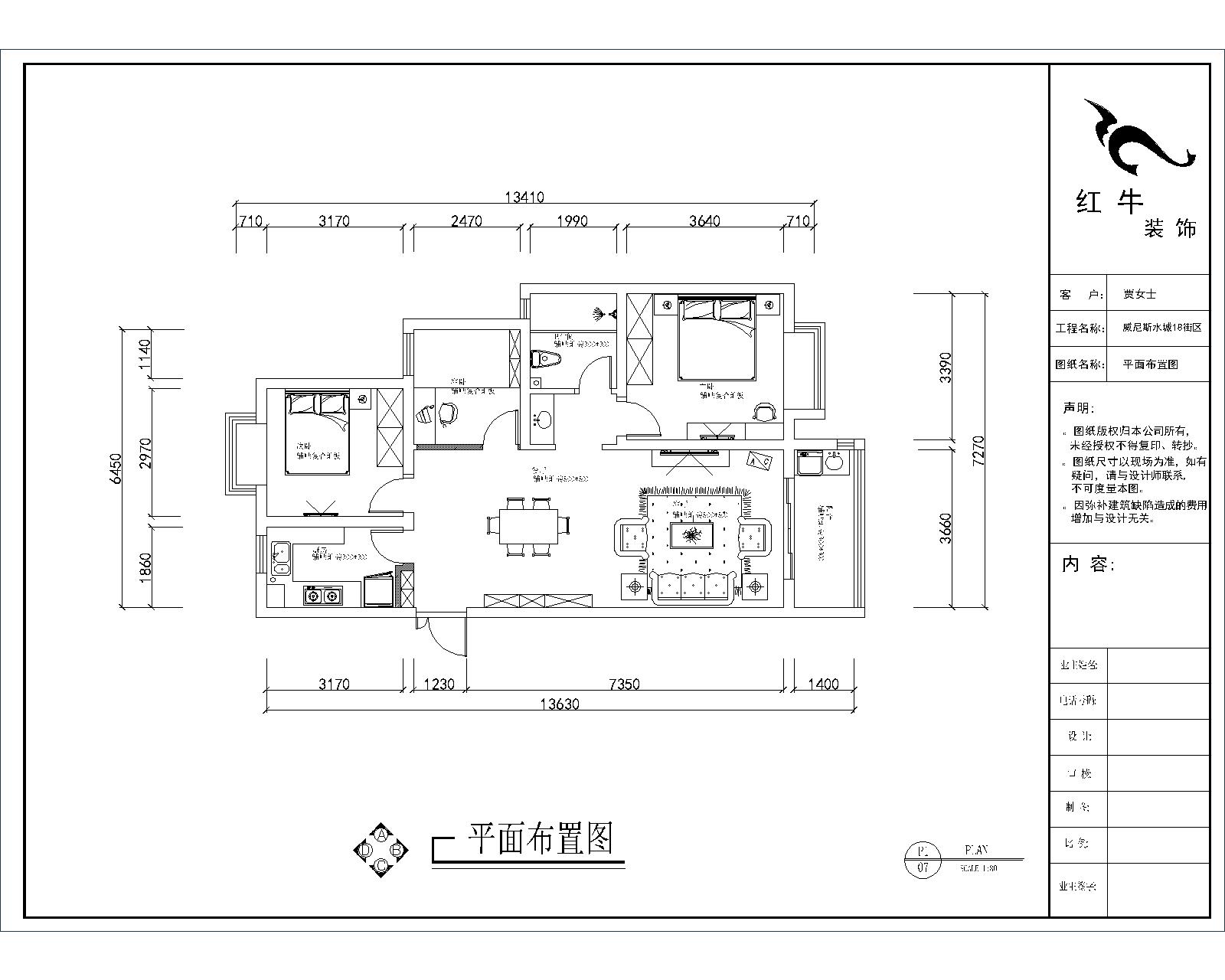
■樓盤名稱:威尼斯水城
■設計風格:簡歐風格
■建筑面積:115㎡
■店面地址:南京市秦淮區龍蟠中路458-3號
■服務熱線:025-52228153

客廳的家具都是白色,包括電視柜、沙發、茶幾,它們都是歐式,線條細膩,結構優雅,配有刻花工藝,顯得華貴典雅,塑造不同一般的居室美感。
沙發下深色花紋地毯的尺寸很大,讓客廳顯得更為大氣,配上茶幾上擺放的花草裝飾品,顯示溫暖熱烈,充滿生機。

吊燈是歐式住宅常用水晶燈樣式,讓餐廳環境顯得華麗起來。白色餐桌搭配綠色餐墊非常合適,產生一種清新、明凈的感覺。
收納柜的樣式非常簡約,中間部分空了出來,兩幅裝飾畫疊放在一起,再配上麋鹿的小擺件,立刻呈現出一小片精致的景色。剩下的封閉型的柜子,可以收納東西,讓客廳變得整潔。

廚房整體都是白色的,看上去簡潔又時尚。沒有為了收納而在上面裝滿吊柜,那樣難免會顯得太過緊湊而有點無聊,只在油煙機旁安裝了兩個小吊柜,疏密有度。
從設計看廚房是U型設計,洗滌區、烹飪區及操作臺劃分明確,動線無縫銜接,能減少物品拿取往復的時間,給下廚的人帶來方便。

進來視線的第一落點就是紅色裝飾畫,素雅的空間里面有這樣一個視覺焦點,使得背景墻變得充實起來,熱烈而且充滿活力。
床頭是歐式靠墊,由富有節奏感的曲線或曲面構成,結構簡練,線條流暢,藝術感強,給人的整體感覺是優雅又莊重。

榻榻米床因為可以貼著墻體安裝,底部還可以用于收納,能讓整個空間的利用率都提高了不少。
窗簾搭配單波幔,將房間美化了不少。壁掛的置物架,不僅能解放空間還有一定的裝飾性。大小各異,不同圖案的裝飾畫組合在一起,藝術魅力倍增。

本案的干濕分離做的徹底,洗手臺被安在外面,濕區面積非常寬敞,加上淺色系的瓷磚,顯得干凈、明亮。馬桶上方的置物架可以放一些干爽的小物,下方來掛毛巾,實用性很強。
家裝攻略
- 二手房裝修舊房翻新太難了,想要裝修不求人?建議收藏!
- 工地巡檢:步履不停,以行動兌現品質承諾,嚴格把控每一環!
- 避坑指南:裝修坑多、水深?歸根結底五個字:信息不對稱
- 工地巡檢日:標準&品質是底線,專業&用心是態度!
- 好評如潮:曬一波熱乎的客戶評價,親身體驗過才最具有發言權!
- 最好的口碑,莫過于裝修業主的真實評價!
- 南京紅牛裝飾:始終如一,以品質說話,以服務鑄口碑!
- 再好的文案,都抵不過客戶的真實反饋!“三個最”【內附完工實景】
- 工地突擊巡檢|嚴把每一處細節,用心守護每一份安心!
- 南京紅牛裝飾再添榮譽,榮獲兩面錦旗,雙倍肯定,十分滿意!
- 南京115㎡現代簡約風裝修,每一處都將“實用”和“顏值”完美兼容!
- 裝修寶典:為何說企業文化是企業靈魂,是企業生存與發展的根本?
- 南京裝修公司紅牛裝飾工地突擊巡檢:一厘一毫堅守品質,一心一意守護新家!
- 南京裝修避坑指南:裝修材料的選擇,直接影響您入住新家的早晚?
- 南京比較靠譜的裝修公司?南京紅牛裝飾裝修寶典:新房裝修好多久可以入住?關鍵在于……
- 工地巡檢:雙節同慶,品質同行,嚴把每一道工序,用心守護夢想家!
- 避坑指南:老房改造二手舊房翻新注意這幾點,省心又省錢!
- 690億元!2025最后一批“國補”資金已下達!還可疊加企補!至高可省40000元!
- 【9月再添榮譽】業主說紅牛裝飾設計牛!監工牛!預算牛!超滿意!
- 九月秋意漸濃,南京紅牛裝飾工地巡檢步履不停,只為兌現品質承諾!


