| 案例風格 | 現代簡約風格 | 案例戶型 | 平層 | 案例面積 | 88㎡ |
|---|---|---|---|---|---|
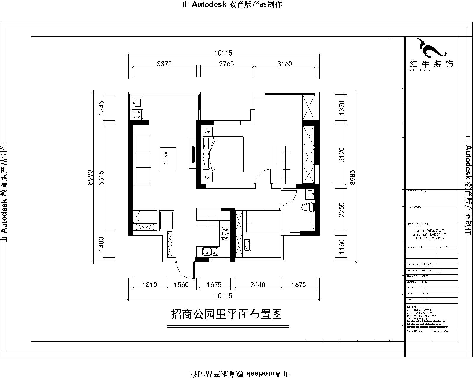
| 樓盤名稱 | 招商依云和府 | 設 計 師 | 朱彥 | 案例造價 | 15萬 |
設計說明
本套方案在滿足功能實用的前提下對原始房型結構進行了局部的改造及布局,原始結構餐廳現在把餐廳的位置做了大的調整滿足了客戶對餐廳要求。以通透性、實用性、舒適性為主要設計思路。在設計中并沒有不變的俗和雅,關鍵在于對色彩的準確把握冷色是讓人內心感覺平靜的色調,可以中和暖色的輕快感。


南京招商依云和府88平米現代簡約風格裝修 | 冷暖中和
本套方案以通透性、實用性、舒適性為主要設計思路,在滿足功能實用的前提下對原始房型結構進行了局部的改造及布局,把餐廳的位置做了大的調整滿足了客戶對餐廳要求。
設計師說:“在設計中并沒有不變的俗和雅,關鍵在于對色彩的準確把握,冷色是讓人內心感覺平靜的色調,可以中和暖色的輕快之感。”
■樓盤名稱:招商依云和府
■設計風格:現代簡約風格
■建筑面積:88㎡
■店面地址:南京市秦淮區龍蟠中路458-3號【南京紅牛裝飾工程有限公司】
■服務熱線:025-52228153

黑白兩色組成的地毯十分顯眼,構成客廳的主要色調,簡潔但不失品味,顯得很上檔次。
吊燈造型復雜,金屬支架搭配精致的玻璃球燈罩,個性十足。
沙發背景墻安裝灰色的裝飾用鏡,灰色帶給空間內斂和低調的特點,鏡子增加空間的立體層次感。
一張雙人沙發,兩邊對稱的邊幾,黑白拼接的長方形茶幾構成了沙發區,簡潔卻很舒適。
此外,還有一個橘色單椅,打造出亮眼一角,拼色窗簾中的橘色部分就與它進行了呼應。

櫥柜都是藍色的,藍色令廚房煥發生機,使人獲得視覺的愉悅,減緩疲憊。而臺面是白色的,能使廚房產生應有的清潔感。
吧臺的一端與墻壁相連接,非常清晰的劃分出廚房的邊界。吧臺可以打造成一個小的餐桌,在這里喝一杯咖啡或者吃個簡餐都很不錯。
吧臺上方,玻璃外框之中是蠟燭造型的燈具,時尚又優雅。對面墻上就是裝飾畫組合,打造出一條很有趣的過道,極具空間感染力。



主臥的面積很大,通過吊頂與吸頂燈的區分,被分為三塊空間。
一部分是陽臺部分,一張躺椅,可以舒服的躺著看外部風景。前方的架子上擺些花草,賞心悅目。
然后就是衣柜部分,柜門是有色玻璃,玻璃質感通透,給人一種精致的感覺,效果很是驚艷。還留了一小塊地方放了張書桌,平時可以在此辦公。
最后就是床的部分,床邊鋪上了軟軟的地毯,可以想象,光腳踩在上面,一定極為舒適。床頭安裝了兩盞吊燈,不僅能解放出桌面空間,還能提升了空間格調。背景墻上的裝飾畫彌補了墻面的空曠。

次臥面積比較小,但是大氣的灰色墻壁,搭配白色的床上用品,簡潔大方,很是舒適。
床頭的書桌,可以當做床頭柜使用,金色的書架使得書籍能夠豎立進行收納,折臂臺燈能滿足調整光源的需求。
墻上的四格墻柜,擺放上照片等裝飾品,起到了很好的修飾作用。

衛生間是水龍頭是入墻式,簡潔清爽,還能節約洗手盆的臺面空間,龍頭是雙控,十字形造型,非常美觀。
馬桶上方的裝飾畫的懸掛,使得廁所仿佛也變成了一個時尚空間。
安裝了獨立的淋浴房,能達到干濕分離的目的,防止水汽彌漫損壞浴室物品。
家裝攻略
- 二手房裝修舊房翻新太難了,想要裝修不求人?建議收藏!
- 工地巡檢:步履不停,以行動兌現品質承諾,嚴格把控每一環!
- 避坑指南:裝修坑多、水深?歸根結底五個字:信息不對稱
- 工地巡檢日:標準&品質是底線,專業&用心是態度!
- 好評如潮:曬一波熱乎的客戶評價,親身體驗過才最具有發言權!
- 最好的口碑,莫過于裝修業主的真實評價!
- 南京紅牛裝飾:始終如一,以品質說話,以服務鑄口碑!
- 再好的文案,都抵不過客戶的真實反饋!“三個最”【內附完工實景】
- 工地突擊巡檢|嚴把每一處細節,用心守護每一份安心!
- 南京紅牛裝飾再添榮譽,榮獲兩面錦旗,雙倍肯定,十分滿意!
- 南京115㎡現代簡約風裝修,每一處都將“實用”和“顏值”完美兼容!
- 裝修寶典:為何說企業文化是企業靈魂,是企業生存與發展的根本?
- 南京裝修公司紅牛裝飾工地突擊巡檢:一厘一毫堅守品質,一心一意守護新家!
- 南京裝修避坑指南:裝修材料的選擇,直接影響您入住新家的早晚?
- 南京比較靠譜的裝修公司?南京紅牛裝飾裝修寶典:新房裝修好多久可以入住?關鍵在于……
- 工地巡檢:雙節同慶,品質同行,嚴把每一道工序,用心守護夢想家!
- 避坑指南:老房改造二手舊房翻新注意這幾點,省心又省錢!
- 690億元!2025最后一批“國補”資金已下達!還可疊加企補!至高可省40000元!
- 【9月再添榮譽】業主說紅牛裝飾設計牛!監工牛!預算牛!超滿意!
- 九月秋意漸濃,南京紅牛裝飾工地巡檢步履不停,只為兌現品質承諾!


