| 案例風格 | 現代簡約風格 | 案例戶型 | 平層 | 案例面積 | 90㎡ |
|---|---|---|---|---|---|
| 樓盤名稱 | 四季金輝 | 設 計 師 | 吳波 | 案例造價 | 12 |
設計說明
南京四季金輝90平米現代簡約風格裝修 | 跳躍色彩讓空間更靈動
整套方案為現代簡約風格,以簡潔明快的設計風格為主調,空間中大膽運用跳躍的色彩,釋放一種心情,品味一種情趣。
從全面考慮,在總體布局上方面盡量滿足業主生活的需求,主要裝修以基礎的材料為主,配合簡潔墻面,使空間感更加豐富。創造出了一個溫馨,健康的又不失個性的家庭環境。

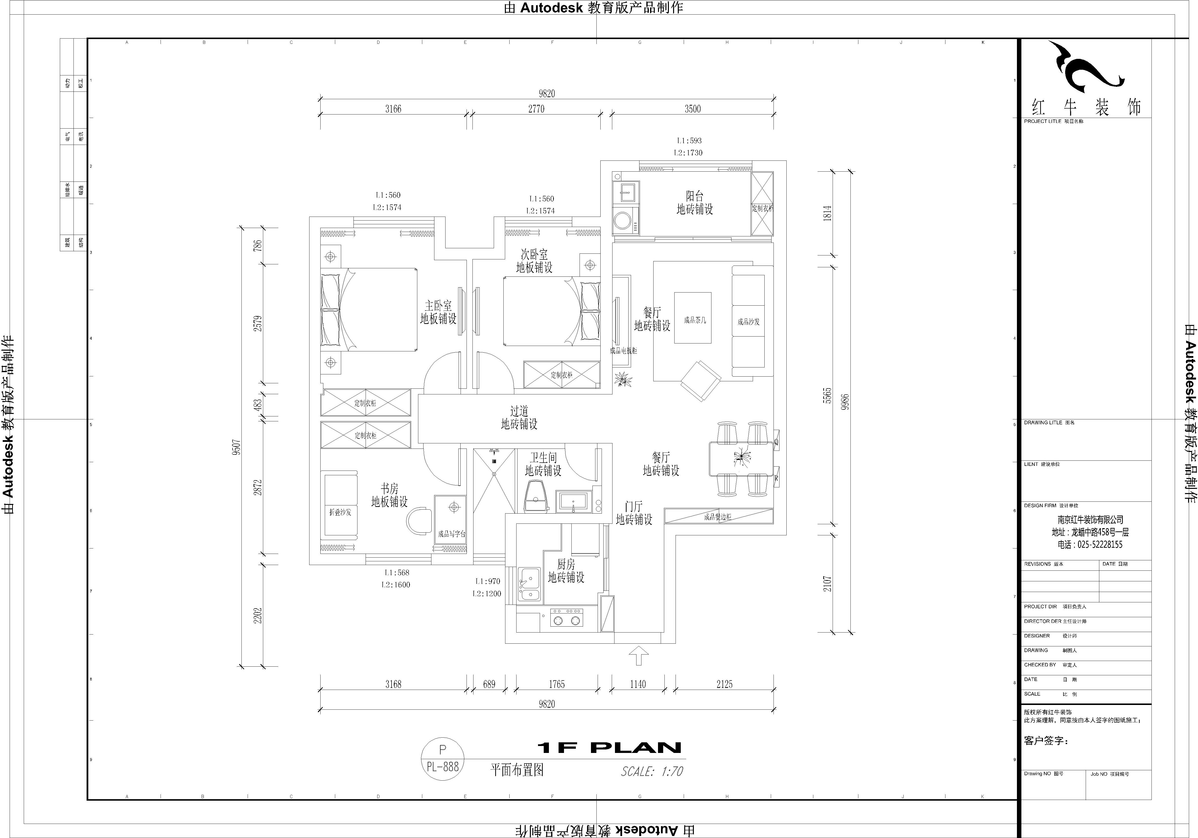
■樓盤名稱:四季金輝
■設計風格:現代簡約風格
■建筑面積:90㎡
■店面地址:南京市秦淮區龍蟠中路458號
■服務熱線:025-52228153

我們先看一下客廳,其墻壁、頂面都是白色,甚至沙發、茶幾也是白色,透露出一種簡單純凈的感覺。
本案中電視柜的設計很有特色,電視柜+吊柜的組合,不僅看上去有層次感、有設計感,還能增加收納空間,擺放一些書籍在里面,不看電視時可以抽出幾本來閱讀。

客廳與餐廳處于同一空間,設計師利用裝飾畫與吊燈將餐廳這一功能區分隔開來。
白色的餐桌搭配白色的椅子,視覺上給人以清新簡單的感覺,深色餐墊在白色桌面上非常醒目,盡顯優雅氣質。
桌上的窄口花瓶,稀稀疏疏的插上4-5支小花枝,裝點了餐廳區域,自帶一種清新之風。

看廚房的第一印象就是整潔,仔細一看,頂吸式油煙機“隱蔽”于櫥柜內,調味品放在壁掛收納架上,整齊有秩序。
地柜有一部分進行了分層,燃氣灶下方的儲物空間被做成了兩層抽屜,可以減少拿取物品時彎腰的頻次和幅度,能帶來不少便利。

主臥鋪設了地板,顯示出一片溫潤、舒適之感。到頂的衣柜,擁有更大的整體體積,能收納更多的衣服。
其中的家具、裝飾品幾乎都是直線條,在設計師加入了圓形燈罩的弧線元素之后,不同形狀的線條形成碰撞,打造出一個簡潔又富有層次的空間。
鮮亮的黃色床旗與枕頭的搭配,使人感受到了強烈的視覺沖擊感,整個空間都被點亮了。

次臥的空間較小,但是設計簡潔明了,經久耐看,充滿線條之美。
梳妝臺臺面高低錯落,高處擺放化妝產品,低處用作床頭柜,兩種功能集于一身,節約了室內空間。
臥室本來是淺色系,但是床品的紅色與花紋讓人在簡約淡雅中又感受到一份絢麗之美。

這間是書房,墻上只掛了一張裝飾畫,但是比例適度、構圖美觀,所以簡單大方,不顯單調。
這間書房也安裝了一個到頂柜子,存儲空間很足。
每當辦公疲憊之時,可以坐到小沙發上稍作休息,可以說,書房雖小但功能齊全。

衛生間里面不但有洗手臺、底柜,還安裝了鏡柜,開放式柜子與封閉式柜子組合在一起的設計,讓物品收納有針對性、更細致。化妝鏡下方的置物板平時可以放置常用物品,方便又貼心。
此外,馬桶上方安裝收納架、毛巾桿,材質是黑色鐵藝,風格獨特而且結實耐用。
家裝攻略
- 二手房裝修舊房翻新太難了,想要裝修不求人?建議收藏!
- 工地巡檢:步履不停,以行動兌現品質承諾,嚴格把控每一環!
- 避坑指南:裝修坑多、水深?歸根結底五個字:信息不對稱
- 工地巡檢日:標準&品質是底線,專業&用心是態度!
- 好評如潮:曬一波熱乎的客戶評價,親身體驗過才最具有發言權!
- 最好的口碑,莫過于裝修業主的真實評價!
- 南京紅牛裝飾:始終如一,以品質說話,以服務鑄口碑!
- 再好的文案,都抵不過客戶的真實反饋!“三個最”【內附完工實景】
- 工地突擊巡檢|嚴把每一處細節,用心守護每一份安心!
- 南京紅牛裝飾再添榮譽,榮獲兩面錦旗,雙倍肯定,十分滿意!
- 南京115㎡現代簡約風裝修,每一處都將“實用”和“顏值”完美兼容!
- 裝修寶典:為何說企業文化是企業靈魂,是企業生存與發展的根本?
- 南京裝修公司紅牛裝飾工地突擊巡檢:一厘一毫堅守品質,一心一意守護新家!
- 南京裝修避坑指南:裝修材料的選擇,直接影響您入住新家的早晚?
- 南京比較靠譜的裝修公司?南京紅牛裝飾裝修寶典:新房裝修好多久可以入住?關鍵在于……
- 工地巡檢:雙節同慶,品質同行,嚴把每一道工序,用心守護夢想家!
- 避坑指南:老房改造二手舊房翻新注意這幾點,省心又省錢!
- 690億元!2025最后一批“國補”資金已下達!還可疊加企補!至高可省40000元!
- 【9月再添榮譽】業主說紅牛裝飾設計牛!監工牛!預算牛!超滿意!
- 九月秋意漸濃,南京紅牛裝飾工地巡檢步履不停,只為兌現品質承諾!


