| 案例風格 | 現代簡約風格 | 案例戶型 | 平層 | 案例面積 | 142㎡ |
|---|---|---|---|---|---|
| 樓盤名稱 | 保利國際社區 | 設 計 師 | 劉曉芳 | 案例造價 | |


南京保利國際社區142平米現代簡約風格裝修
基本情況
開發商:保利里城
區域:棲霞區
地址:太新路與燕園路交匯處(經五路和太新路交匯處西50米)
戶型:4室2廳
使用面積:142㎡
裝修風格:現代簡約
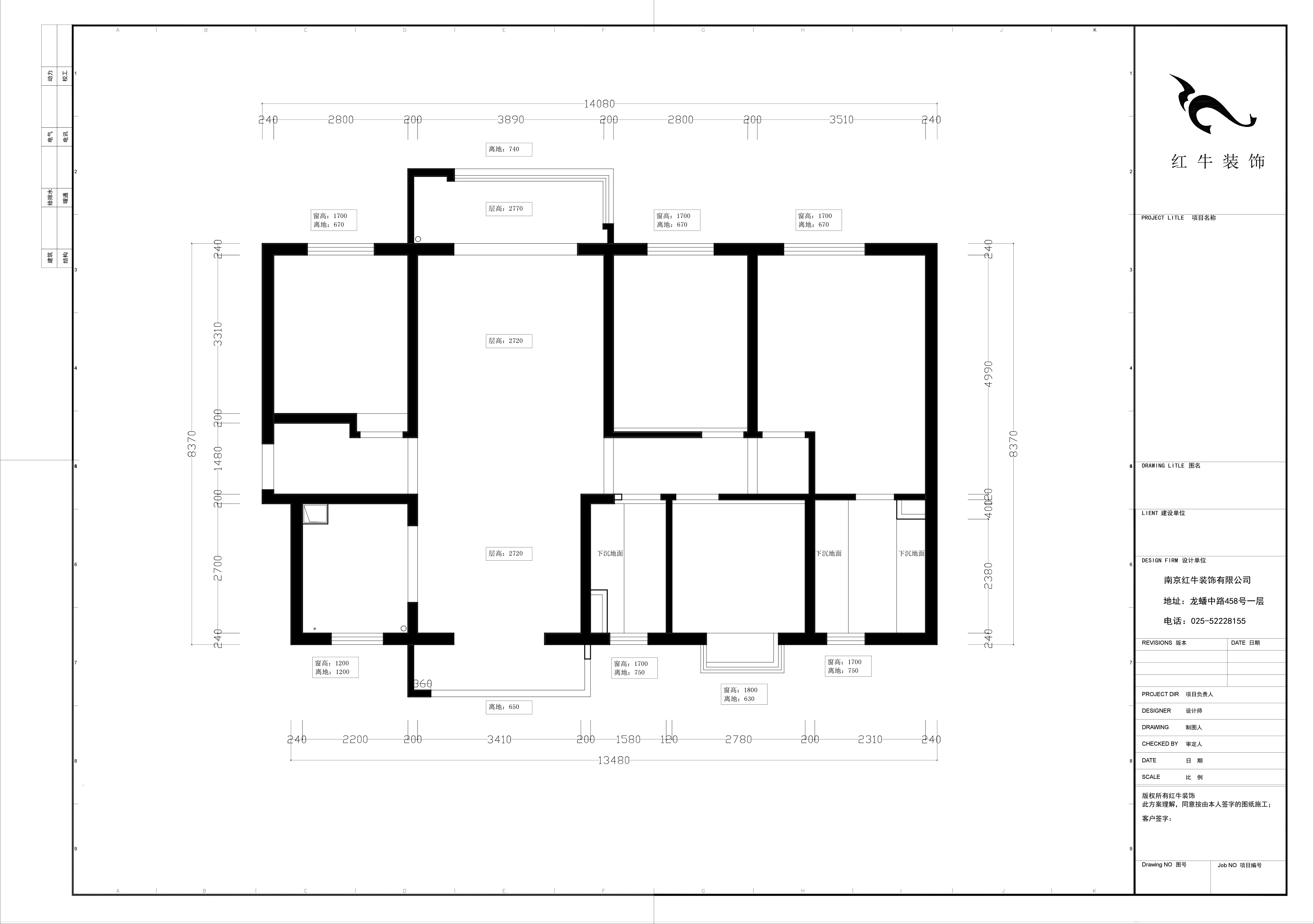
原始戶型分析

△原始戶型圖
1 原始戶型優點
1、三臥室朝南,全明通透。
2 原始戶型缺點
1、廚房、客房面積較小。
2、過道較長。
3、主衛生間較大,門正對著主臥床的位置。
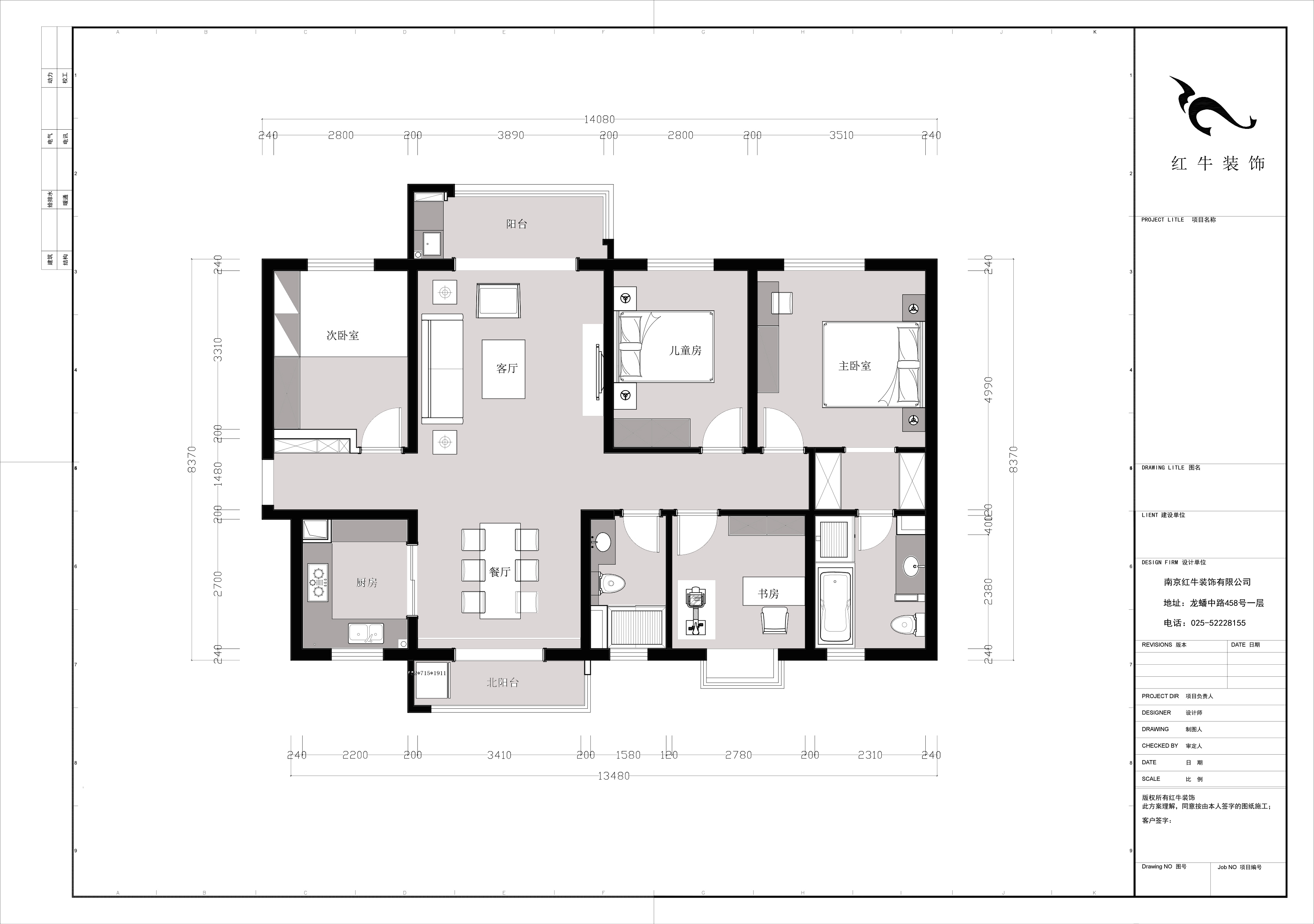
設計成果展示
結構基本上沒有改動,只是在主臥隔出了一個衣帽間。

△平面設計
效果圖展示
設計師用理性而睿智的態度,設計出高品質的優質生活空間。

△客廳
客廳以藍灰色的大理石花紋色調為主題,現代風格造型簡潔明快,兼具了時尚和潮流。
用開放式設計手法去詮釋空間氛圍,使整個空間舒適而明亮。

△餐廳
2.2米的深色的長條桌搭配白色的餐椅,簡潔大氣。
枝條造型的燈飾,散發溫暖的燈光,營造出溫馨的氛圍。

△廚房
嵌入式廚電設計使得廚房看上去干凈整潔。
灰色與白色的搭配,彰顯質感。

△主臥
香檳色與原木色搭配的背景墻設計,溫馨典雅。
枕頭的顏色鮮艷跳脫,也給房間增添了不少新意。

△次臥
次臥是榻榻米的樣式,集儲物、住宿于一體。

△兒童房
兒童房的藍色墻壁,清新養眼。
擺上一個小小的帳篷,孩子可以在里面獨自享受專有的小空間。

△書房
書房除了工作上網之外,還可以踩一踩動感單車,包含了健身房的功能。

△衛生間
半堵墻的設計,不僅可以實現干濕分區,還可以讓衛生間看起來更加開闊。
家裝攻略
- 二手房裝修舊房翻新太難了,想要裝修不求人?建議收藏!
- 工地巡檢:步履不停,以行動兌現品質承諾,嚴格把控每一環!
- 避坑指南:裝修坑多、水深?歸根結底五個字:信息不對稱
- 工地巡檢日:標準&品質是底線,專業&用心是態度!
- 好評如潮:曬一波熱乎的客戶評價,親身體驗過才最具有發言權!
- 最好的口碑,莫過于裝修業主的真實評價!
- 南京紅牛裝飾:始終如一,以品質說話,以服務鑄口碑!
- 再好的文案,都抵不過客戶的真實反饋!“三個最”【內附完工實景】
- 工地突擊巡檢|嚴把每一處細節,用心守護每一份安心!
- 南京紅牛裝飾再添榮譽,榮獲兩面錦旗,雙倍肯定,十分滿意!
- 南京115㎡現代簡約風裝修,每一處都將“實用”和“顏值”完美兼容!
- 裝修寶典:為何說企業文化是企業靈魂,是企業生存與發展的根本?
- 南京裝修公司紅牛裝飾工地突擊巡檢:一厘一毫堅守品質,一心一意守護新家!
- 南京裝修避坑指南:裝修材料的選擇,直接影響您入住新家的早晚?
- 南京比較靠譜的裝修公司?南京紅牛裝飾裝修寶典:新房裝修好多久可以入???關鍵在于……
- 工地巡檢:雙節同慶,品質同行,嚴把每一道工序,用心守護夢想家!
- 避坑指南:老房改造二手舊房翻新注意這幾點,省心又省錢!
- 690億元!2025最后一批“國補”資金已下達!還可疊加企補!至高可省40000元!
- 【9月再添榮譽】業主說紅牛裝飾設計牛!監工牛!預算牛!超滿意!
- 九月秋意漸濃,南京紅牛裝飾工地巡檢步履不停,只為兌現品質承諾!


