| 案例風格 | 美式風格 | 案例戶型 | 平層 | 案例面積 | 90㎡ |
|---|---|---|---|---|---|
| 樓盤名稱 | 百家湖國際花園 | 設 計 師 | 劉曉芳 | 案例造價 | |
設計說明
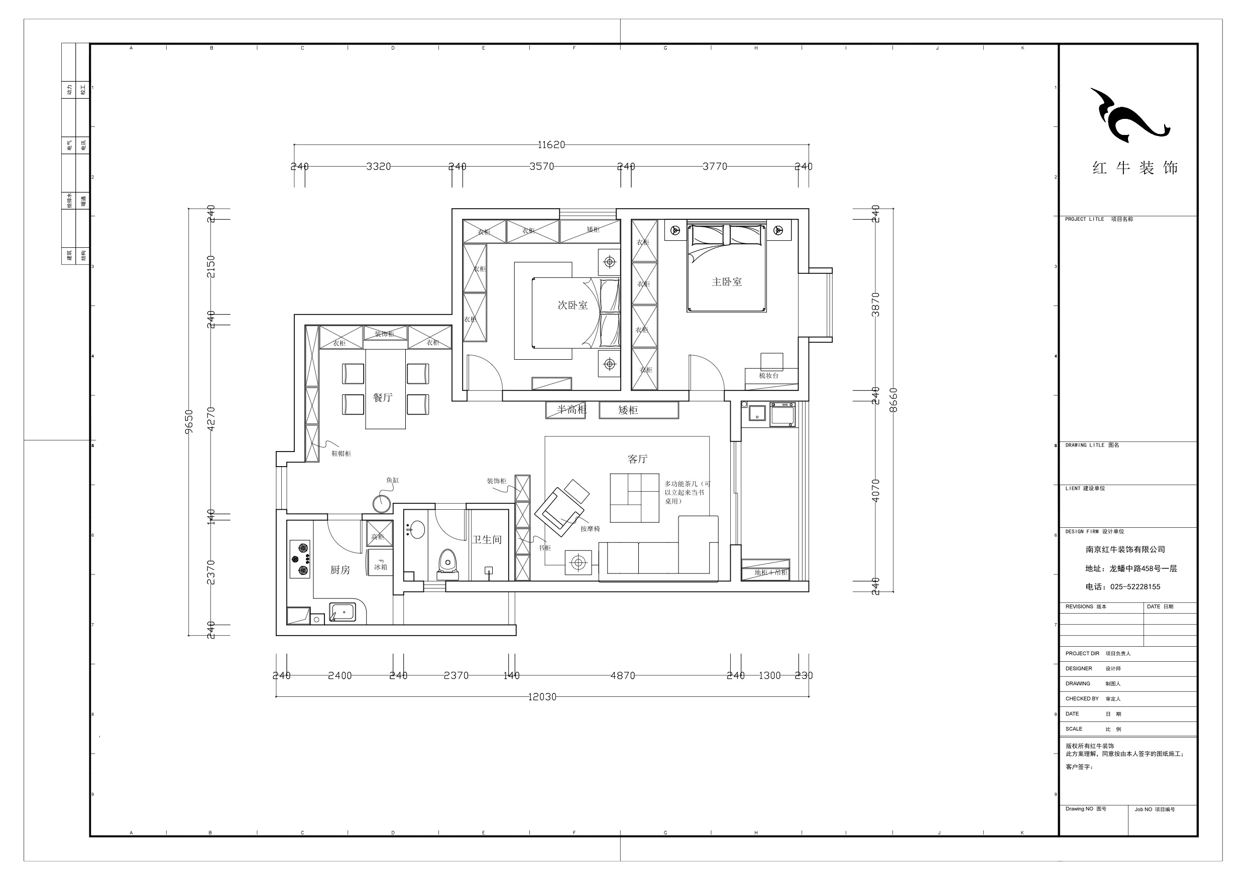
客戶是一對年輕的人,準備作為他們的婚房,客戶黃先生和蘇小姐都是從事金融行業的,工作的壓力非常大,希望回到家里會有生活在農村時家里的自然和味道, 在身心上能有一定的放松。
這次設計主要和黃先生溝通的,根據他的構想,和他一起完成了風格的定位,,同時在結構布局上面也幫助他實現了需求,兩個人在家里吃飯的時間比較少,同時需要一個回到家里可以辦公的空間,家里還要有很多的儲藏衣服的空間。
在布局上,餐廳和辦公空間的完美結合,客廳的裝飾柜,不但解決了書籍擺放的位置,同時神出來的一截恰好就是進門的玄關,也破解了風水上的忌諱。
在風格設計上一方面保留了材質、色彩的自然風格,讓人感受到傳統的歷史痕跡與渾厚的文化底蘊。同時又摒棄了過于復雜的肌理和裝飾,簡化了線條。將懷舊的浪漫情懷與現代人對生活的需求相結合,兼具華貴典雅與時尚現代。



家裝攻略
- 二手房裝修舊房翻新太難了,想要裝修不求人?建議收藏!
- 工地巡檢:步履不停,以行動兌現品質承諾,嚴格把控每一環!
- 避坑指南:裝修坑多、水深?歸根結底五個字:信息不對稱
- 工地巡檢日:標準&品質是底線,專業&用心是態度!
- 好評如潮:曬一波熱乎的客戶評價,親身體驗過才最具有發言權!
- 最好的口碑,莫過于裝修業主的真實評價!
- 南京紅牛裝飾:始終如一,以品質說話,以服務鑄口碑!
- 再好的文案,都抵不過客戶的真實反饋!“三個最”【內附完工實景】
- 工地突擊巡檢|嚴把每一處細節,用心守護每一份安心!
- 南京紅牛裝飾再添榮譽,榮獲兩面錦旗,雙倍肯定,十分滿意!
- 南京115㎡現代簡約風裝修,每一處都將“實用”和“顏值”完美兼容!
- 裝修寶典:為何說企業文化是企業靈魂,是企業生存與發展的根本?
- 南京裝修公司紅牛裝飾工地突擊巡檢:一厘一毫堅守品質,一心一意守護新家!
- 南京裝修避坑指南:裝修材料的選擇,直接影響您入住新家的早晚?
- 南京比較靠譜的裝修公司?南京紅牛裝飾裝修寶典:新房裝修好多久可以入住?關鍵在于……
- 工地巡檢:雙節同慶,品質同行,嚴把每一道工序,用心守護夢想家!
- 避坑指南:老房改造二手舊房翻新注意這幾點,省心又省錢!
- 690億元!2025最后一批“國補”資金已下達!還可疊加企補!至高可省40000元!
- 【9月再添榮譽】業主說紅牛裝飾設計牛!監工牛!預算牛!超滿意!
- 九月秋意漸濃,南京紅牛裝飾工地巡檢步履不停,只為兌現品質承諾!


