| 案例風格 | 現代簡約風格 | 案例戶型 | 平層 | 案例面積 | 120㎡ |
|---|---|---|---|---|---|
| 樓盤名稱 | 百家湖國際花園 | 設 計 師 | 劉曉芳 | 案例造價 | |
設計說明
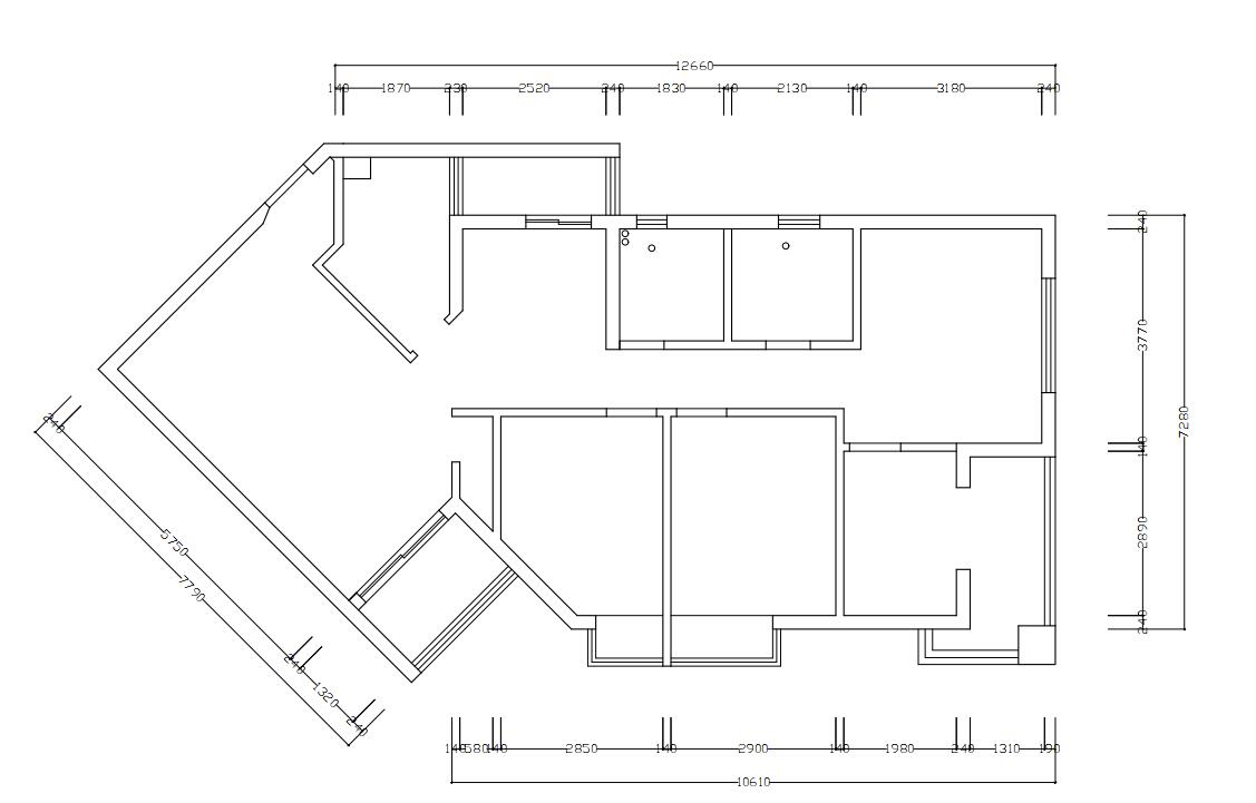
第一次見到這個房間,腦子里面就冒出來了一個想法,怎么會有這樣的結構,進門很堵,廚房很小,還有拐彎,四個房間只有主臥室的大小還可以,其他三個臥室擺放床都是問題。
客戶對房子的要求很簡單,只要能住就可以了,不過看到業主王先生的氣質,要求可不是表面說的那么簡單。在房子里面勘查了很久,然后表面上看起來是胸有成竹的和客戶說,放心,房子交給我,肯定沒有問題。
在現場仔細勘查和測量房子結構,其實心里已經有了一定的想法,原來的結構雖然是4房,但是其他三間都很小,很難4個房間都做成臥室,中間也詢問過客戶的需求,大概需要3個臥室就可以了,這樣在功能性就能滿足客戶的需求了,房間的隔墻拆了重新來過,保證每個房間的面積的同時又考慮儲藏。廚房的位置挪到了餐廳,原來廚房的位置拆掉了給客廳,進門不在擁堵,又多了一個儲藏室,可以堆放雜物等,廚房方正,而且面積也足夠大。
在設計風格上面現代簡約,沒有繁瑣的造型,和華麗的背景,一切都是那么簡單的自然,因為結構問題,頂部的空間吊頂采用了弧形和圓形,搭配上了圓形的吊燈,簡潔又不失柔美。


家裝攻略
- 二手房裝修舊房翻新太難了,想要裝修不求人?建議收藏!
- 工地巡檢:步履不停,以行動兌現品質承諾,嚴格把控每一環!
- 避坑指南:裝修坑多、水深?歸根結底五個字:信息不對稱
- 工地巡檢日:標準&品質是底線,專業&用心是態度!
- 好評如潮:曬一波熱乎的客戶評價,親身體驗過才最具有發言權!
- 最好的口碑,莫過于裝修業主的真實評價!
- 南京紅牛裝飾:始終如一,以品質說話,以服務鑄口碑!
- 再好的文案,都抵不過客戶的真實反饋!“三個最”【內附完工實景】
- 工地突擊巡檢|嚴把每一處細節,用心守護每一份安心!
- 南京紅牛裝飾再添榮譽,榮獲兩面錦旗,雙倍肯定,十分滿意!
- 南京115㎡現代簡約風裝修,每一處都將“實用”和“顏值”完美兼容!
- 裝修寶典:為何說企業文化是企業靈魂,是企業生存與發展的根本?
- 南京裝修公司紅牛裝飾工地突擊巡檢:一厘一毫堅守品質,一心一意守護新家!
- 南京裝修避坑指南:裝修材料的選擇,直接影響您入住新家的早晚?
- 南京比較靠譜的裝修公司?南京紅牛裝飾裝修寶典:新房裝修好多久可以入住?關鍵在于……
- 工地巡檢:雙節同慶,品質同行,嚴把每一道工序,用心守護夢想家!
- 避坑指南:老房改造二手舊房翻新注意這幾點,省心又省錢!
- 690億元!2025最后一批“國補”資金已下達!還可疊加企補!至高可省40000元!
- 【9月再添榮譽】業主說紅牛裝飾設計牛!監工牛!預算牛!超滿意!
- 九月秋意漸濃,南京紅牛裝飾工地巡檢步履不停,只為兌現品質承諾!


