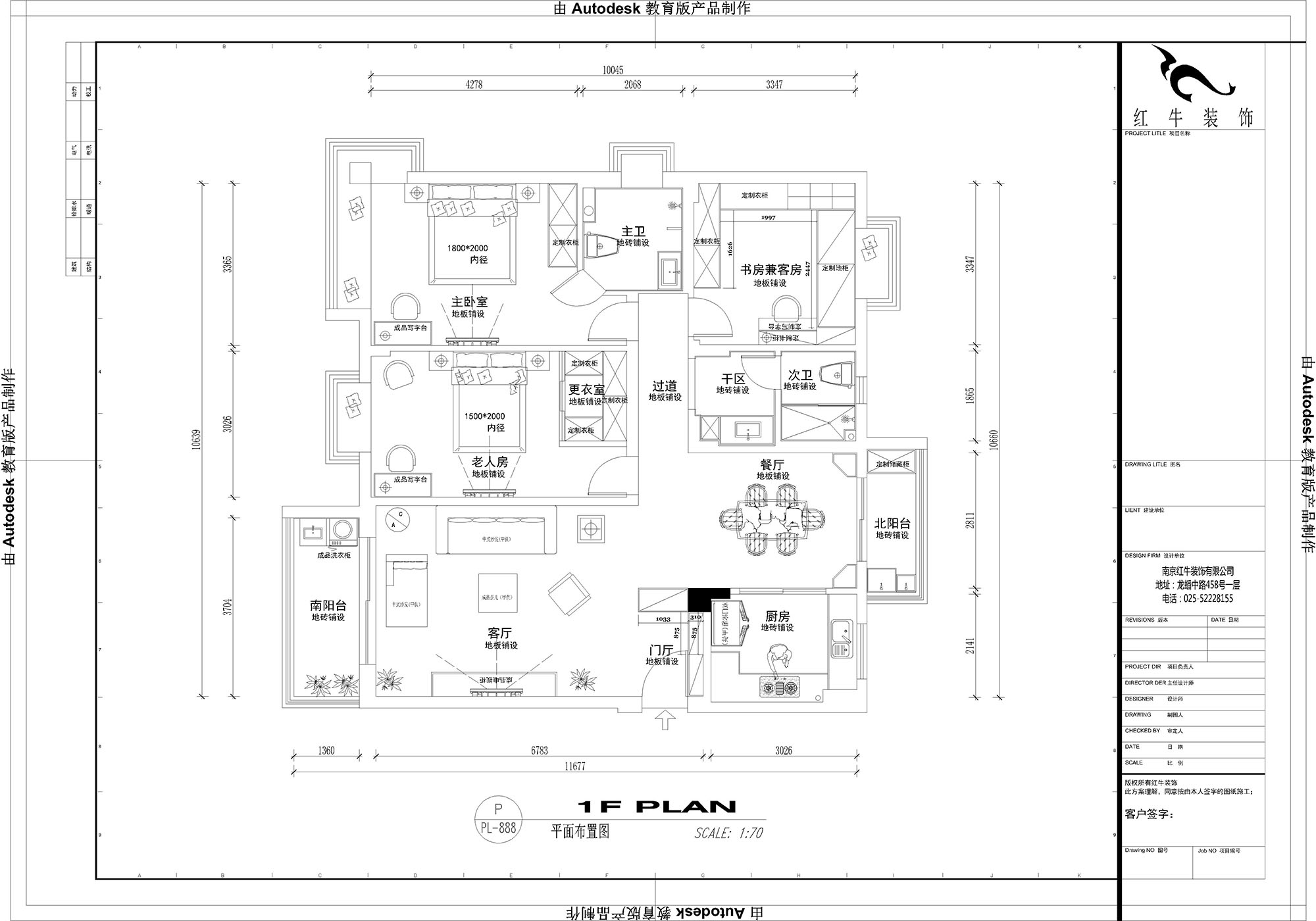
| 案例風格 | 新中式風格 | 案例戶型 | 平層 | 案例面積 | 150㎡ |
|---|---|---|---|---|---|
| 樓盤名稱 | 香格里拉東苑 | 設 計 師 | 吳波 | 案例造價 | 18萬(全包) |
設計說明:
整套方案為東方禪意風格,以現代簡練的手法。無過多的修飾,每個器物都極簡,但體現出精髓。這套禪意雅居,外在刪繁就簡,去除造作偽飾,內在返璞歸真,清晰穩妥。簡約不失簡單,而是簡潔婉約,獨具風致和格調,正如天生麗質的自然之美一樣怡人快心。質樸的紋理和色調,素雅而不沉悶簡約的造型線條,簡而不失其華,約不顯其澀,處處洋溢著心凈界自靜的氣氛。整個空間處理上力求精簡,以少量的裝飾材料體現出禪意的氛圍。軟裝及家具具亦力求簡意的明式家具為基礎,努力提煉出東方文化的精髓。


家裝攻略
- 避坑指南:裝修坑多、水深?歸根結底五個字:信息不對稱
- 工地巡檢日:標準&品質是底線,專業&用心是態度!
- 好評如潮:曬一波熱乎的客戶評價,親身體驗過才最具有發言權!
- 最好的口碑,莫過于裝修業主的真實評價!
- 南京紅牛裝飾:始終如一,以品質說話,以服務鑄口碑!
- 再好的文案,都抵不過客戶的真實反饋!“三個最”【內附完工實景】
- 工地突擊巡檢|嚴把每一處細節,用心守護每一份安心!
- 南京紅牛裝飾再添榮譽,榮獲兩面錦旗,雙倍肯定,十分滿意!
- 南京115㎡現代簡約風裝修,每一處都將“實用”和“顏值”完美兼容!
- 裝修寶典:為何說企業文化是企業靈魂,是企業生存與發展的根本?
- 南京裝修公司紅牛裝飾工地突擊巡檢:一厘一毫堅守品質,一心一意守護新家!
- 南京裝修避坑指南:裝修材料的選擇,直接影響您入住新家的早晚?
- 南京比較靠譜的裝修公司?南京紅牛裝飾裝修寶典:新房裝修好多久可以入住?關鍵在于……
- 工地巡檢:雙節同慶,品質同行,嚴把每一道工序,用心守護夢想家!
- 避坑指南:老房改造二手舊房翻新注意這幾點,省心又省錢!
- 690億元!2025最后一批“國補”資金已下達!還可疊加企補!至高可省40000元!
- 【9月再添榮譽】業主說紅牛裝飾設計牛!監工牛!預算牛!超滿意!
- 九月秋意漸濃,南京紅牛裝飾工地巡檢步履不停,只為兌現品質承諾!
- “金九銀十”裝修黃金期,南京電視臺攜手紅牛裝飾發福利啦~
- 金秋暖心禮|一面錦旗,一句好評,一份信賴!


