| 案例風格 | 北歐風格 | 案例戶型 | 平層 | 案例面積 | 80㎡ |
|---|---|---|---|---|---|
| 樓盤名稱 | 衛橋新村 | 設 計 師 | 仇美蓉 | 案例造價 | 11萬(全包) |
南京老房翻新 | “能住”與“好住”之間,就差這點改變
這是一套老房改造的案例,來自南京衛崗西2號衛橋新村,面積為80平方米。經過設計師的一番改造,變成了如今很受歡迎的北歐風格。
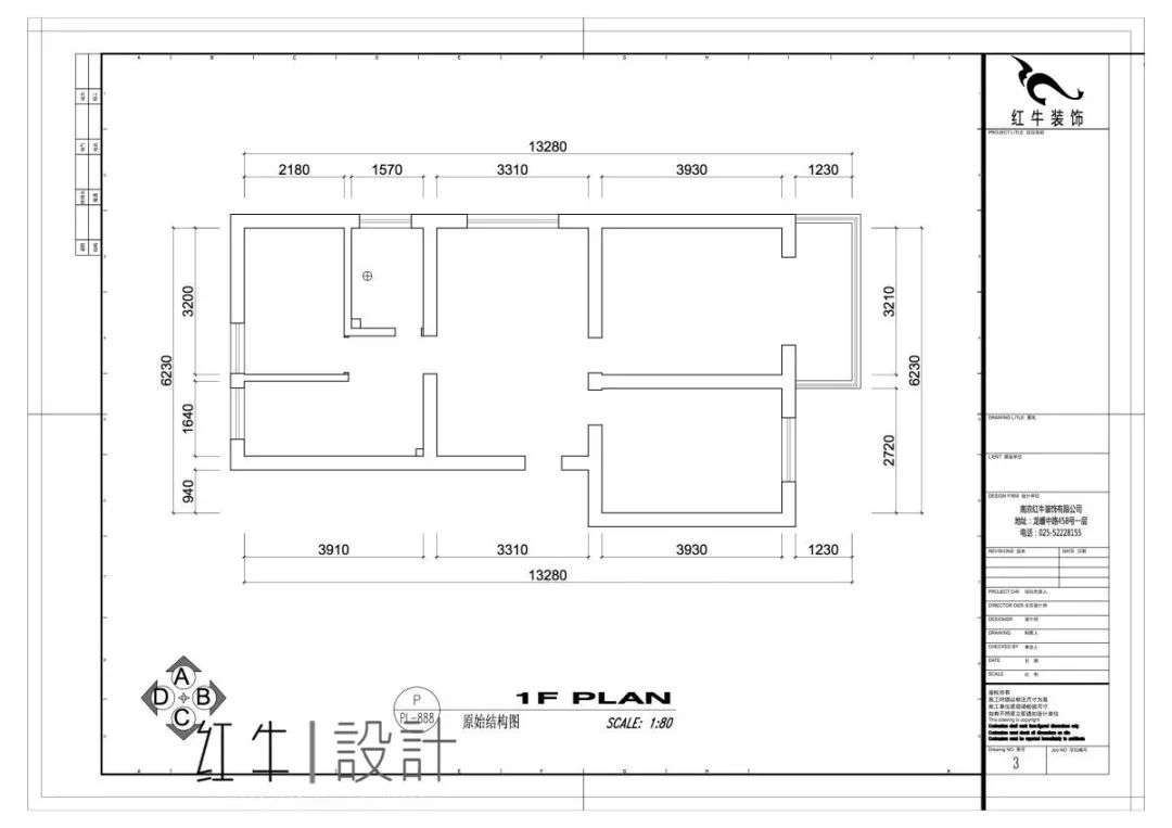
改造前

▲原始戶型圖
首先要說,本案戶型不錯,整體較為規整,而且南北通透,所以并不需要進行大面積拆改。





客餐廳以及臥室部分,看起來相對整潔,但是色調比較陳舊,從燈具以及擺放的家具上可以看得出年代感,不符合如今的審美。

如果你點擊下方的720度量房圖,查看廚房部分,就會發現油煙機相當老舊,并且已經生銹。此外,水池與灶臺位于同一排,操作上不夠便利,風水上也應該避免。

衛生間白色墻磚搭配黑色地磚,墻地色彩對比太強,視覺上顯得比較狹小。并且內部只設置了淋浴與馬桶,少掉的洗手柜對于日常生活來說還是非常必要的。

掃描二維碼,查看720度量房圖,看清原始戶型的每一處細節。
總之,該案例的原始樣子不算特別糟糕,總體來說還是能滿足居住需求的。但是“能住”不等于“好住”,經過改造,不但能夠提升家居美感,還能提高生活品質。
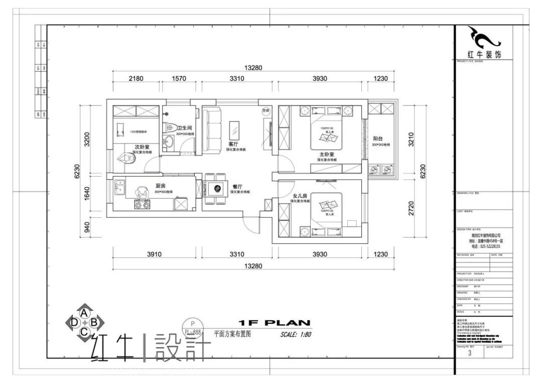
改造后

▲平面布置圖

平面布置圖+全景效果圖,對整體設計效果了解地更直觀,更能看清圖片上沒有的細節。

燈飾是家居的眼睛,如今的燈飾讓家居環境都變得年輕起來。
原本客廳墻上的裝飾是中國結之類,如今換上的三連幅裝飾畫,更符合現今的審美風尚。
在看餐廳部分,餐桌線條細膩柔和,呈現出一派素雅的風格,人性化的圓角處理既美觀又能呵護家人安全。
嵌入式酒柜除了收藏美酒之外,還有很好的裝飾作用。

原本廚房門與書房門并排相依,外部是走廊區域,放著冰箱、洗衣機等。
如今,廚房門位置做了了改變,原先走廊區域中的一部分,被包含在廚房內,空間上寬敞了許多。
“L”型設計,水池與灶臺不在同一條線上,操作更加合理,洗菜槽也不是原來的單槽設計,便于分類清洗。

原先主臥與陽臺之間的推拉門,使用了磨砂玻璃起到遮擋隱私的作用。
如今選用透明玻璃加上雙層窗簾的組合,既能隔絕灰塵,引入陽光,也能保護隱私,營造有情調的臥室氛圍。

讓人平靜的藍色調,用于臥室空間非常適合,營造更加輕松的空間氛圍。
床頭吊燈使得臥室更顯溫馨,并且還能節約床頭柜的臺面面積,留下更多空間放置其他隨身用品。

書房安裝榻榻米,可以實現辦公休息一體化。客人到來也能作為客房使用,不大的空間利用地非常到位。

設計了洗手柜之后,這樣的衛生間算得上功能齊全。
墻上的毛巾架,方便懸掛晾干洗浴用品,能夠抑制細菌。
屏幕右下方在線咨詢,紅牛裝飾在線客服會給您分享更多精彩案例哦!
家裝攻略
- 二手房裝修舊房翻新太難了,想要裝修不求人?建議收藏!
- 工地巡檢:步履不停,以行動兌現品質承諾,嚴格把控每一環!
- 避坑指南:裝修坑多、水深?歸根結底五個字:信息不對稱
- 工地巡檢日:標準&品質是底線,專業&用心是態度!
- 好評如潮:曬一波熱乎的客戶評價,親身體驗過才最具有發言權!
- 最好的口碑,莫過于裝修業主的真實評價!
- 南京紅牛裝飾:始終如一,以品質說話,以服務鑄口碑!
- 再好的文案,都抵不過客戶的真實反饋!“三個最”【內附完工實景】
- 工地突擊巡檢|嚴把每一處細節,用心守護每一份安心!
- 南京紅牛裝飾再添榮譽,榮獲兩面錦旗,雙倍肯定,十分滿意!
- 南京115㎡現代簡約風裝修,每一處都將“實用”和“顏值”完美兼容!
- 裝修寶典:為何說企業文化是企業靈魂,是企業生存與發展的根本?
- 南京裝修公司紅牛裝飾工地突擊巡檢:一厘一毫堅守品質,一心一意守護新家!
- 南京裝修避坑指南:裝修材料的選擇,直接影響您入住新家的早晚?
- 南京比較靠譜的裝修公司?南京紅牛裝飾裝修寶典:新房裝修好多久可以入住?關鍵在于……
- 工地巡檢:雙節同慶,品質同行,嚴把每一道工序,用心守護夢想家!
- 避坑指南:老房改造二手舊房翻新注意這幾點,省心又省錢!
- 690億元!2025最后一批“國補”資金已下達!還可疊加企補!至高可省40000元!
- 【9月再添榮譽】業主說紅牛裝飾設計牛!監工牛!預算牛!超滿意!
- 九月秋意漸濃,南京紅牛裝飾工地巡檢步履不停,只為兌現品質承諾!


