| 案例風格 | 現代簡約風格 | 案例戶型 | 平層 | 案例面積 | 99㎡ |
|---|---|---|---|---|---|
| 樓盤名稱 | 海賦尚城 | 設 計 師 | 劉曉芳 | 案例造價 | 14萬 |
設計說明:
本方案是以現代風格為主,這套房子居住是一家三口居住為主,現代簡約風格是現在家裝行業受裝修業主青睞的設計風格。
因為它簡約而精致,簡單卻實用,并且設計方面不乏個性化,兼顧了時尚與實用,所以在色彩上就要選擇明快一點的顏色,例如黃色、橙色、白色、黑色、等。這些顏色的飽和度都比較高,容易讓人產生一種快樂的感覺,在裝飾方面也比較顯眼。
根據不同的空間來搭配不同的家具、吊頂、燈飾等,通過光線的強弱來劃分空間,裝飾上講求簡而精,在相應位置擺上合適的擺件,以突出個性和美感。以簡潔的視覺效果打造出時尚前衛的感覺。


南京海賦尚城99㎡現代風格 | 幸福的三口之家

■ 樓盤名稱:海賦尚城
■ 設計風格:現代風格
■ 建筑面積:99㎡
居住在這套房子的是一家三口,所以設計師在色彩上選擇了明快一點的顏色,使人感到快樂,裝飾上則講求簡而精,突出個性和美感。

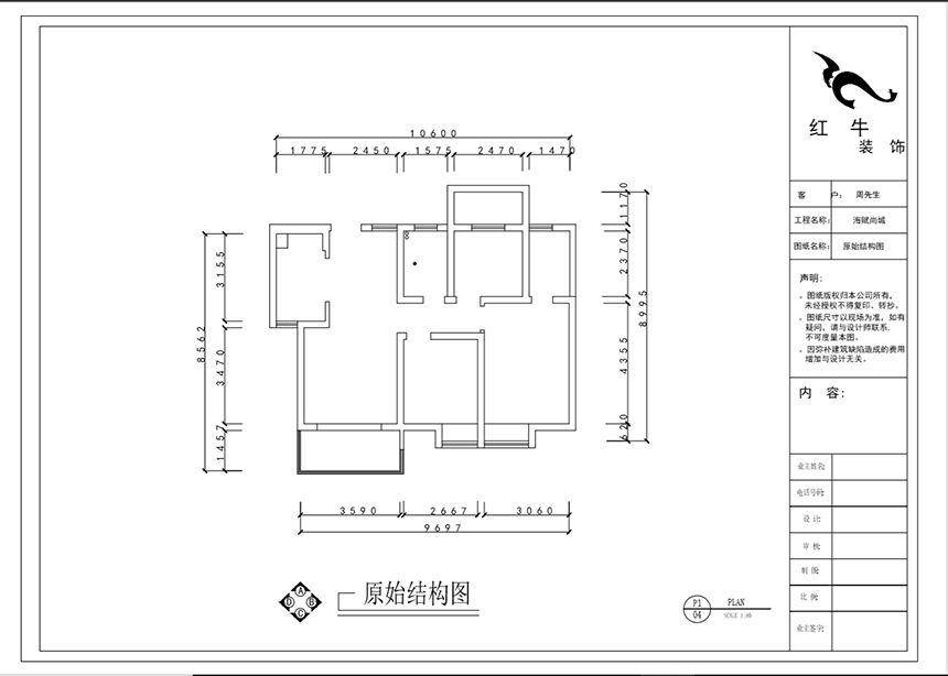
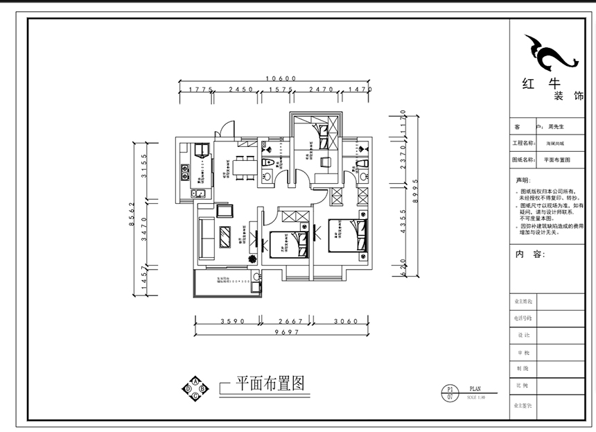
▲平面圖

平面布置圖+全景效果圖,對整體設計效果了解地更直觀,更能看清圖片上沒有的細節。

餐桌椅擁有干凈的木紋線條,細膩柔和,人性化的圓角處理既美觀又能呵護家人安全。不同顏色的餐椅進行混搭,使得空間充滿活力。

餐廳與客廳之間有一道玻璃隔斷,區域之間有了劃分,同時又能透光。白色豎條紋造型的電視背景墻與整體風格和諧統一,又有著自己獨特的小別致。

灰色沙發在視覺上非常的簡約精致,因其百搭優雅的特點,與空間里與其他色彩、家具、飾物能夠更好地搭配組合。

統一的木色帶來天然樸素的感覺,整個廚房空間干凈又敞亮。

墻面上造型特別的裝飾品,成為進門后視線的第一落點,給空間增添美感。橘色的皮質大床格外搶眼,帶來不錯的視覺效果。

經由隔出的衣帽間,可以進入主臥附帶的衛生間。白色石材的臺面簡潔大氣;與木質柜體的結合很有質感。

淺色的墻壁背景下,深灰色的大床加上淺灰色的床品,再搭配上地毯,整體感覺簡潔優雅,黃色的加入提亮了空間,給人恰到好處的溫暖。

床與柜子很好地組合在一起,加長擱板做書桌,層次感十足。不大的空間集居住、工作學習、收納、娛樂為一體。

白色的衛浴產品充滿清潔感。淋浴區與其他功能區域進行劃分后,既可保持衛浴場地的干燥衛生,又能維持浴室整體環境的整潔美觀。
------------------------------------
屏幕右下方在線咨詢預約裝修,到店就有禮品相贈哦!
家裝攻略
- 二手房裝修舊房翻新太難了,想要裝修不求人?建議收藏!
- 工地巡檢:步履不停,以行動兌現品質承諾,嚴格把控每一環!
- 避坑指南:裝修坑多、水深?歸根結底五個字:信息不對稱
- 工地巡檢日:標準&品質是底線,專業&用心是態度!
- 好評如潮:曬一波熱乎的客戶評價,親身體驗過才最具有發言權!
- 最好的口碑,莫過于裝修業主的真實評價!
- 南京紅牛裝飾:始終如一,以品質說話,以服務鑄口碑!
- 再好的文案,都抵不過客戶的真實反饋!“三個最”【內附完工實景】
- 工地突擊巡檢|嚴把每一處細節,用心守護每一份安心!
- 南京紅牛裝飾再添榮譽,榮獲兩面錦旗,雙倍肯定,十分滿意!
- 南京115㎡現代簡約風裝修,每一處都將“實用”和“顏值”完美兼容!
- 裝修寶典:為何說企業文化是企業靈魂,是企業生存與發展的根本?
- 南京裝修公司紅牛裝飾工地突擊巡檢:一厘一毫堅守品質,一心一意守護新家!
- 南京裝修避坑指南:裝修材料的選擇,直接影響您入住新家的早晚?
- 南京比較靠譜的裝修公司?南京紅牛裝飾裝修寶典:新房裝修好多久可以入住?關鍵在于……
- 工地巡檢:雙節同慶,品質同行,嚴把每一道工序,用心守護夢想家!
- 避坑指南:老房改造二手舊房翻新注意這幾點,省心又省錢!
- 690億元!2025最后一批“國補”資金已下達!還可疊加企補!至高可省40000元!
- 【9月再添榮譽】業主說紅牛裝飾設計牛!監工牛!預算牛!超滿意!
- 九月秋意漸濃,南京紅牛裝飾工地巡檢步履不停,只為兌現品質承諾!


