| 案例風格 | 中式風格 | 案例戶型 | 平層 | 案例面積 | 60㎡ |
|---|---|---|---|---|---|
| 樓盤名稱 | 寧工新寓 | 設 計 師 | 劉曉芳 | 案例造價 | 9.8萬(全包) |
設計說明:
本套方案在滿足功能實用的前提下對原始房型結構進行了局部的改造及布局,其它整體空間基本合理,以通透性、實用性、舒適性為主要設計思路。
客戶喜歡簡潔明亮不要繁瑣的裝飾,在設計中并沒有不變的俗和雅,新中式風格的家具搭配以古典家具或現代家具與古典家具相結合,中國古典家具以明清家具為代表,在新中式風格家具配飾上多以線條簡練的明式家具為主,比較簡約。使整體空間感覺更加豐富,大而不空、厚而不重,有格調又不顯壓抑。


南京老房翻新 | 兩室一廳變一室兩廳

一般提到中式風格,很多人都會聯想到大戶型,那今天就來介紹一套小戶型的二手房,被設計成現代中式風格,也有不錯的效果哦。


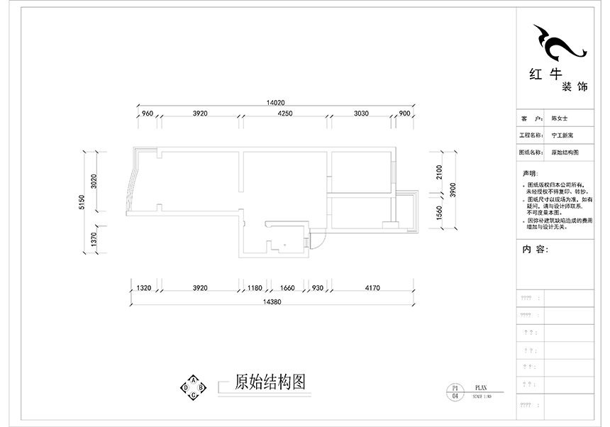
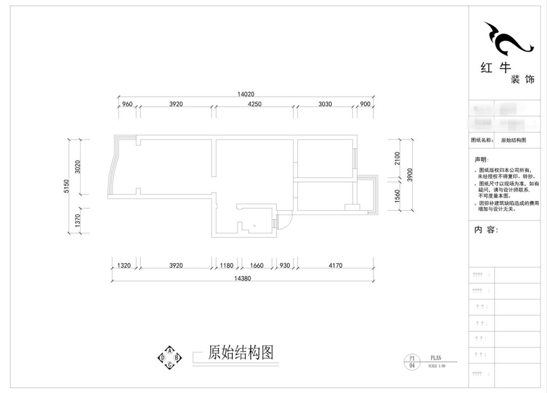
▲原始戶型圖



原本是兩室一廳,但是因為業主只需要一間臥室,所以次臥的部分被改造成餐廳,這樣每個功能區都能得到充分的發揮,小戶型也能有大空間的效果。


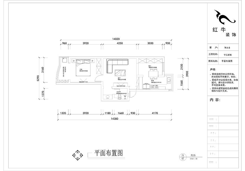
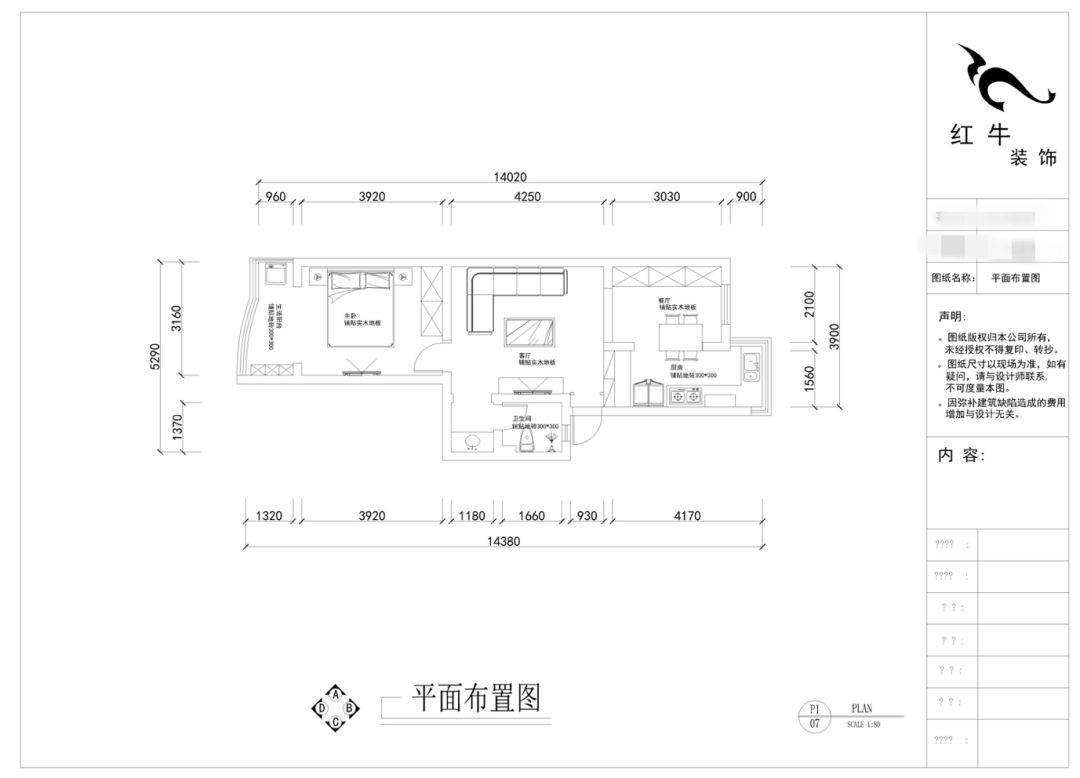
▲平面布置圖

平面布置圖+全景效果圖,對整體設計效果了解地更直觀,更能看清圖片上沒有的細節。

自然的木紋,干練的線條,營造出安靜優雅的中式之美。水墨樣式的地毯增加空間的層次感。

客廳家具的整體搭配,既有當代的流行感,也不失中國傳統文化的韻味。

悉心裝飾的玄關,將中式風味體現地淋漓盡致,進門的一瞬間,就能感受到文化的氛圍。

到頂柜子方正大氣,帶來充足的儲物空間。餐桌椅繼承中式風格的同時,還兼具一些現代元素,讓空間充滿質感。

廚房呈L型,簡潔大氣。木質櫥柜自然優雅,打造出典雅氣質的中式廚房。

臥室加入了很多現代元素,呈現出時尚的特征,整體舒適又愜意。

洗手臺被分離出去,工作日的早晨,上廁所和刷牙洗臉可以同時進行,互不干擾。
--------------------------------
南京需要裝修的業主,可以聯系我們:15380996031(微信同號)
家裝攻略
- 二手房裝修舊房翻新太難了,想要裝修不求人?建議收藏!
- 工地巡檢:步履不停,以行動兌現品質承諾,嚴格把控每一環!
- 避坑指南:裝修坑多、水深?歸根結底五個字:信息不對稱
- 工地巡檢日:標準&品質是底線,專業&用心是態度!
- 好評如潮:曬一波熱乎的客戶評價,親身體驗過才最具有發言權!
- 最好的口碑,莫過于裝修業主的真實評價!
- 南京紅牛裝飾:始終如一,以品質說話,以服務鑄口碑!
- 再好的文案,都抵不過客戶的真實反饋!“三個最”【內附完工實景】
- 工地突擊巡檢|嚴把每一處細節,用心守護每一份安心!
- 南京紅牛裝飾再添榮譽,榮獲兩面錦旗,雙倍肯定,十分滿意!
- 南京115㎡現代簡約風裝修,每一處都將“實用”和“顏值”完美兼容!
- 裝修寶典:為何說企業文化是企業靈魂,是企業生存與發展的根本?
- 南京裝修公司紅牛裝飾工地突擊巡檢:一厘一毫堅守品質,一心一意守護新家!
- 南京裝修避坑指南:裝修材料的選擇,直接影響您入住新家的早晚?
- 南京比較靠譜的裝修公司?南京紅牛裝飾裝修寶典:新房裝修好多久可以入住?關鍵在于……
- 工地巡檢:雙節同慶,品質同行,嚴把每一道工序,用心守護夢想家!
- 避坑指南:老房改造二手舊房翻新注意這幾點,省心又省錢!
- 690億元!2025最后一批“國補”資金已下達!還可疊加企補!至高可省40000元!
- 【9月再添榮譽】業主說紅牛裝飾設計牛!監工牛!預算牛!超滿意!
- 九月秋意漸濃,南京紅牛裝飾工地巡檢步履不停,只為兌現品質承諾!


