| 案例風格 | 美式風格 | 案例戶型 | 平層 | 案例面積 | 160㎡ |
|---|---|---|---|---|---|
| 樓盤名稱 | 碧桂園鳳鳴苑 | 設 計 師 | 魏明花 | 案例造價 | 26萬(全包) |
改造前:
1、 客餐廳比例不明確
2、 廚房過于狹長
3、電視背景墻果斷,后調整門洞尺寸
設計說明:
在本案中注重整體搭配,表現在材質的質感,光澤,色彩設計中強調運用對比色。選擇古典造型,色彩凝重的美式家具來強化特色,如代表深沉和穩重的美式家具來強化特色,可以體現主人大氣而富有修養的品質,頂面及墻面的石膏線條簡潔大方,整體上和諧過度。
案例分析:
從整個戶型來分析,空間分割是合理的,但是細節處有諸多不足,入戶的空間過于狹長,有點空間浪費的意思,故將此空間一分為二,以此更好的利用起來。 電視背景采用硬包壁畫,顯得整個空間大氣,空間內采用很多木線條跟石膏線條作為主要配飾元素,顯得既不沉重又有美式的味道,一進門端景的鹿頭寓意吉祥,又點綴了整個空間。



碧桂園鳳鳴苑160㎡簡美風格 | 喜歡深色家具的看過來

■ 樓盤名稱:碧桂園鳳鳴苑
■ 設計風格:簡美風格
■ 建筑面積:160㎡
戶型設計

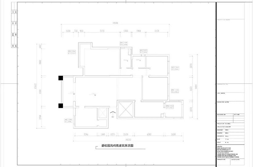
▲ 原始戶型圖
從整個戶型來看,空間分割是合理的,但是細節處仍有一些不足之處。
客餐廳比例不明確,入戶空間過長,故通過設計將空間一分為二。
廚房過于狹長,所有多出的一部分被設計成儲物空間。
電視背景墻上的門洞位置不太好,所以調整了門洞尺寸。

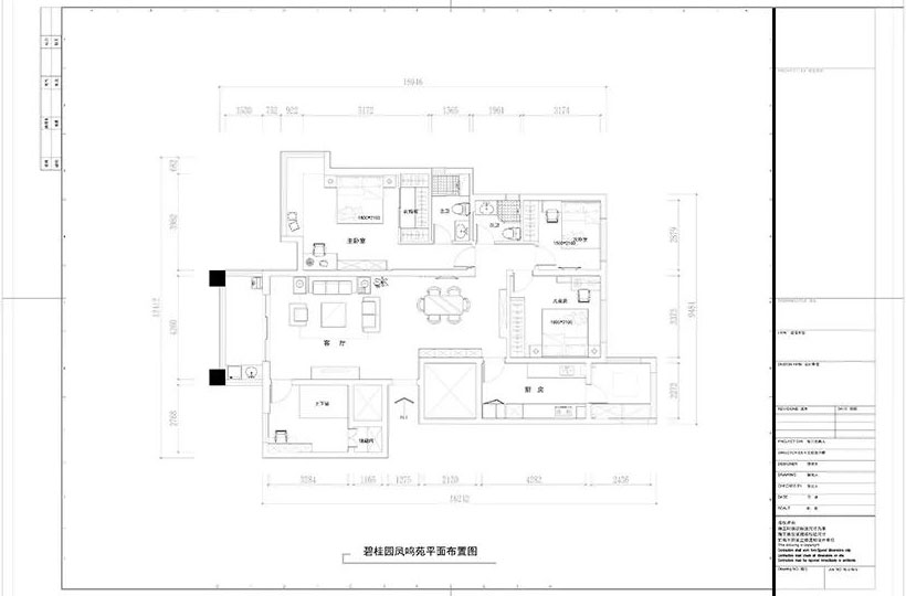
▲ 平面布置圖
本案整體效果美觀和諧,選用造型古典、色彩凝重的美式家具,體現了主人的修養與品位。
客廳效果

一進門端景的鹿頭寓意吉祥,又點綴了整個空間。客廳—玄關—餐廳的模式,界限分明,營造出寬敞大氣的空間效果。

電視背景采用硬包壁畫,精致典雅,空間內采用很多木線條跟石膏線條作為配飾元素,既不顯沉重,又有美式味道。

餐廳效果

餐桌旁的通頂柜將餐邊柜和玄關柜合二為一,既能掛起換下的衣物,又能作為餐桌的延伸,收納一部分物品。

餐廳擺放了圓形餐桌,一家人圍坐在一起,團團圓圓,氣氛和諧。加上轉盤,再也不用擔心夾菜不方便了。
廚房效果

廚房因地制宜設計成雙線型通道式,往前就是儲物間。廚房內部,收納方式靈活多變,吊柜方面,上翻門與平開門相結合,底柜方面,有多處抽屜設計。
主臥效果

L型飄窗,鋪上一層軟墊,保暖又舒適,搭配同樣紋樣的窗簾,顯得清新雅致。

主臥附帶了衛生間,精美的美式盆柜與淺色空間形成了對比,大浴室鏡讓空間顯得更加寬敞。
其他效果

衣柜、床、梳妝臺都是白色,使得空間視覺上更加明亮。床頭的梳妝臺在一定程度上也起到了床頭柜的作用。

雙層床擁有圓潤的線條輪廓,顯現出一派童趣。

設計師:魏明花
擅長風格:中式、簡約
設計理念:在把握整體立意的同時注重細節的表現,從而使建筑空間大氣且細膩。
作品小區:紫鑫中華廣場、碧桂園鳳鳴苑、世茂榮里、鐘山晶典、繽紛家園、金陵尚府、大發燕瀾灣、溪隱府、華府國際


家裝攻略
- 二手房裝修舊房翻新太難了,想要裝修不求人?建議收藏!
- 工地巡檢:步履不停,以行動兌現品質承諾,嚴格把控每一環!
- 避坑指南:裝修坑多、水深?歸根結底五個字:信息不對稱
- 工地巡檢日:標準&品質是底線,專業&用心是態度!
- 好評如潮:曬一波熱乎的客戶評價,親身體驗過才最具有發言權!
- 最好的口碑,莫過于裝修業主的真實評價!
- 南京紅牛裝飾:始終如一,以品質說話,以服務鑄口碑!
- 再好的文案,都抵不過客戶的真實反饋!“三個最”【內附完工實景】
- 工地突擊巡檢|嚴把每一處細節,用心守護每一份安心!
- 南京紅牛裝飾再添榮譽,榮獲兩面錦旗,雙倍肯定,十分滿意!
- 南京115㎡現代簡約風裝修,每一處都將“實用”和“顏值”完美兼容!
- 裝修寶典:為何說企業文化是企業靈魂,是企業生存與發展的根本?
- 南京裝修公司紅牛裝飾工地突擊巡檢:一厘一毫堅守品質,一心一意守護新家!
- 南京裝修避坑指南:裝修材料的選擇,直接影響您入住新家的早晚?
- 南京比較靠譜的裝修公司?南京紅牛裝飾裝修寶典:新房裝修好多久可以入住?關鍵在于……
- 工地巡檢:雙節同慶,品質同行,嚴把每一道工序,用心守護夢想家!
- 避坑指南:老房改造二手舊房翻新注意這幾點,省心又省錢!
- 690億元!2025最后一批“國補”資金已下達!還可疊加企補!至高可省40000元!
- 【9月再添榮譽】業主說紅牛裝飾設計牛!監工牛!預算牛!超滿意!
- 九月秋意漸濃,南京紅牛裝飾工地巡檢步履不停,只為兌現品質承諾!


