| 案例風格 | 現代簡約風格 | 案例戶型 | 平層 | 案例面積 | 90㎡ |
|---|---|---|---|---|---|
| 樓盤名稱 | 春江紫宸 | 設 計 師 | 朱彥 | 案例造價 | 20萬(全包O) |
設計說明:
本套方案為簡約風格,在滿足功能實用的前提下對原始房型結構進行了局部的改造及布局,以通透性、實用性、舒適性為主要設計思路。注重居室的實用性,體現出了現代社會生活的精致與個性,符合現代人的生活品位。


南京春江紫宸90㎡簡約風格 | 家有“小熊”

■ 樓盤名稱:春江紫宸
■ 設計風格:簡約風格
■ 建筑面積:90㎡
本套方案為簡約風格,在滿足功能實用的前提下,對原始房型結構進行了局部的改造及布局,以通透性、實用性、舒適性為主要設計思路,展現現代生活的精致與個性。
——設計師
客廳設計

沉穩大氣的沙發勾勒出一個家的氣度底蘊,既體現出理性與低調,又承托著放松與優雅。適度的裝飾使家居不缺乏時尚氣息。拼色窗簾與客廳色彩進行呼應,產生和諧的效果。

陽臺不只是作為晾曬區,更是作為洗衣房存在,并且還承擔了收納功能。兩側墻面設計了陽臺柜、洗衣機、洗手臺,空間利用率很高。
餐廚設計

玄關柜能夠帶來不少收納空間,中空部分放些裝飾品,顯得相當美觀。餐廳區風格素雅,餐桌人性化的圓角處理能夠呵護家人安全。

廚房沒有為了收納而裝滿吊柜,那樣難免會顯得太過緊湊。只在油煙機旁安裝了兩個小吊柜,疏密有度。
走廊設計

走廊面臨三面墻,如果只有清一色的房門,難免會顯得空洞無趣,這時掛上一幅裝飾畫,就可以體現主人的審美情趣和品位檔次,具有很強的感染力。
臥室設計

用柔和的曲線消除緊繃感,用豐富的軟性材料給人安全感,臥室給人的感覺就是柔軟舒適。

淺紫色的背景墻帶來安寧靜謐的空間氛圍。

床旗作為一種搭配被衾的鋪設,具有提升家居設計品位的作用。

床頭吊燈不僅能解放出床頭柜面上的空間,還提升了臥室格調。
衛生間設計

淋浴房內鋪貼了小方格瓷磚,展現出高顏值的同時,還具有防滑的作用。

設計師:朱彥
擅長風格:現代簡約、簡歐風格
設計理念:設計是沒有定式的,只要你熱愛生活,你認為是好的,他就是美的。
作品小區:紫金華府、中海桃源里、中垠紫金官邸、春江紫宸、林景熙園、雅居樂花園、青秀城、百家湖國際花園、世茂外灘新城、林景雅園、麗景華庭、恒山花苑、榮盛花語城、錦湖大廈、金盾花園、招商依云和府、鐘山花園城、招商語山、龍庭水岸、錦繡府邸等。
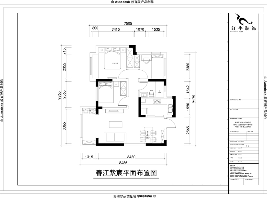
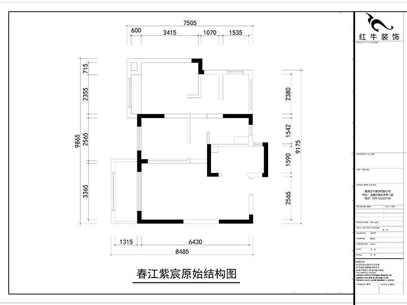
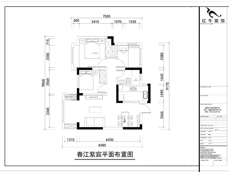
戶型圖

▲ 原始戶型圖

▲ 平面布置圖


家裝攻略
- 二手房裝修舊房翻新太難了,想要裝修不求人?建議收藏!
- 工地巡檢:步履不停,以行動兌現品質承諾,嚴格把控每一環!
- 避坑指南:裝修坑多、水深?歸根結底五個字:信息不對稱
- 工地巡檢日:標準&品質是底線,專業&用心是態度!
- 好評如潮:曬一波熱乎的客戶評價,親身體驗過才最具有發言權!
- 最好的口碑,莫過于裝修業主的真實評價!
- 南京紅牛裝飾:始終如一,以品質說話,以服務鑄口碑!
- 再好的文案,都抵不過客戶的真實反饋!“三個最”【內附完工實景】
- 工地突擊巡檢|嚴把每一處細節,用心守護每一份安心!
- 南京紅牛裝飾再添榮譽,榮獲兩面錦旗,雙倍肯定,十分滿意!
- 南京115㎡現代簡約風裝修,每一處都將“實用”和“顏值”完美兼容!
- 裝修寶典:為何說企業文化是企業靈魂,是企業生存與發展的根本?
- 南京裝修公司紅牛裝飾工地突擊巡檢:一厘一毫堅守品質,一心一意守護新家!
- 南京裝修避坑指南:裝修材料的選擇,直接影響您入住新家的早晚?
- 南京比較靠譜的裝修公司?南京紅牛裝飾裝修寶典:新房裝修好多久可以入住?關鍵在于……
- 工地巡檢:雙節同慶,品質同行,嚴把每一道工序,用心守護夢想家!
- 避坑指南:老房改造二手舊房翻新注意這幾點,省心又省錢!
- 690億元!2025最后一批“國補”資金已下達!還可疊加企補!至高可省40000元!
- 【9月再添榮譽】業主說紅牛裝飾設計牛!監工牛!預算牛!超滿意!
- 九月秋意漸濃,南京紅牛裝飾工地巡檢步履不停,只為兌現品質承諾!


