| 案例風格 | 現代簡約風格 | 案例戶型 | 平層 | 案例面積 | 145㎡ |
|---|---|---|---|---|---|
| 樓盤名稱 | 雅居樂 | 設 計 師 | 魏明花 | 案例造價 | |
南京雅居樂145㎡現代簡約 | 演繹當代生活美學

■樓盤名稱:雅居樂
■設計風格:現代簡約
■建筑面積:145㎡
在建筑室內設計方面,頂墻地三個面,完全不用紋樣和圖案裝飾,只用線條、色塊來區分點綴。在家具設計方面,則完全沒有使用雕花、紋飾的家具。如果說它們有什么共同點的話,那一定是簡潔、直接、功能化且貼近自然。
——設計師
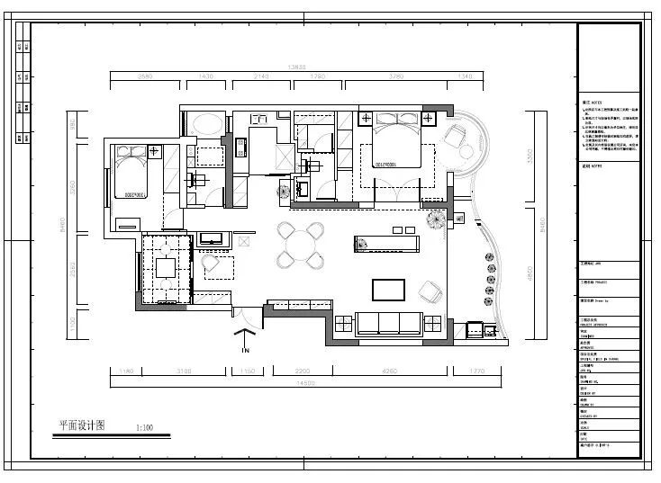
客廳設計

一進客廳,最搶眼的就是低矮的電視背景墻了,整體客廳因此顯得寬敞通透。坐在沙發上看電視,視線也剛剛好。

幽靈椅因其獨特的透明材質弱化了實際尺寸感,作為吧臺椅的存在,與現代簡約風格是天生一對。

造型簡潔的橙色單椅,為客廳注入熱情與活力。

玻璃器皿純凈、透明,是天生的花瓶材質,便于觀賞花的妙曼形態,形成悠閑自然的天成氣韻。

餐廚設計

餐廳到廚房之間的過道沒有浪費,一面設計了頂天立地的收納柜,一面是可以擺放裝飾品的斗柜。

U型廚房,各功能區劃分極其明確,動線無縫銜接,操作非常方便。
臥室設計

客廳旁邊就是臥室,臥房采用雙開門,效果極佳,打開門是一個通透的整體大空間。

深色背景墻,濕潤的棕色地板,白色通頂衣柜,組成一個充滿現代氣質的空間,給人以視覺平衡感。
設計師:魏明花
工作年限:10年
擅長風格:中式、簡約
設計理念:在把握整體立意的同時注重細節的表現,從而使建筑空間大氣且細膩。
作品小區:紫鑫中華廣場、碧桂園鳳鳴苑、世茂榮里、鐘山晶典、繽紛家園、金陵尚府、大發燕瀾灣、溪隱府、華府國際
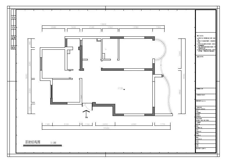
戶型圖



有意向裝修的朋友們,請撥打我們的網絡專享熱線15380996031(微信同號),可以幫您報銷交通費用哦。

家裝攻略
- 二手房裝修舊房翻新太難了,想要裝修不求人?建議收藏!
- 工地巡檢:步履不停,以行動兌現品質承諾,嚴格把控每一環!
- 避坑指南:裝修坑多、水深?歸根結底五個字:信息不對稱
- 工地巡檢日:標準&品質是底線,專業&用心是態度!
- 好評如潮:曬一波熱乎的客戶評價,親身體驗過才最具有發言權!
- 最好的口碑,莫過于裝修業主的真實評價!
- 南京紅牛裝飾:始終如一,以品質說話,以服務鑄口碑!
- 再好的文案,都抵不過客戶的真實反饋!“三個最”【內附完工實景】
- 工地突擊巡檢|嚴把每一處細節,用心守護每一份安心!
- 南京紅牛裝飾再添榮譽,榮獲兩面錦旗,雙倍肯定,十分滿意!
- 南京115㎡現代簡約風裝修,每一處都將“實用”和“顏值”完美兼容!
- 裝修寶典:為何說企業文化是企業靈魂,是企業生存與發展的根本?
- 南京裝修公司紅牛裝飾工地突擊巡檢:一厘一毫堅守品質,一心一意守護新家!
- 南京裝修避坑指南:裝修材料的選擇,直接影響您入住新家的早晚?
- 南京比較靠譜的裝修公司?南京紅牛裝飾裝修寶典:新房裝修好多久可以入住?關鍵在于……
- 工地巡檢:雙節同慶,品質同行,嚴把每一道工序,用心守護夢想家!
- 避坑指南:老房改造二手舊房翻新注意這幾點,省心又省錢!
- 690億元!2025最后一批“國補”資金已下達!還可疊加企補!至高可省40000元!
- 【9月再添榮譽】業主說紅牛裝飾設計牛!監工牛!預算牛!超滿意!
- 九月秋意漸濃,南京紅牛裝飾工地巡檢步履不停,只為兌現品質承諾!


