| 案例風格 | 現代簡約風格 | 案例戶型 | 平層 | 案例面積 | 106㎡ |
|---|---|---|---|---|---|
| 樓盤名稱 | 九條巷 | 設 計 師 | 蔣琛 | 案例造價 | |
106㎡現代風“養老房”裝修,給設計做減法!
今天要分享的案例的業主,是一對退休老夫妻,他們希望能夠更舒服地養老,所以打算把家里好好地裝修一番。
在整體設計上,設計師摒棄了多余的裝飾,更注重舒適實用,這樣對于老人來說,后期入住時,日常清掃會比較輕松,生活更加方便。
下面就一起來欣賞這套106㎡的現代風格家居吧。

結合三維家效果圖一起看,有更直觀的感受。

掃描二維碼
查看三維效果圖
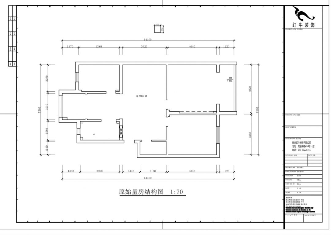
接下來,我們再來看一看房屋的原始戶型圖,做一個對比。

因為客廳空間過大,而家里的儲藏空間卻很少,所以在客廳和門廳的位置設計了一個儲藏室。墻面往外移動,變成了客廳的電視背景墻。
客廳

客廳通鋪木質地板,原木家具都選擇了細腿的類型,帶來輕盈的空間感。充滿暖意的墻面色彩使得整個客廳溫馨舒適,沙發背景墻上的四聯水墨畫,帶來一種古典的韻味。
餐廳

廚房與餐廳之間采用透明推拉門,能夠讓陽光能夠更好地穿透到室內,餐廳選擇了地磚,也能讓餐廳更顯通透明亮。
方形餐桌的外觀非常時尚,而且比較節省空間,在這樣的戶型格局中顯得相得益彰。
廚房

實際施工的時候,廚房里沒有做吊柜。原因有兩點,一是客戶家在二樓,光線比較差,做吊柜可能比較壓抑;二是需要爬高去拿東西,對業主來說可能不算很方便,所以就把吊柜給取消了。
主臥

主臥延續了客餐廳的風格,在色調跟家具款式上都比較穩重。運用利落的線條來勾勒出層次,更加細膩、流暢地呈現出一種古典之美。
次臥

次臥主要由黑、白、灰構成,硬朗的黑色讓空間更加立體,地毯與床品相呼應,營造出一種和諧之美。
書房

書房只放書桌、書柜的話未免浪費空間,所以特別定制了榻榻米,下部可以起到收納作用,來客時還可以作為客房使用。
衛生間

考慮到衛生間可能比較濕滑,所以淋浴房內部,以及馬桶旁邊都加了扶手設計,這樣日常使用時可以更加安全方便。

設計師:蔣琛
擅長風格:現代簡約、歐式風格、美式風格、新中式風格
設計理念:持之以恒的學習是設計的來源,責任感是設計的原則,而靈感是設計的升華。
作品小區:萬達茂、聚寶山莊、萬山庭院、南空光華、高科榮境、世茂外灘、世紀東山、南空光華、萬科別墅

家裝攻略
- 二手房裝修舊房翻新太難了,想要裝修不求人?建議收藏!
- 工地巡檢:步履不停,以行動兌現品質承諾,嚴格把控每一環!
- 避坑指南:裝修坑多、水深?歸根結底五個字:信息不對稱
- 工地巡檢日:標準&品質是底線,專業&用心是態度!
- 好評如潮:曬一波熱乎的客戶評價,親身體驗過才最具有發言權!
- 最好的口碑,莫過于裝修業主的真實評價!
- 南京紅牛裝飾:始終如一,以品質說話,以服務鑄口碑!
- 再好的文案,都抵不過客戶的真實反饋!“三個最”【內附完工實景】
- 工地突擊巡檢|嚴把每一處細節,用心守護每一份安心!
- 南京紅牛裝飾再添榮譽,榮獲兩面錦旗,雙倍肯定,十分滿意!
- 南京115㎡現代簡約風裝修,每一處都將“實用”和“顏值”完美兼容!
- 裝修寶典:為何說企業文化是企業靈魂,是企業生存與發展的根本?
- 南京裝修公司紅牛裝飾工地突擊巡檢:一厘一毫堅守品質,一心一意守護新家!
- 南京裝修避坑指南:裝修材料的選擇,直接影響您入住新家的早晚?
- 南京比較靠譜的裝修公司?南京紅牛裝飾裝修寶典:新房裝修好多久可以入住?關鍵在于……
- 工地巡檢:雙節同慶,品質同行,嚴把每一道工序,用心守護夢想家!
- 避坑指南:老房改造二手舊房翻新注意這幾點,省心又省錢!
- 690億元!2025最后一批“國補”資金已下達!還可疊加企補!至高可省40000元!
- 【9月再添榮譽】業主說紅牛裝飾設計牛!監工牛!預算牛!超滿意!
- 九月秋意漸濃,南京紅牛裝飾工地巡檢步履不停,只為兌現品質承諾!


