| 案例風格 | 歐式風格 | 案例戶型 | 平層 | 案例面積 | 120㎡ |
|---|---|---|---|---|---|
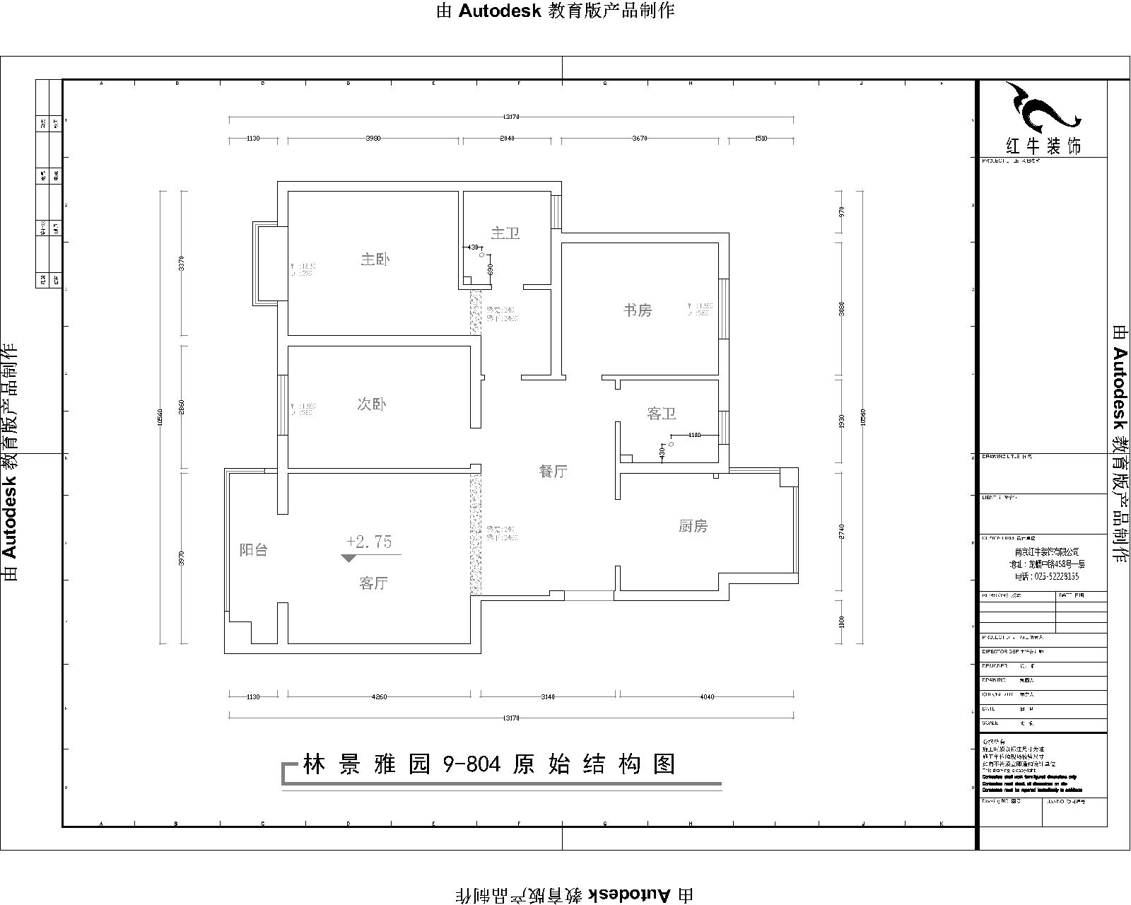
| 樓盤名稱 | 林景雅園 | 設 計 師 | 劉萍萍 | 案例造價 | 18萬 |
設計理念
本案設計的整體風格,定位為輕歐式。
戶型本身的結構比較規整,平面布置在后期做出了合理的規劃,讓空間在布局、使用上更為舒適。
客餐廳色調清雅,休閑、隨性又不失精致,電視背景墻沒有過多的華麗修飾,給空間本身一個開拓、延展性,給居住者一個慵懶、明快的起居環境。主臥次臥,依靠美式家具本身的線條感,搭配同樣風格的裝飾畫,給人以休閑自在的視覺感受。書房是辦公空間,設計者在整面墻留畫,一條小路通向遠方,給了本就不大的空間一個視覺的開放性,心情也自然就舒緩很多。
空間分布上,充分考慮了居住者的感受,也讓往來的親朋能有一個更好、更舒適、更歡快的生活空間。仿佛自己放慢了生活的步伐,也能一路欣賞這生活的美妙旋律 - - 偷得浮生半日閑。



家裝攻略
- 二手房裝修舊房翻新太難了,想要裝修不求人?建議收藏!
- 工地巡檢:步履不停,以行動兌現品質承諾,嚴格把控每一環!
- 避坑指南:裝修坑多、水深?歸根結底五個字:信息不對稱
- 工地巡檢日:標準&品質是底線,專業&用心是態度!
- 好評如潮:曬一波熱乎的客戶評價,親身體驗過才最具有發言權!
- 最好的口碑,莫過于裝修業主的真實評價!
- 南京紅牛裝飾:始終如一,以品質說話,以服務鑄口碑!
- 再好的文案,都抵不過客戶的真實反饋!“三個最”【內附完工實景】
- 工地突擊巡檢|嚴把每一處細節,用心守護每一份安心!
- 南京紅牛裝飾再添榮譽,榮獲兩面錦旗,雙倍肯定,十分滿意!
- 南京115㎡現代簡約風裝修,每一處都將“實用”和“顏值”完美兼容!
- 裝修寶典:為何說企業文化是企業靈魂,是企業生存與發展的根本?
- 南京裝修公司紅牛裝飾工地突擊巡檢:一厘一毫堅守品質,一心一意守護新家!
- 南京裝修避坑指南:裝修材料的選擇,直接影響您入住新家的早晚?
- 南京比較靠譜的裝修公司?南京紅牛裝飾裝修寶典:新房裝修好多久可以入住?關鍵在于……
- 工地巡檢:雙節同慶,品質同行,嚴把每一道工序,用心守護夢想家!
- 避坑指南:老房改造二手舊房翻新注意這幾點,省心又省錢!
- 690億元!2025最后一批“國補”資金已下達!還可疊加企補!至高可省40000元!
- 【9月再添榮譽】業主說紅牛裝飾設計牛!監工牛!預算牛!超滿意!
- 九月秋意漸濃,南京紅牛裝飾工地巡檢步履不停,只為兌現品質承諾!


