| 案例風格 | 現代簡約風格 | 案例戶型 | 平層 | 案例面積 | 100㎡ |
|---|---|---|---|---|---|
| 樓盤名稱 | 大名城 · 紫金九號 | 設 計 師 | 南京紅牛裝飾 | 案例造價 | |

■ 樓盤:大名城·紫金九號
■ 面積:100㎡
■ 設計:后現代奢華
■ 出品:紅牛裝飾
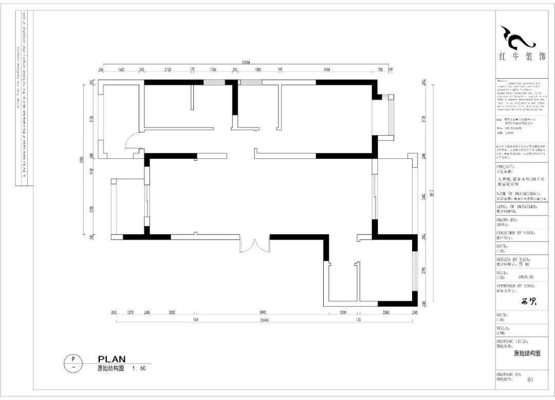
戶型分析

原始戶型功能規劃清晰,三開間朝南,通風采光比較優越,主臥套房設計,帶獨立衛浴。
但有幾處可以進行改造:
1、原開發商留了一個小儲藏間,但是沒有采光,缺乏實用性。
2、靠近北陽臺的那幾組墻體都不是承重墻體,可以在空間格局上進行重組。
3、廚房門的外面有個大的設備平臺,比較浪費,廚房的位置尷尬,餐廳空間也小。
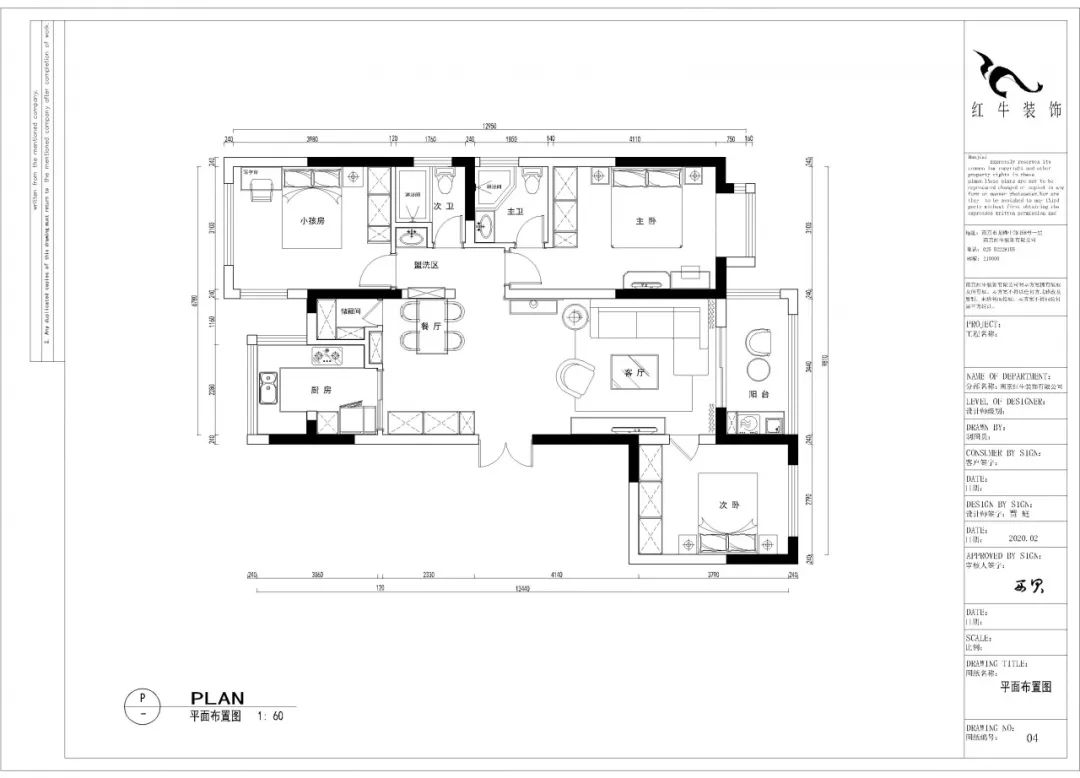
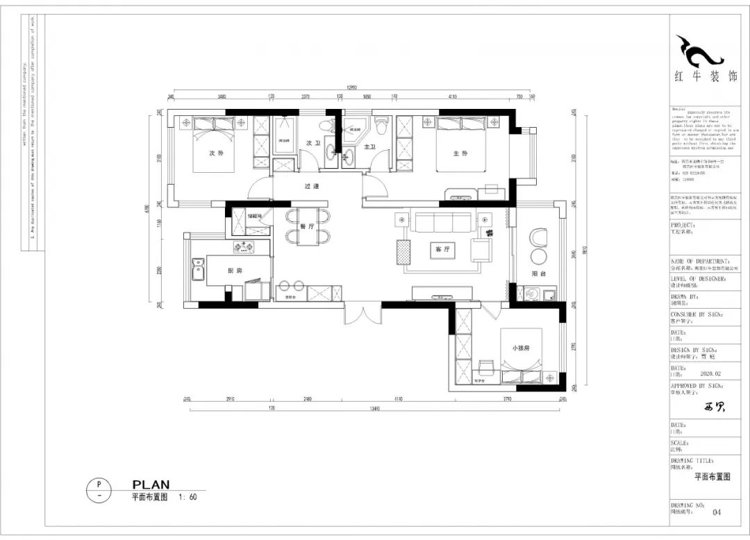
調整建議

方案一:
打通北陽臺,通過空間的重組,使得臥室部分寬敞,衛生間尺寸舒適。
廚房外移之后,采光更好,還可以利用邊角區域設計出實用的儲藏間。
在儲藏間與廚房門之間設計個酒柜,使得餐廳功能更加齊全,很好地滿足生活的需要。
原開發商留下的小儲藏間,可以跟房間連成一體,做一排衣柜,打造更舒適的臥室空間。

方案二:
如果希望家里更簡潔,次衛的干濕分離可以取消,多余的空間做個儲藏柜,對次衛功能進行補充。
餐廳的位置也可以做的更簡潔,取消酒柜,在廚房門前增加個吧臺,使得讓空間更加多樣化。
朝南的次臥,如果需要做小孩房,可以通過家具的布置進行調整。
效果圖欣賞

次臥的門開在電視背景墻上,可以通過隱形門與護墻板對稱的做法,讓電視背景墻變得更完整,臥室的隱私性也更好。

廚房外擴之后,餐廳空間寬裕很多,可以在廚房門口的位置做個吧臺,多個西餐區域。入戶鞋柜可以跟電器組合柜結合在一起,讓空間上變得更加完整。

臥室背景墻用蒂芙尼藍做跳色,帶給臥室與浪漫與溫馨的情調。窗簾灰色與彩色的豎拼,使得室內色彩更加豐富。

次臥室朝北,采光上沒有南邊臥室好,實用采用灰白色的墻布與純白色的床體,使得視覺上顯得更加輕盈。再通過明亮的掛畫以及金色吸頂燈,讓空間不顯單調。

朝南臥室作為小孩房,設計時注重色彩的搭配,大面積的藍色墻布不顯花哨,黃色的吸頂燈加上床頭的吊燈,讓空間多點童趣。
家裝攻略
- 二手房裝修舊房翻新太難了,想要裝修不求人?建議收藏!
- 工地巡檢:步履不停,以行動兌現品質承諾,嚴格把控每一環!
- 避坑指南:裝修坑多、水深?歸根結底五個字:信息不對稱
- 工地巡檢日:標準&品質是底線,專業&用心是態度!
- 好評如潮:曬一波熱乎的客戶評價,親身體驗過才最具有發言權!
- 最好的口碑,莫過于裝修業主的真實評價!
- 南京紅牛裝飾:始終如一,以品質說話,以服務鑄口碑!
- 再好的文案,都抵不過客戶的真實反饋!“三個最”【內附完工實景】
- 工地突擊巡檢|嚴把每一處細節,用心守護每一份安心!
- 南京紅牛裝飾再添榮譽,榮獲兩面錦旗,雙倍肯定,十分滿意!
- 南京115㎡現代簡約風裝修,每一處都將“實用”和“顏值”完美兼容!
- 裝修寶典:為何說企業文化是企業靈魂,是企業生存與發展的根本?
- 南京裝修公司紅牛裝飾工地突擊巡檢:一厘一毫堅守品質,一心一意守護新家!
- 南京裝修避坑指南:裝修材料的選擇,直接影響您入住新家的早晚?
- 南京比較靠譜的裝修公司?南京紅牛裝飾裝修寶典:新房裝修好多久可以入住?關鍵在于……
- 工地巡檢:雙節同慶,品質同行,嚴把每一道工序,用心守護夢想家!
- 避坑指南:老房改造二手舊房翻新注意這幾點,省心又省錢!
- 690億元!2025最后一批“國補”資金已下達!還可疊加企補!至高可省40000元!
- 【9月再添榮譽】業主說紅牛裝飾設計牛!監工牛!預算牛!超滿意!
- 九月秋意漸濃,南京紅牛裝飾工地巡檢步履不停,只為兌現品質承諾!


