| 案例風格 | 輕奢風格 | 案例戶型 | 平層 | 案例面積 | 118㎡ |
|---|---|---|---|---|---|
| 樓盤名稱 | 大名城 · 紫金九號 | 設 計 師 | 魏明花 | 案例造價 | |

■ 樓盤:大名城·紫金九號
■ 面積:118㎡
■ 設計:輕奢風格
■ 出品:紅牛裝飾
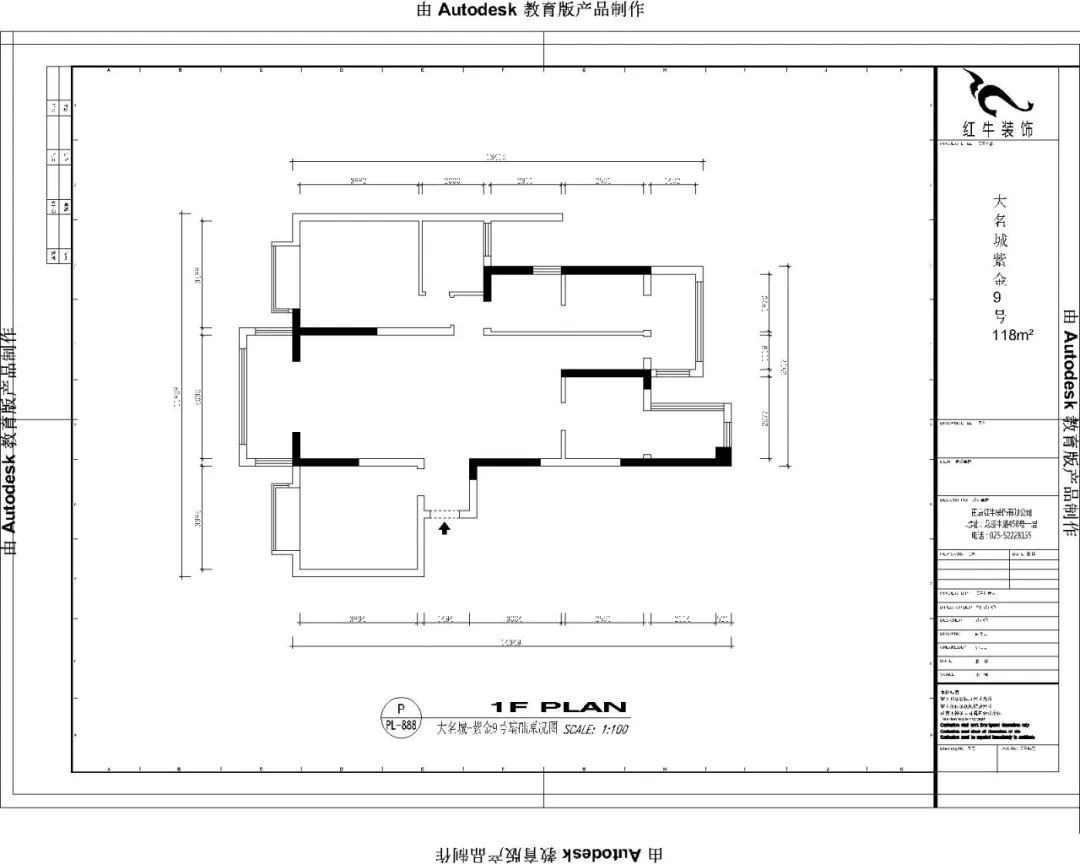
戶型分析

此戶型是三室兩廳兩衛,南北通透,采光極好。
但從整體格局來看,仍然有幾處可以改進:
1、廚房跟陽臺的的關系
2、次臥室和衛生間門口的那堵墻
3、北陽臺的空間規劃問題
4、飄窗的利用率
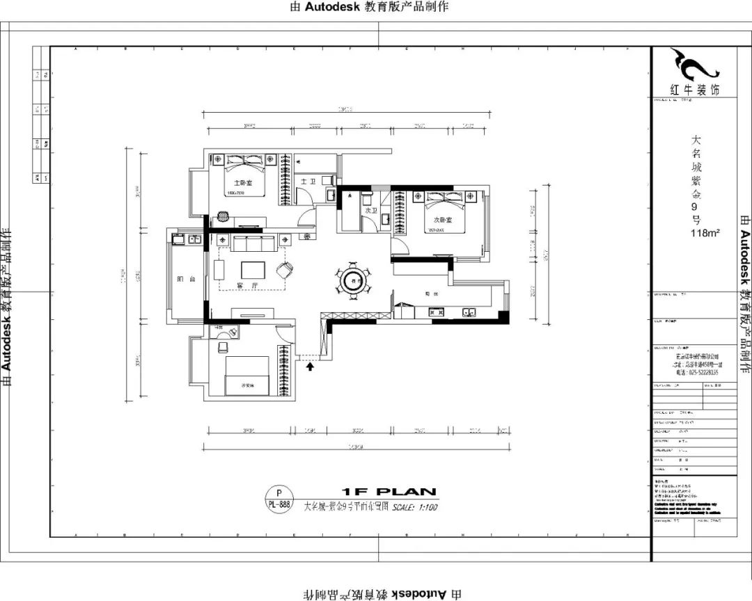
調整建議

方案一:
將廚房和小陽臺的墻徹底打開,合二為一,這樣能夠增加廚房的利用率,而且能夠改善餐廳的采光。
把次臥室和衛生間門口的那堵墻徹底拿掉,次臥的陽臺劃到次臥室,那么次臥室跟衛生間的利用率都會提高很多。
將次衛生間的門改了方向,不再正對著主臥室大門,避開風水上的弊端。
如果此小區飄窗能利用,那么可以拆掉來增加收納空間。

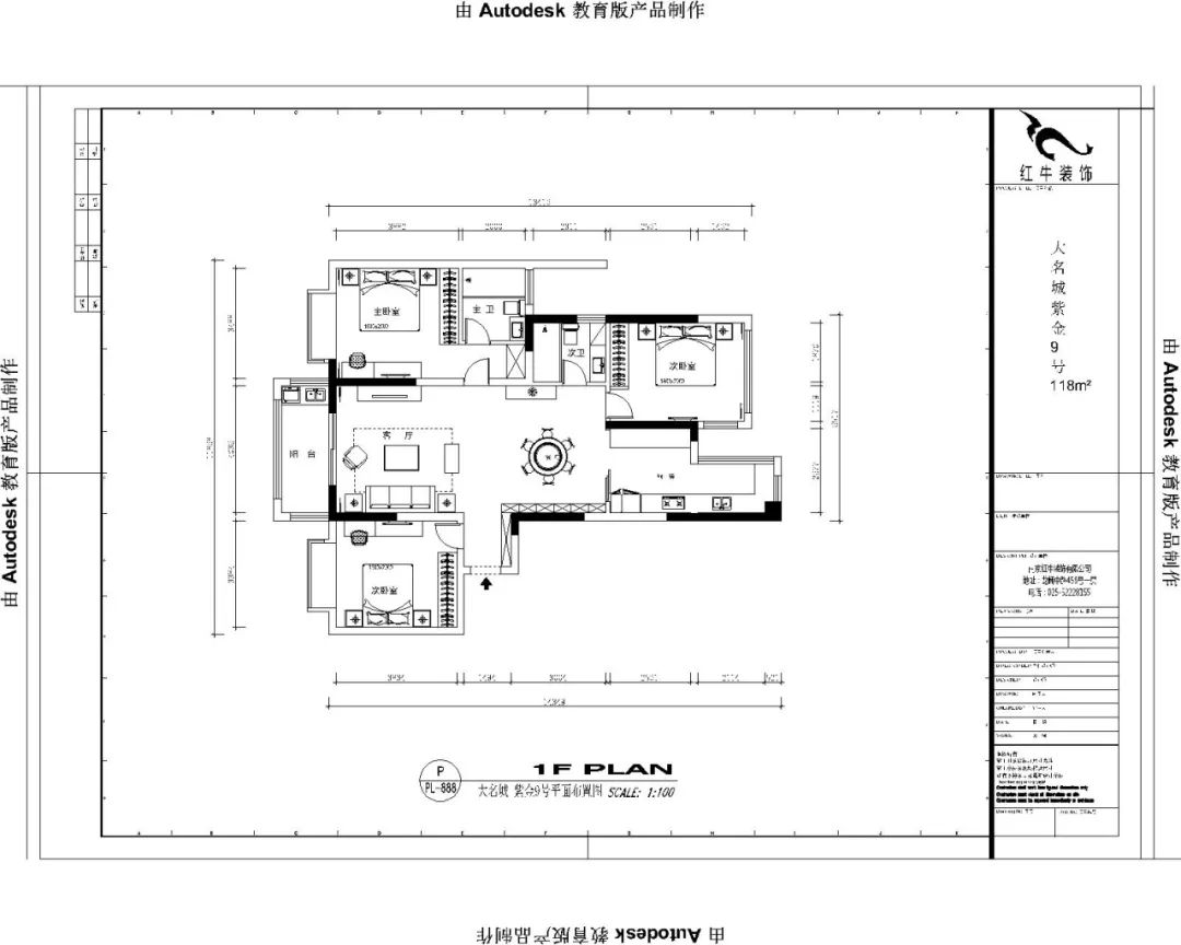
方案二:
方案二主要在主臥室門的位置上做了改動,增加了空間的利用率。
隨之產生了一個弊端,就是主臥室門會對著入戶門,那么可以考慮采用隱形門的設計,將主臥室門跟電視背景合二為一。這樣一來,整個客餐廳就非常規整,沒有任何浪費了。
效果圖欣賞

客廳以白色與藍色為基礎色調,整體風格干凈明快。
電視背景護墻板的凹凸質感,搭配金屬線條,以靈動的光澤塑造了空間感,讓客廳的視覺得到了極好的延伸和拓展。
大幅裝飾畫的點綴,讓客廳在充足的光線下煥發出充沛的朝氣與活力。

玄關與餐廳的連接處,將兩組柜子結合成為一個整體面,這樣既滿足了功能,又使得空間整體有設計感。
在吊頂和餐桌的選擇上,都使用了圓形,顯得空間飽滿豐富。
餐廳空間整體富麗堂皇,明亮璀璨,閃爍的光芒之中蕩漾出優雅與精致。

主臥考慮到是給長輩居住,在色調跟款式上略顯穩重,灰色格紋的墻紙跟歐式的床形成鮮明的對比。
進門衣柜做了局部展示區,無論是功能還是空間的層次,都上了一個檔次。

次臥主要給小孩居住,顏色與格調延續了客餐廳的風格。
背景墻上簡單的石膏線條,搭配時尚的燈具,非常精致美麗。

家裝攻略
- 二手房裝修舊房翻新太難了,想要裝修不求人?建議收藏!
- 工地巡檢:步履不停,以行動兌現品質承諾,嚴格把控每一環!
- 避坑指南:裝修坑多、水深?歸根結底五個字:信息不對稱
- 工地巡檢日:標準&品質是底線,專業&用心是態度!
- 好評如潮:曬一波熱乎的客戶評價,親身體驗過才最具有發言權!
- 最好的口碑,莫過于裝修業主的真實評價!
- 南京紅牛裝飾:始終如一,以品質說話,以服務鑄口碑!
- 再好的文案,都抵不過客戶的真實反饋!“三個最”【內附完工實景】
- 工地突擊巡檢|嚴把每一處細節,用心守護每一份安心!
- 南京紅牛裝飾再添榮譽,榮獲兩面錦旗,雙倍肯定,十分滿意!
- 南京115㎡現代簡約風裝修,每一處都將“實用”和“顏值”完美兼容!
- 裝修寶典:為何說企業文化是企業靈魂,是企業生存與發展的根本?
- 南京裝修公司紅牛裝飾工地突擊巡檢:一厘一毫堅守品質,一心一意守護新家!
- 南京裝修避坑指南:裝修材料的選擇,直接影響您入住新家的早晚?
- 南京比較靠譜的裝修公司?南京紅牛裝飾裝修寶典:新房裝修好多久可以入住?關鍵在于……
- 工地巡檢:雙節同慶,品質同行,嚴把每一道工序,用心守護夢想家!
- 避坑指南:老房改造二手舊房翻新注意這幾點,省心又省錢!
- 690億元!2025最后一批“國補”資金已下達!還可疊加企補!至高可省40000元!
- 【9月再添榮譽】業主說紅牛裝飾設計牛!監工牛!預算牛!超滿意!
- 九月秋意漸濃,南京紅牛裝飾工地巡檢步履不停,只為兌現品質承諾!


