| 案例風格 | 現代簡約風格 | 案例戶型 | 平層 | 案例面積 | 143㎡ |
|---|---|---|---|---|---|
| 樓盤名稱 | 江山匯 | 設 計 師 | 劉曉芳 | 案例造價 | 全包21萬 |
本案設計在跟客戶溝通后整體風格定位為后現代風格
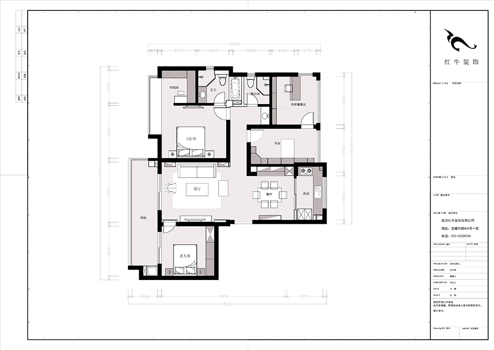
本戶型是四室兩廳兩衛的戶型,目前客戶一個人住,考慮后期結婚,三代人的居住情況。原來結果,餐廳空間比較小,廚房空間略大,經過和客戶的溝通,把餐廳的空間縮小,餐廳空間變大,同時也調整了餐廳后面空間的房間,餐廳增加了餐邊酒柜的位置,后面的房間設計成書房。
主臥室光線充足,180度全景大飄窗,衣帽間的設計,不單要滿足客戶的儲藏空間,還要有梳妝臺的功能。其它整體空間基本合理,以通透性、實用性、舒適性為主要設計思路。客戶喜歡現代風格,但是不喜歡太單調的東西,定位后現代的風格,客廳背景有一個到次臥室的門,設計成了隱形門,電視背景墻形成了一個整體,兩邊是框架線條加上硬包,中間鑲嵌銅條,節約大氣。

家裝攻略
- 二手房裝修舊房翻新太難了,想要裝修不求人?建議收藏!
- 工地巡檢:步履不停,以行動兌現品質承諾,嚴格把控每一環!
- 避坑指南:裝修坑多、水深?歸根結底五個字:信息不對稱
- 工地巡檢日:標準&品質是底線,專業&用心是態度!
- 好評如潮:曬一波熱乎的客戶評價,親身體驗過才最具有發言權!
- 最好的口碑,莫過于裝修業主的真實評價!
- 南京紅牛裝飾:始終如一,以品質說話,以服務鑄口碑!
- 再好的文案,都抵不過客戶的真實反饋!“三個最”【內附完工實景】
- 工地突擊巡檢|嚴把每一處細節,用心守護每一份安心!
- 南京紅牛裝飾再添榮譽,榮獲兩面錦旗,雙倍肯定,十分滿意!
- 南京115㎡現代簡約風裝修,每一處都將“實用”和“顏值”完美兼容!
- 裝修寶典:為何說企業文化是企業靈魂,是企業生存與發展的根本?
- 南京裝修公司紅牛裝飾工地突擊巡檢:一厘一毫堅守品質,一心一意守護新家!
- 南京裝修避坑指南:裝修材料的選擇,直接影響您入住新家的早晚?
- 南京比較靠譜的裝修公司?南京紅牛裝飾裝修寶典:新房裝修好多久可以入住?關鍵在于……
- 工地巡檢:雙節同慶,品質同行,嚴把每一道工序,用心守護夢想家!
- 避坑指南:老房改造二手舊房翻新注意這幾點,省心又省錢!
- 690億元!2025最后一批“國補”資金已下達!還可疊加企補!至高可省40000元!
- 【9月再添榮譽】業主說紅牛裝飾設計牛!監工牛!預算牛!超滿意!
- 九月秋意漸濃,南京紅牛裝飾工地巡檢步履不停,只為兌現品質承諾!


