| 案例風格 | 現代簡約風格 | 案例戶型 | 平層 | 案例面積 | 100㎡ |
|---|---|---|---|---|---|
| 樓盤名稱 | 中垠紫金官邸 | 設 計 師 | 吳波 | 案例造價 | |

■ 樓盤:中垠紫金官邸
■ 面積:100㎡
■ 設計:現代簡約
■ 出品:紅牛裝飾
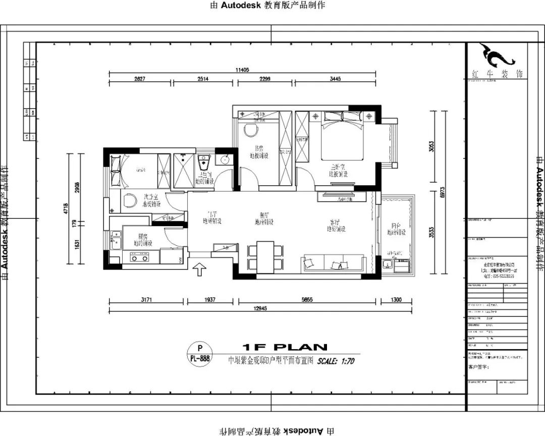
戶型分析

本戶型三房兩廳,南北通透,功能規劃比較合理。
但有一些小缺點可以改進:比如廚房比較小,使用不方便。還有客廳門太多,導致客廳背景墻不完整。
調整建議

現在年輕人都喜歡雙門冰箱,但是此戶型放入雙門冰箱后,廚房的整個操作臺會變得太短。
建議把廚房的墻體往次臥室移動20公分,擴大了廚房空間,增加操作臺的長度。而次臥室也可以利用這個深度做一排書柜,一舉兩得。
把次臥室的門外移,進門正對處掛上裝飾畫,視覺效果更好,也獨立了門廳,讓客餐廳顯得比較規整。
客廳房門比較多,電視背景墻太短,建議把門改成隱形門,使得客廳的整體空間開闊敞亮。
主臥室寬度不太夠,可以打掉飄窗,利用這塊位置,增加主臥室的空間。
書房可以設計成書房兼衣帽間,若是二胎之家,那也可以把它設計成兒童房,這個根據客戶需求而設計。
效果圖欣賞
本案例是現代簡約風格,以淺灰色色調+木色為主,搭配一些復古的元素和銅質金屬來打造出輕奢感,讓人感覺更加年輕大氣。

布質的沙發加上富有線條感的邊幾,大幅的裝飾畫,充滿藝術感。電視背景墻連貫的木色上面點綴了金屬條,柔硬有度。吊頂的高低疊級,宛如有節奏的音符。

餐廳和客廳連成一體,餐廳中木色的餐桌搭配拼色的椅子,多變的色彩,能打破木質的沉悶,金屬的燈飾也極具個性。

臥室的背景選擇了灰色調,體現了主人沉穩內斂的個性,綠色窗簾和木色衣柜顯得活潑,讓空間更加協調舒適。

榻榻米因為其多元化的功能而被大家喜歡,轉角書柜的設計體現了空間的高利用率。

家裝攻略
- 避坑指南:裝修坑多、水深?歸根結底五個字:信息不對稱
- 工地巡檢日:標準&品質是底線,專業&用心是態度!
- 好評如潮:曬一波熱乎的客戶評價,親身體驗過才最具有發言權!
- 最好的口碑,莫過于裝修業主的真實評價!
- 南京紅牛裝飾:始終如一,以品質說話,以服務鑄口碑!
- 再好的文案,都抵不過客戶的真實反饋!“三個最”【內附完工實景】
- 工地突擊巡檢|嚴把每一處細節,用心守護每一份安心!
- 南京紅牛裝飾再添榮譽,榮獲兩面錦旗,雙倍肯定,十分滿意!
- 南京115㎡現代簡約風裝修,每一處都將“實用”和“顏值”完美兼容!
- 裝修寶典:為何說企業文化是企業靈魂,是企業生存與發展的根本?
- 南京裝修公司紅牛裝飾工地突擊巡檢:一厘一毫堅守品質,一心一意守護新家!
- 南京裝修避坑指南:裝修材料的選擇,直接影響您入住新家的早晚?
- 南京比較靠譜的裝修公司?南京紅牛裝飾裝修寶典:新房裝修好多久可以入???關鍵在于……
- 工地巡檢:雙節同慶,品質同行,嚴把每一道工序,用心守護夢想家!
- 避坑指南:老房改造二手舊房翻新注意這幾點,省心又省錢!
- 690億元!2025最后一批“國補”資金已下達!還可疊加企補!至高可省40000元!
- 【9月再添榮譽】業主說紅牛裝飾設計牛!監工牛!預算牛!超滿意!
- 九月秋意漸濃,南京紅牛裝飾工地巡檢步履不停,只為兌現品質承諾!
- “金九銀十”裝修黃金期,南京電視臺攜手紅牛裝飾發福利啦~
- 金秋暖心禮|一面錦旗,一句好評,一份信賴!


