| 案例風格 | 輕奢風格 | 案例戶型 | 平層 | 案例面積 | 137㎡ |
|---|---|---|---|---|---|
| 樓盤名稱 | 中垠紫金官邸 | 設 計 師 | 顧娟 | 案例造價 | |

■ 樓盤:中垠紫金官邸
■ 面積:137㎡
■ 設計:輕奢風格
■ 出品:紅牛裝飾
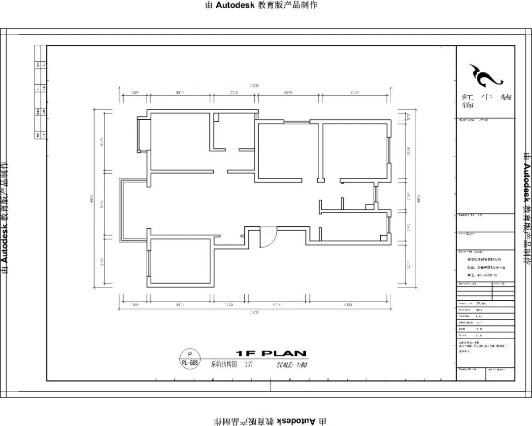
戶型分析

此戶型為四室二廳二衛,兩臥室和客廳并排朝南,通風采光良好。
但有一些問題需要解決:門廳和餐廳混為一體,客餐廳之間的空間過于浪費,廚房顯得太長,主臥有點偏小。
調整建議

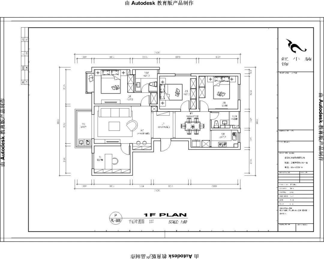
條件允許的話,衛生間墻往空調外機位擴寬,同時把餐廳延伸至原始的干區,相對應的,就能擁有一個獨立的門廳,解決了進門見餐廳的尷尬。
這樣的話,整體上形成了客廳、餐廳、門廳三個獨立的區域。
由于主臥空間相對較小,通過改動衛生間墻體擴寬主臥的大小。另外,在主臥門后添加一組備用柜,滿足業主對儲藏空間的追求。
廚房墻體后移之后,冰箱和高柜放置于油煙區外,日常使用不受影響,還更有利于日常的清潔。
效果圖欣賞
本案例是現代輕奢風格,采用淺色調和金屬元素點綴,營造時尚氛圍,整個空間簡單又舒適。

電視背景墻邊柜沒有按照整體柜來處理,而是設計成休閑吧臺,一是讓整個背景不至于過長,二是增加了空間的靈動感。

為了客廳在整個空間里視覺效果更好,整體比例更合理,把背景上的門設計成隱形門,讓客廳空間更有品質和設計感。

白色大理石的餐桌搭配藍色的椅子,經過精致的布局,顯得優雅浪漫。

灰色調背景搭配藍色調軟飾,簡單大方的床品,體現了主人沉穩內斂的個性,雙層窗簾讓空間協調舒適。

家裝攻略
- 二手房裝修舊房翻新太難了,想要裝修不求人?建議收藏!
- 工地巡檢:步履不停,以行動兌現品質承諾,嚴格把控每一環!
- 避坑指南:裝修坑多、水深?歸根結底五個字:信息不對稱
- 工地巡檢日:標準&品質是底線,專業&用心是態度!
- 好評如潮:曬一波熱乎的客戶評價,親身體驗過才最具有發言權!
- 最好的口碑,莫過于裝修業主的真實評價!
- 南京紅牛裝飾:始終如一,以品質說話,以服務鑄口碑!
- 再好的文案,都抵不過客戶的真實反饋!“三個最”【內附完工實景】
- 工地突擊巡檢|嚴把每一處細節,用心守護每一份安心!
- 南京紅牛裝飾再添榮譽,榮獲兩面錦旗,雙倍肯定,十分滿意!
- 南京115㎡現代簡約風裝修,每一處都將“實用”和“顏值”完美兼容!
- 裝修寶典:為何說企業文化是企業靈魂,是企業生存與發展的根本?
- 南京裝修公司紅牛裝飾工地突擊巡檢:一厘一毫堅守品質,一心一意守護新家!
- 南京裝修避坑指南:裝修材料的選擇,直接影響您入住新家的早晚?
- 南京比較靠譜的裝修公司?南京紅牛裝飾裝修寶典:新房裝修好多久可以入住?關鍵在于……
- 工地巡檢:雙節同慶,品質同行,嚴把每一道工序,用心守護夢想家!
- 避坑指南:老房改造二手舊房翻新注意這幾點,省心又省錢!
- 690億元!2025最后一批“國補”資金已下達!還可疊加企補!至高可省40000元!
- 【9月再添榮譽】業主說紅牛裝飾設計牛!監工牛!預算牛!超滿意!
- 九月秋意漸濃,南京紅牛裝飾工地巡檢步履不停,只為兌現品質承諾!


