| 案例風格 | 現代簡約風格 | 案例戶型 | 平層 | 案例面積 | 75㎡ |
|---|---|---|---|---|---|
| 樓盤名稱 | 景明佳苑 | 設 計 師 | 南京紅牛裝飾 | 案例造價 | 全包13萬 |
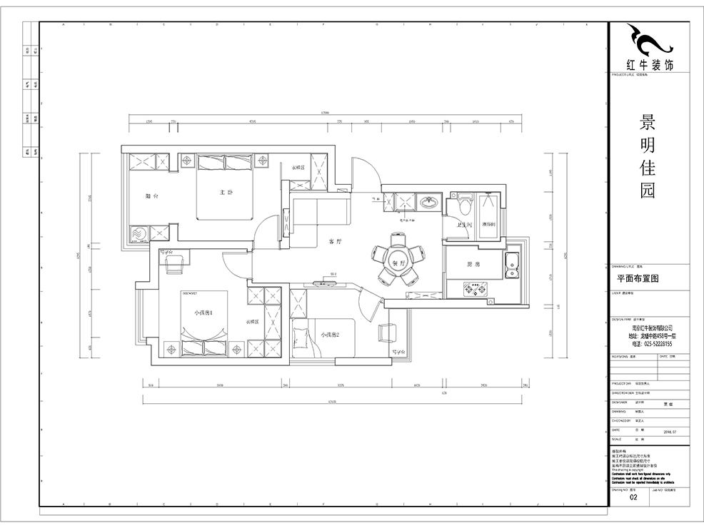
本案面積75㎡,現代簡約風格。設計理念,在繁忙的都市生活里有一塊屬于自己的天地,沒有煩惱,充滿家的氣息,簡約而不簡單。墻面灰色的墻布,讓空間更加干凈,利用燈光的效果,讓空間更加明亮,即使是在一樓,回到家里,家里也會很亮場。客戶希望儲藏空間更加的豐富,利用邊角,讓女兒房多了個衣帽間。通過改臥室門的方式,主臥也有了衣帽間。廚房選擇外擴,這樣餐廳的空間可以更寬敞寫,原有的下水管道可以包起來,做個酒柜的設計。做干濕分離,讓衛生間更加的實用方便,讓生活居家更加的井然有序。
景明佳苑75㎡現代簡約 | 看小戶型如何擠出3間臥室

■ 樓盤名稱:景明佳苑
■ 設計風格:現代簡約
■ 建筑面積:75㎡
//////////

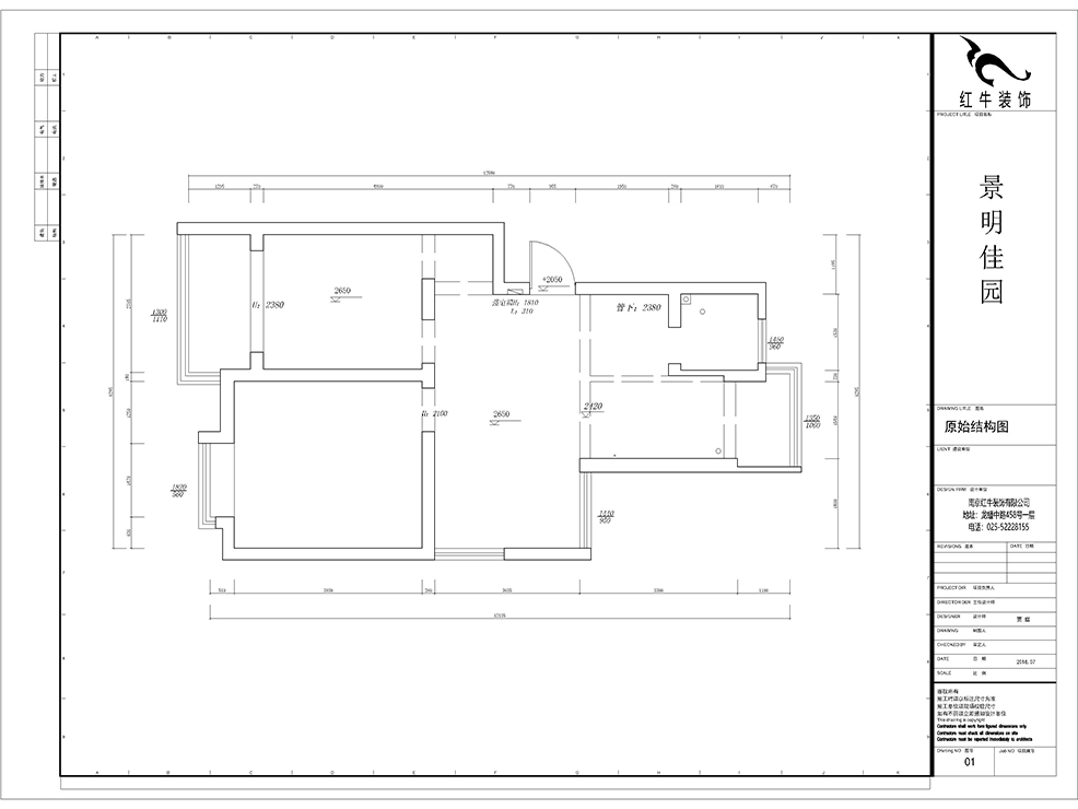
▲原始戶型圖

▲平面布置圖
客戶希望儲藏空間更加豐富,所以利用邊角位置,在主臥和女兒房都打造了衣帽間。
廚房外擴至與衛生間齊平,外面是餐廳圓桌,空間上還是比較寬敞舒適的。
隔出一部分空間另外打造了一間臥室,斜面開門位置的設計恰到好處,在不影響臥室大小的情況下,使得餐廳空間更加開闊。
//////////


在客廳的背景墻和沙發旁邊的墻上都掏了壁龕出來,它不占建筑面積,美觀的同時還能用來收納,并且在視覺上起到延伸作用,讓空間看起來寬敞開闊。


進門左手邊,玄關柜、冰箱、洗手臺依次排開,甚至于冰箱上面設計了頂柜,洗手臺的鏡子部分用鏡柜來代替,使得空間利用最大化。


圓形餐桌加上轉盤,再也不用擔心夾菜不方便了。考慮到廚房凸出的墻體,專門選擇了窄型的隔板架靠墻擺放,收納的東西一目了然,方便取用。



除了隔出的房間以外,主臥和女兒房都還算比較寬敞,淡雅樸實的整體裝飾營造出輕松的休息氛圍,柔和的床體讓業主享受到最舒適的睡眠體驗。

家裝攻略
- 二手房裝修舊房翻新太難了,想要裝修不求人?建議收藏!
- 工地巡檢:步履不停,以行動兌現品質承諾,嚴格把控每一環!
- 避坑指南:裝修坑多、水深?歸根結底五個字:信息不對稱
- 工地巡檢日:標準&品質是底線,專業&用心是態度!
- 好評如潮:曬一波熱乎的客戶評價,親身體驗過才最具有發言權!
- 最好的口碑,莫過于裝修業主的真實評價!
- 南京紅牛裝飾:始終如一,以品質說話,以服務鑄口碑!
- 再好的文案,都抵不過客戶的真實反饋!“三個最”【內附完工實景】
- 工地突擊巡檢|嚴把每一處細節,用心守護每一份安心!
- 南京紅牛裝飾再添榮譽,榮獲兩面錦旗,雙倍肯定,十分滿意!
- 南京115㎡現代簡約風裝修,每一處都將“實用”和“顏值”完美兼容!
- 裝修寶典:為何說企業文化是企業靈魂,是企業生存與發展的根本?
- 南京裝修公司紅牛裝飾工地突擊巡檢:一厘一毫堅守品質,一心一意守護新家!
- 南京裝修避坑指南:裝修材料的選擇,直接影響您入住新家的早晚?
- 南京比較靠譜的裝修公司?南京紅牛裝飾裝修寶典:新房裝修好多久可以入住?關鍵在于……
- 工地巡檢:雙節同慶,品質同行,嚴把每一道工序,用心守護夢想家!
- 避坑指南:老房改造二手舊房翻新注意這幾點,省心又省錢!
- 690億元!2025最后一批“國補”資金已下達!還可疊加企補!至高可省40000元!
- 【9月再添榮譽】業主說紅牛裝飾設計牛!監工牛!預算牛!超滿意!
- 九月秋意漸濃,南京紅牛裝飾工地巡檢步履不停,只為兌現品質承諾!


