| 案例風格 | 現代簡約風格 | 案例戶型 | 平層 | 案例面積 | 108㎡ |
|---|---|---|---|---|---|
| 樓盤名稱 | 明月港灣 | 設 計 師 | 劉萍萍 | 案例造價 | 全包14.5萬 |
明月港灣108㎡簡約風格 | 新婚夫婦的溫馨小窩
本案是裝修好作為婚房使用,墻面以暖灰色為主,和木色相結合,再通過軟裝家具的整體搭配,建造出一個舒適溫馨的小家。

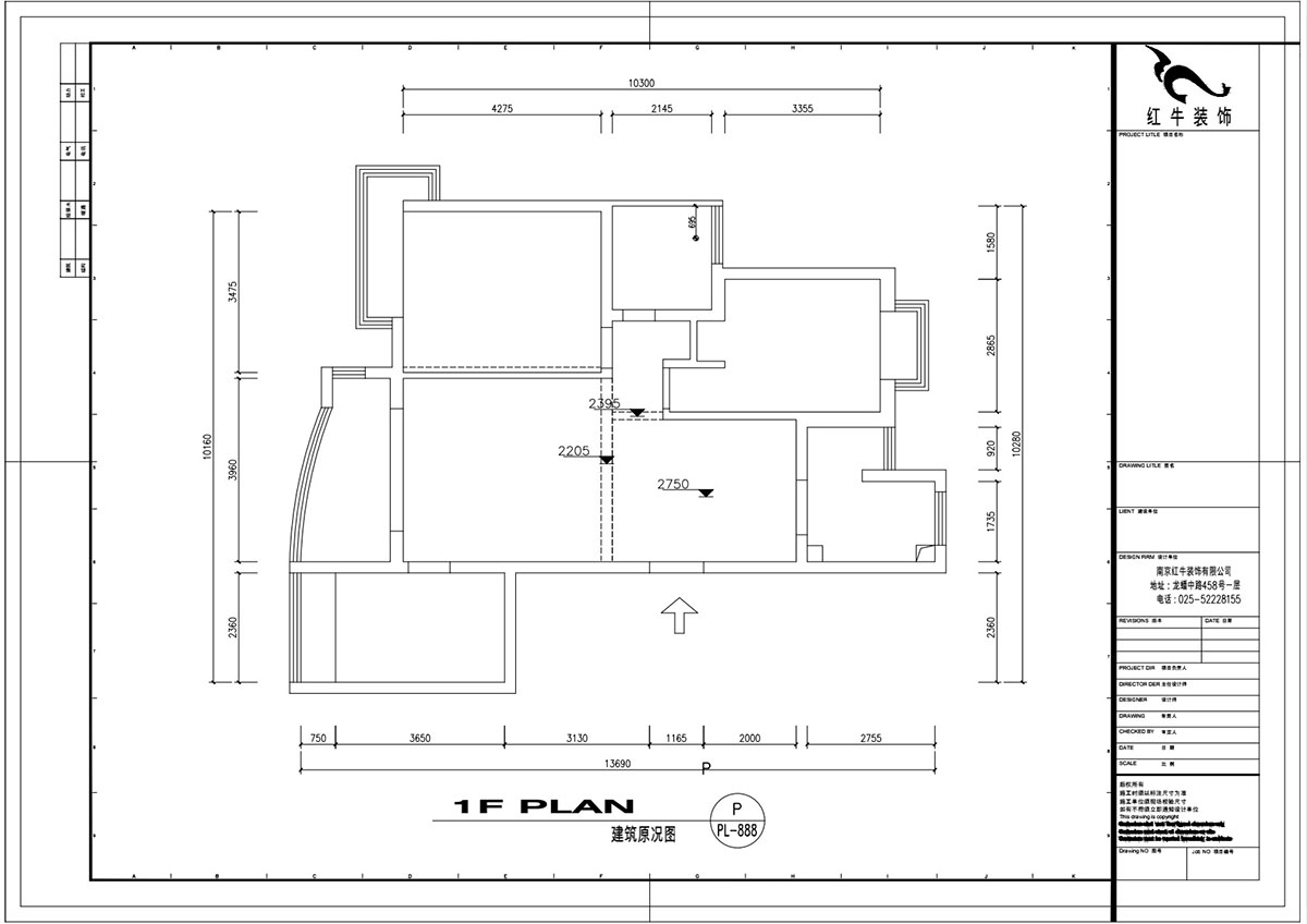
設計改動前:
◆ 進戶沒有鞋柜的空間。
◆ 廚房異形,導致利用率不高。
◆ 臥室前過道比較窄,顯得小氣。

設計改動后:
◆ 利用進門右手邊墻體的空間,做了一個整體鞋柜。
◆ 拆除多余的墻體,提高廚房利用率,而且行動更加方便。
◆ 利用北邊房間的部分空間來拓展過道,更顯舒適大氣。


L型沙發一體式布置,轉角位置方便業主長時間“葛優躺”在沙發上,再愜意不過了。


如果沒推開房門,你可能不會發現墻的后面別有洞天,房門與木飾面融為一體,保持電視墻的完整性。



生活陽臺被設計成一個獨立的家務區域,包括了洗衣、晾曬、清潔和收納家務工具等諸多功能。


餐廳延續了客廳的風格,餐桌椅也選擇了相近的樣式,使本就處于同一空間的客餐廳更具有整體性。


既是玄關柜又是餐邊柜,上下柜的設計,開放式與封閉式的結合,美觀又實用。


沉穩優雅的實木床傳達出寧靜舒緩的態度,能夠在疲憊的夜晚伴我們入眠,再加上灰色通頂衣柜,很好地詮釋了質感與調性兼具的臥室空間。

灰色浴室簡潔而有質感,圓弧淋浴間的布局之下,空間更顯寬敞開闊。

家裝攻略
- 二手房裝修舊房翻新太難了,想要裝修不求人?建議收藏!
- 工地巡檢:步履不停,以行動兌現品質承諾,嚴格把控每一環!
- 避坑指南:裝修坑多、水深?歸根結底五個字:信息不對稱
- 工地巡檢日:標準&品質是底線,專業&用心是態度!
- 好評如潮:曬一波熱乎的客戶評價,親身體驗過才最具有發言權!
- 最好的口碑,莫過于裝修業主的真實評價!
- 南京紅牛裝飾:始終如一,以品質說話,以服務鑄口碑!
- 再好的文案,都抵不過客戶的真實反饋!“三個最”【內附完工實景】
- 工地突擊巡檢|嚴把每一處細節,用心守護每一份安心!
- 南京紅牛裝飾再添榮譽,榮獲兩面錦旗,雙倍肯定,十分滿意!
- 南京115㎡現代簡約風裝修,每一處都將“實用”和“顏值”完美兼容!
- 裝修寶典:為何說企業文化是企業靈魂,是企業生存與發展的根本?
- 南京裝修公司紅牛裝飾工地突擊巡檢:一厘一毫堅守品質,一心一意守護新家!
- 南京裝修避坑指南:裝修材料的選擇,直接影響您入住新家的早晚?
- 南京比較靠譜的裝修公司?南京紅牛裝飾裝修寶典:新房裝修好多久可以入住?關鍵在于……
- 工地巡檢:雙節同慶,品質同行,嚴把每一道工序,用心守護夢想家!
- 避坑指南:老房改造二手舊房翻新注意這幾點,省心又省錢!
- 690億元!2025最后一批“國補”資金已下達!還可疊加企補!至高可省40000元!
- 【9月再添榮譽】業主說紅牛裝飾設計牛!監工牛!預算牛!超滿意!
- 九月秋意漸濃,南京紅牛裝飾工地巡檢步履不停,只為兌現品質承諾!


