| 案例風格 | 現代簡約風格 | 案例戶型 | 平層 | 案例面積 | 82㎡ |
|---|---|---|---|---|---|
| 樓盤名稱 | 津橋華府 | 設 計 師 | 魏利利 | 案例造價 | 全包13萬 |
設計說明
設計戶型:82㎡|3室2廳1衛
裝修類型:二手房裝修
裝修方式:全包裝修
設計費服務費(元):3000
施工費(元):6.5萬
主材、輔材的材料費總和(元):6.5萬
費用總和(元):13萬
主材品牌:L&D瓷磚、李洋地板、李洋木門、開來櫥柜、法恩莎衛浴、奧普吊頂
開工日期:2020年11月04日
竣工日期:2021年02月04日
項目經理:王家桂
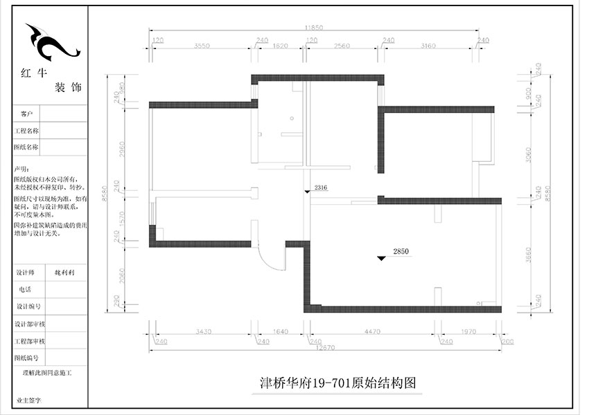
改造前建筑缺陷:
進門拆墻,凹進去做鞋柜,嵌入強電箱,主臥室尺度太小,衣帽位置沒有位置,小房間改為衣帽間
方案設計說明:
本案設計在跟客戶溝通后整體風格定位為現在簡約風格
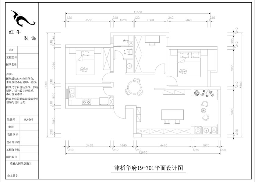
本戶型是三室兩廳一衛的戶型,小夫妻居住。
整體風格簡約,白色和木紋色營造出溫馨的生活氣息,小夫妻倆平時最大的愛好就是看書,所以客廳摒棄傳統的沙發背景墻的設計,直接設計成了休閑書吧。空間得到最大利用。




津橋華府82㎡現代簡約 | 顛覆傳統客廳,既是休閑書吧又是影院

■ 樓盤名稱:津橋華府
■ 設計風格:現代簡約
■ 建筑面積:82㎡
本案是三室兩廳一衛的戶型,小夫妻居住,整體為簡約風格,白色和木紋的搭配營造出溫馨的生活氣息。

進門拆墻,凹進去的部分設計成鞋柜;
主臥室尺寸太小,沒有位置放衣柜,所以把小房間改為衣帽間;
客廳被設計成了休閑書吧,使得空間得到最大利用。



小夫妻倆平時最大的愛好就是看書,所以沒有像傳統客廳那樣設計,而是改造成休閑書吧,柜子加上適當的開放式收納占滿了整面墻,實用又看好。雙人位書桌,既能一起工作,累了還能一起看電影,面積較大的投影幕布看起來更加舒服。

陽臺實用性和休閑性兼具,一側用于洗衣和收納,一側搭配了各式各樣的綠植,讓家變得更加清新有活力。中間還配備小茶幾和躺椅,悠閑的午后,在這里曬曬太陽是不錯的選擇。

圓桌更加親密浪漫,用餐人可以同時看見其余所有的人,交流更加方便。墻面上裝飾的隔板架,增加了整體區域的設計感。

長方形的廚房設計成L型,底部的櫥柜加上方的吊柜,滿足收納需求。窗戶下方做水槽,水槽和灶臺的中間作為操作臺,洗切炒的動線非常流暢。


主臥布置方面遵循了對稱的原則,為房屋主人營造一個平衡的氛圍,處于臥室中央的大床看起來就非常柔軟舒適,有助于睡眠。次臥選擇了相似的家具,風格具有延續性。

小房間被改造成衣帽間,大面積的定制衣櫥,還有化妝臺,梳妝換衣全部能在這個房間里面搞定。墻面上還專門設置了一些掛衣鉤,以便掛隔夜衣,非常貼心。

淋浴區用玻璃隔絕水汽,干濕分離。豎條玻璃在視覺上有拉高層高的效果,是一種簡約干練的美學表達。

家裝攻略
- 二手房裝修舊房翻新太難了,想要裝修不求人?建議收藏!
- 工地巡檢:步履不停,以行動兌現品質承諾,嚴格把控每一環!
- 避坑指南:裝修坑多、水深?歸根結底五個字:信息不對稱
- 工地巡檢日:標準&品質是底線,專業&用心是態度!
- 好評如潮:曬一波熱乎的客戶評價,親身體驗過才最具有發言權!
- 最好的口碑,莫過于裝修業主的真實評價!
- 南京紅牛裝飾:始終如一,以品質說話,以服務鑄口碑!
- 再好的文案,都抵不過客戶的真實反饋!“三個最”【內附完工實景】
- 工地突擊巡檢|嚴把每一處細節,用心守護每一份安心!
- 南京紅牛裝飾再添榮譽,榮獲兩面錦旗,雙倍肯定,十分滿意!
- 南京115㎡現代簡約風裝修,每一處都將“實用”和“顏值”完美兼容!
- 裝修寶典:為何說企業文化是企業靈魂,是企業生存與發展的根本?
- 南京裝修公司紅牛裝飾工地突擊巡檢:一厘一毫堅守品質,一心一意守護新家!
- 南京裝修避坑指南:裝修材料的選擇,直接影響您入住新家的早晚?
- 南京比較靠譜的裝修公司?南京紅牛裝飾裝修寶典:新房裝修好多久可以入住?關鍵在于……
- 工地巡檢:雙節同慶,品質同行,嚴把每一道工序,用心守護夢想家!
- 避坑指南:老房改造二手舊房翻新注意這幾點,省心又省錢!
- 690億元!2025最后一批“國補”資金已下達!還可疊加企補!至高可省40000元!
- 【9月再添榮譽】業主說紅牛裝飾設計牛!監工牛!預算牛!超滿意!
- 九月秋意漸濃,南京紅牛裝飾工地巡檢步履不停,只為兌現品質承諾!


