| 案例風格 | 現代簡約風格 | 案例戶型 | 平層 | 案例面積 | 115㎡ |
|---|---|---|---|---|---|
| 樓盤名稱 | 東城水岸 | 設 計 師 | 顧娟 | 案例造價 | 全包17萬 |
設計說明
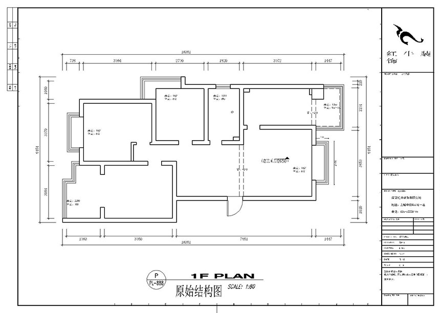
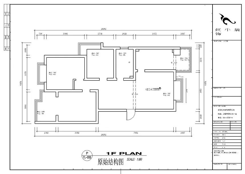
設計戶型:115㎡|3室2廳1衛
裝修類型:舊房裝修
裝修方式:全包裝修
設計費服務費(元):9200
施工費(元):8萬
主材、輔材的材料費總和(元):9萬
費用總和(元):17萬
主材品牌:L&D瓷磚、圣象地板、金豪森木門、開來櫥柜、法恩莎潔具、奧普吊頂
開工日期:2020年10月07日
竣工日期:2021年01月31日
項目經理:陳廣宵
平面案例設計說明:
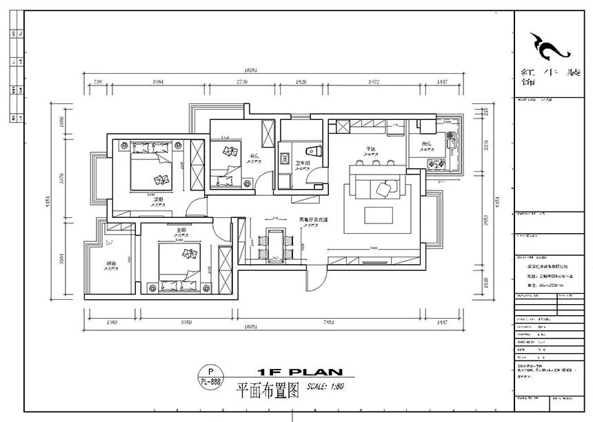
這套115平米的房子,房型整體比較規整,主要改動在廚房區域,廚房做了中西廚的分開與客廳沙發墻形成一個整體,打造輕松舒適的現代風居家環境。
方案設計說明:
本案以輕松愉悅的現代風設計感與溫馨家的氛圍為出發點,總體布局上方面盡量滿足業主生活的需求,主要裝修材料以胡桃木,壁紙為主,以胡桃木的優美含蓄,壁紙的樸素大方來裝飾墻面的景點。更體現現代簡約的之感。創造一個溫馨,健康的家庭環境。
在功能方面,客廳是主人品味的象征,體現了主人品格,地位,電視背景墻采用柜體做造型,既簡單又大方,還可以為家里添加更多的儲藏空間,配上頂部照下來的燈光,整個電視背景墻把客廳提升起來。餐廳是家居生活的心臟,不僅要美觀,更重要的實用性,整體性。餐廳的燈光很重要既不能太強又不能太弱,燈光則以溫馨和暖的黃色為基調,頂部做了簡單的吊頂。墻面貼了壁紙,在餐邊做了一組裝飾柜,可以擺放一些飾品,可以增加以下餐廳的情調。




沙發不要靠墻,這樣設計才夠別致!

■ 樓盤名稱:東城水岸
■ 設計風格:現代風格
■ 建筑面積:115㎡


改動衛生間的開門位置,使得打開大門就能看到非常美麗的玄關效果。
廚房區域進行大改,中西廚兼具,西廚的吧臺作為沙發墻與客廳形成一個整體。
縮短臥室門口的過道區域,留給臥室更大的面積。

沙發雖然不像通常那樣靠墻擺放,但也是滿滿的安全感,加上大面積地毯的鋪設,沙發區域具有整體性。

電視背景墻選用柜體做造型,簡潔大方,玄關也能更好地整合進去,避免背景墻太短顯得小氣。

想要制作油煙較大的中式菜肴,可以關上玻璃推拉門,在里面的小廚房進行制作。

西廚部分的柜體與客廳背景墻的柜體選擇了同樣的材質,產生了遙相呼應的效果,使得居家空間更具有整體性。

接近正方形的廚房空間里,設計了U型櫥柜,保證充足的活動空間。窗戶下方做水槽,水槽和灶臺的中間作為操作臺,洗切炒的動線非常流暢。

餐邊柜上安裝了透明的玻璃柜門,像是給內部的裝飾品加上了一層濾鏡,顯得非常精致美觀,增加了餐廳的情調。

主臥布置方面遵循了對稱的原則,為房屋主人營造一個平衡的氛圍,處于臥室中央的大床看起來就非常柔軟舒適,有助于睡眠。


次臥的陽臺被打造成書房,搭配百葉窗,可以很好地調節光線,創造出舒適的學習環境。

面積緊湊的小臥室作為客房使用,床靠墻擺放,留出足夠的通道和活動空間,然后在床頭多余的位置塞下一個床頭柜,動線比較合理。


洗衣機放在門口,離淋浴區最遠,而且做好了干濕分區,避免水汽造成安全隱患。每天洗澡之前,可以直接脫下衣服直接扔到洗衣機里面,非常方便。

家裝攻略
- 二手房裝修舊房翻新太難了,想要裝修不求人?建議收藏!
- 工地巡檢:步履不停,以行動兌現品質承諾,嚴格把控每一環!
- 避坑指南:裝修坑多、水深?歸根結底五個字:信息不對稱
- 工地巡檢日:標準&品質是底線,專業&用心是態度!
- 好評如潮:曬一波熱乎的客戶評價,親身體驗過才最具有發言權!
- 最好的口碑,莫過于裝修業主的真實評價!
- 南京紅牛裝飾:始終如一,以品質說話,以服務鑄口碑!
- 再好的文案,都抵不過客戶的真實反饋!“三個最”【內附完工實景】
- 工地突擊巡檢|嚴把每一處細節,用心守護每一份安心!
- 南京紅牛裝飾再添榮譽,榮獲兩面錦旗,雙倍肯定,十分滿意!
- 南京115㎡現代簡約風裝修,每一處都將“實用”和“顏值”完美兼容!
- 裝修寶典:為何說企業文化是企業靈魂,是企業生存與發展的根本?
- 南京裝修公司紅牛裝飾工地突擊巡檢:一厘一毫堅守品質,一心一意守護新家!
- 南京裝修避坑指南:裝修材料的選擇,直接影響您入住新家的早晚?
- 南京比較靠譜的裝修公司?南京紅牛裝飾裝修寶典:新房裝修好多久可以入住?關鍵在于……
- 工地巡檢:雙節同慶,品質同行,嚴把每一道工序,用心守護夢想家!
- 避坑指南:老房改造二手舊房翻新注意這幾點,省心又省錢!
- 690億元!2025最后一批“國補”資金已下達!還可疊加企補!至高可省40000元!
- 【9月再添榮譽】業主說紅牛裝飾設計牛!監工牛!預算牛!超滿意!
- 九月秋意漸濃,南京紅牛裝飾工地巡檢步履不停,只為兌現品質承諾!


