| 案例風格 | 現代簡約風格 | 案例戶型 | 平層 | 案例面積 | 84.18㎡ |
|---|---|---|---|---|---|
| 樓盤名稱 | 校門口1號小區 | 設 計 師 | 蔣琛 | 案例造價 | 成品家|全包13萬 |
設計說明
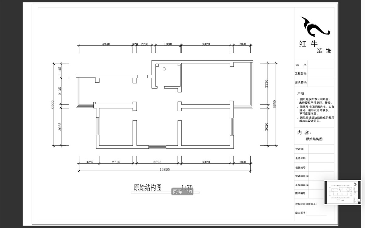
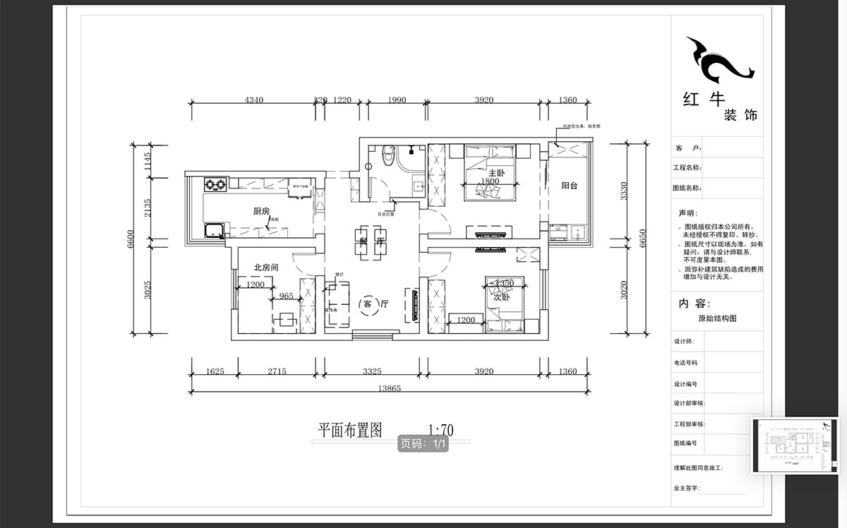
設計戶型:84.18㎡|3室2廳2衛
裝修類型:二手房裝修
裝修方式:全包裝修
設計費服務費(元):4800
施工費(元):6萬
主材、輔材的材料費總和(元):7萬
費用總和(元):13萬
主材品牌:L&D瓷磚、圣象地板、戴勝木門、開來櫥柜、法恩莎潔具、奧普吊頂
開工日期:2021年03月01日
竣工日期:2021年06月01日
項目經理:成東
改造前建筑缺陷:
房子就是比較常規的三房兩廳的戶型,墻體上沒有改動,就是在原有家具布置上做了更細致的規劃。
方案設計說明:
在設計上我們還原了一種陽光愜意的生活本味,設計師將純粹、舒適、綠意、品質糅合到簡約大氣的空間,設計不只是在營造空間的氛圍,我們希望將屋主將對生活的美好向往作為一種生活的態度延續下去。




家裝攻略
- 二手房裝修舊房翻新太難了,想要裝修不求人?建議收藏!
- 工地巡檢:步履不停,以行動兌現品質承諾,嚴格把控每一環!
- 避坑指南:裝修坑多、水深?歸根結底五個字:信息不對稱
- 工地巡檢日:標準&品質是底線,專業&用心是態度!
- 好評如潮:曬一波熱乎的客戶評價,親身體驗過才最具有發言權!
- 最好的口碑,莫過于裝修業主的真實評價!
- 南京紅牛裝飾:始終如一,以品質說話,以服務鑄口碑!
- 再好的文案,都抵不過客戶的真實反饋!“三個最”【內附完工實景】
- 工地突擊巡檢|嚴把每一處細節,用心守護每一份安心!
- 南京紅牛裝飾再添榮譽,榮獲兩面錦旗,雙倍肯定,十分滿意!
- 南京115㎡現代簡約風裝修,每一處都將“實用”和“顏值”完美兼容!
- 裝修寶典:為何說企業文化是企業靈魂,是企業生存與發展的根本?
- 南京裝修公司紅牛裝飾工地突擊巡檢:一厘一毫堅守品質,一心一意守護新家!
- 南京裝修避坑指南:裝修材料的選擇,直接影響您入住新家的早晚?
- 南京比較靠譜的裝修公司?南京紅牛裝飾裝修寶典:新房裝修好多久可以入住?關鍵在于……
- 工地巡檢:雙節同慶,品質同行,嚴把每一道工序,用心守護夢想家!
- 避坑指南:老房改造二手舊房翻新注意這幾點,省心又省錢!
- 690億元!2025最后一批“國補”資金已下達!還可疊加企補!至高可省40000元!
- 【9月再添榮譽】業主說紅牛裝飾設計牛!監工牛!預算牛!超滿意!
- 九月秋意漸濃,南京紅牛裝飾工地巡檢步履不停,只為兌現品質承諾!


