| 案例風格 | 北歐風格 | 案例戶型 | 躍層 | 案例面積 | 80㎡ |
|---|---|---|---|---|---|
| 樓盤名稱 | 峨嵋新村 | 設 計 師 | 南京紅牛裝飾 | 案例造價 | 定制家|全包24萬 |
設計說明
設計戶型:80㎡|2室1廳1衛
裝修類型:老房裝修
裝修方式:全包裝修
設計費服務費(元):6000
施工費(元):8萬
主材、輔材的材料費總和(元):16萬含樓板現澆
費用總和(元):24萬
主材品牌:歐神諾瓷磚、李洋地板、李洋木門、開來櫥柜、法恩莎潔具、奧普吊頂
開工日期:2016年09月15日
竣工日期:2017年03月20日
項目經理:郭建江
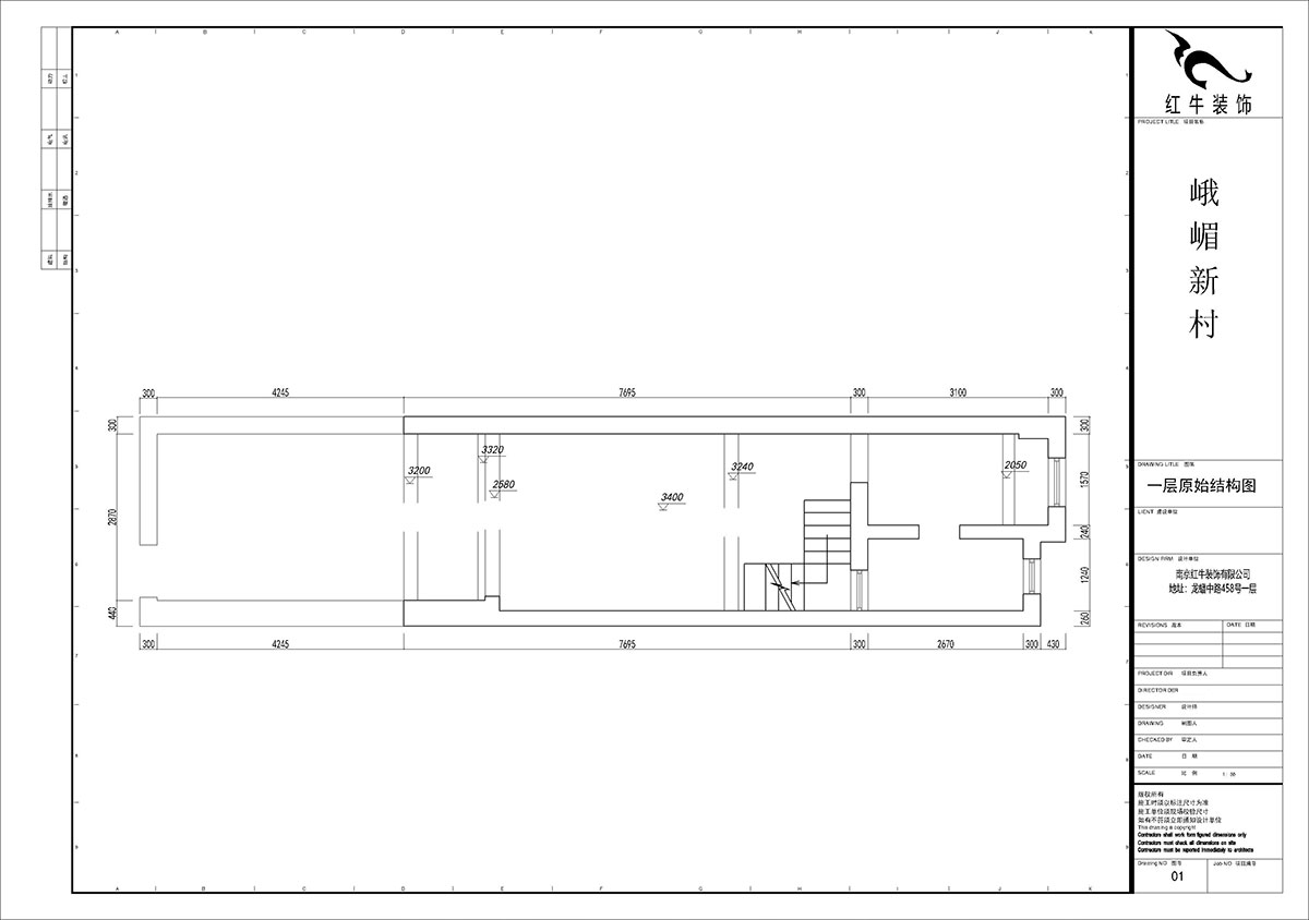
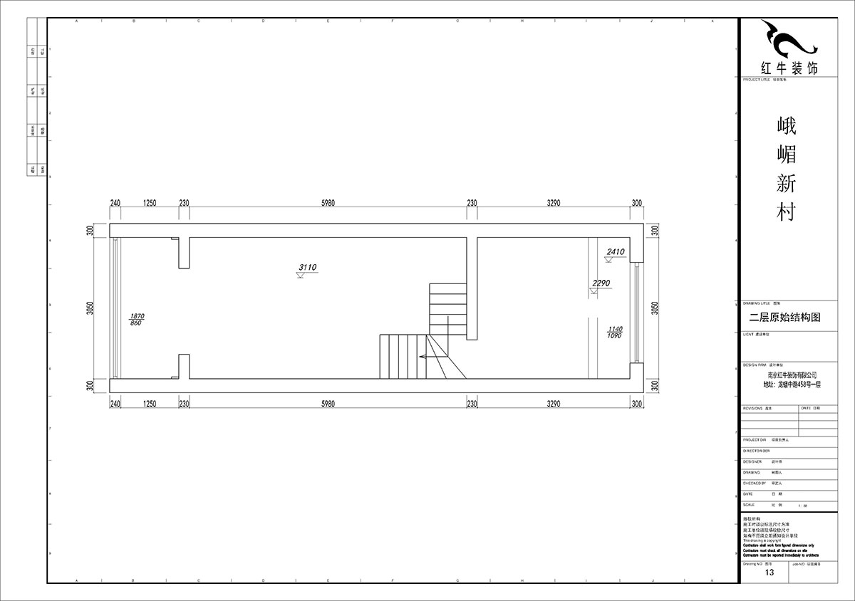
改造前建筑情況:
本案是一個老房子,是個錯層的房子,剛接觸這個房子時,房子的狀況很差。從初步的測量開始,對于嚴謹度就很高,方案的理念溝通很順利,業主要做簡約的風格。房子施工從拆除開始,拆完之后重新去復測,重新做方案。房子挑高7米,隔兩層中間加了一個隔層。方案的核心是把這個顯得破舊的房子裝出眼前一亮的感覺,但要有家的溫馨。隨著拆除的結束,房子因為年代過舊,一些基礎設施變得破舊,都需要重新去加固砌筑。原有上二樓的木制樓梯也因為一樓的潮濕與歲月變的不可使用,二樓的樓板原來是木制框架的,木方也破損,鑒于住家的安全因素最后樓板選擇重新澆筑,在跨度上增加梁。等房屋加固完畢重新測量,設計方案也在根據現場不斷進行合理的調整,包括上樓的樓梯走向,踏步規格都需要現場的尺寸嚴格計算。這個過程里也在不斷跟客戶進行設計上的溝通,聽取客戶想要的家的感覺,因地制宜的進行方案的優化。
方案設計說明:
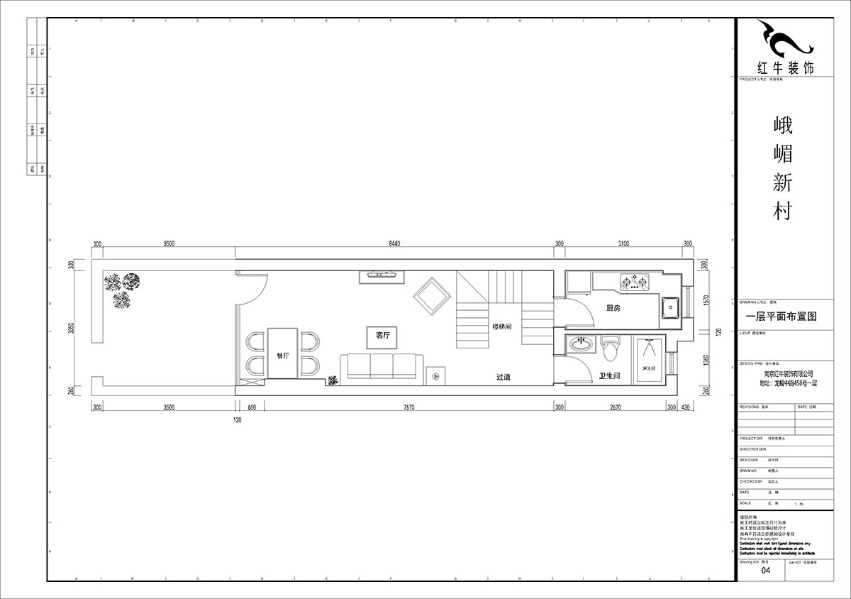
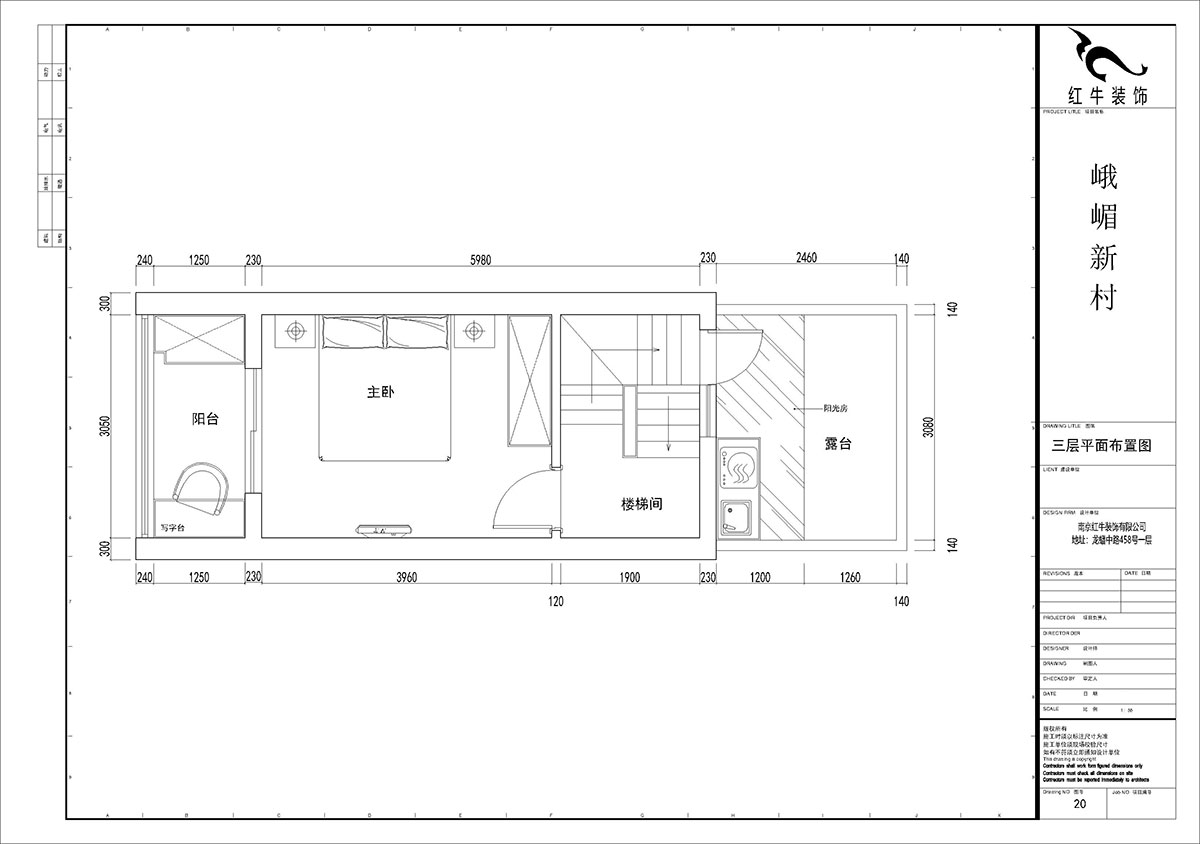
生活需要一個溫馨的家,一個別致的小花園,可以讓生活更加的輕松愉悅。這個房子的格局決定了,這個設計要追求細節上的創新,利用每個細微的空間尺寸,融入生活的基本設施功能的前體下,多點生活的趣味。風格上業主喜歡清爽明亮的空間,硬裝上不要太復雜,在軟裝的色彩上更要體現家的溫馨明亮色彩。一樓的挑高格局,電視背景的仿大理石瓷磚,讓空間更加的整潔大氣。餐廳的外加出來,做上陽光房,讓狹長的房子采光也更加的好。上樓的整木定制樓梯,在白色的乳膠漆環境里,多了一抹自然的色彩。臥室的墻紙,不同于客餐廳的乳膠漆,讓臥室的居住環境更加溫和。





家裝攻略
- 二手房裝修舊房翻新太難了,想要裝修不求人?建議收藏!
- 工地巡檢:步履不停,以行動兌現品質承諾,嚴格把控每一環!
- 避坑指南:裝修坑多、水深?歸根結底五個字:信息不對稱
- 工地巡檢日:標準&品質是底線,專業&用心是態度!
- 好評如潮:曬一波熱乎的客戶評價,親身體驗過才最具有發言權!
- 最好的口碑,莫過于裝修業主的真實評價!
- 南京紅牛裝飾:始終如一,以品質說話,以服務鑄口碑!
- 再好的文案,都抵不過客戶的真實反饋!“三個最”【內附完工實景】
- 工地突擊巡檢|嚴把每一處細節,用心守護每一份安心!
- 南京紅牛裝飾再添榮譽,榮獲兩面錦旗,雙倍肯定,十分滿意!
- 南京115㎡現代簡約風裝修,每一處都將“實用”和“顏值”完美兼容!
- 裝修寶典:為何說企業文化是企業靈魂,是企業生存與發展的根本?
- 南京裝修公司紅牛裝飾工地突擊巡檢:一厘一毫堅守品質,一心一意守護新家!
- 南京裝修避坑指南:裝修材料的選擇,直接影響您入住新家的早晚?
- 南京比較靠譜的裝修公司?南京紅牛裝飾裝修寶典:新房裝修好多久可以入住?關鍵在于……
- 工地巡檢:雙節同慶,品質同行,嚴把每一道工序,用心守護夢想家!
- 避坑指南:老房改造二手舊房翻新注意這幾點,省心又省錢!
- 690億元!2025最后一批“國補”資金已下達!還可疊加企補!至高可省40000元!
- 【9月再添榮譽】業主說紅牛裝飾設計牛!監工牛!預算牛!超滿意!
- 九月秋意漸濃,南京紅牛裝飾工地巡檢步履不停,只為兌現品質承諾!


