| 案例風格 | 北歐風格 | 案例戶型 | 平層 | 案例面積 | 63㎡ |
|---|---|---|---|---|---|
| 樓盤名稱 | 富康新村 | 設 計 師 | 朱明琪 | 案例造價 | 定制家|全包11萬 |
設計說明
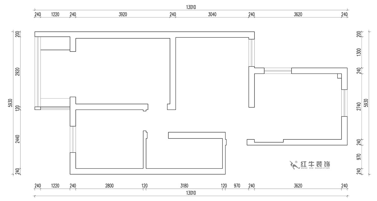
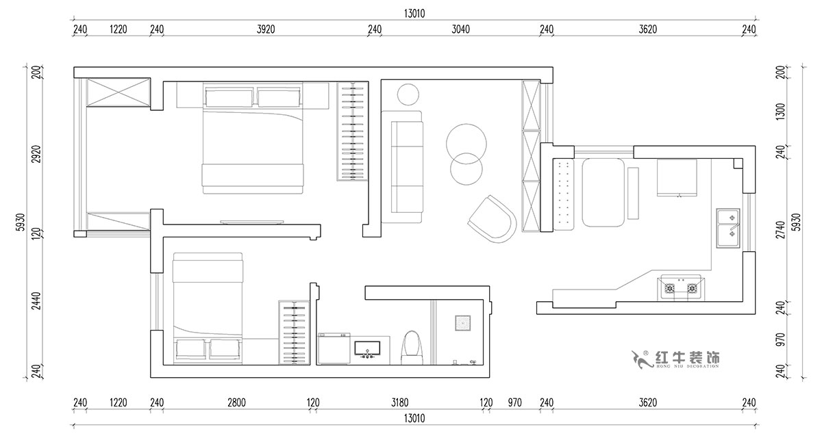
設計戶型:63㎡|2室2廳1衛
裝修類型:老房翻新
裝修方式:全包裝修
設計費服務費(元):5000
施工費(元):6萬
主材、輔材的材料費總和(元):5萬
費用總和(元):11萬
主材品牌:L&D瓷磚、李洋地板、李洋木門、開來櫥柜、法恩莎衛浴、奧普吊頂
開工日期:2021年09月22日
竣工日期:2022年01月08日
項目經理:王志堅
改造前建筑缺陷:
入戶沒有儲藏空間
廚房與餐廳過小
整體存儲空間明顯不足
衛生間區域凌亂
方案設計說明:
大道至簡,遙望明城墻毗鄰月牙湖,使我們不得不思考什么樣的裝修風格才能不辜負富康新村小區得天獨厚的周邊環境。
溫潤的原木,深受廣大業主的喜愛,簡單的色調與光影營造出家的舒適感,有完美地平衡了理想環境與室內實用,創造性的家,自帶歸屬感。




家裝攻略
- 二手房裝修舊房翻新太難了,想要裝修不求人?建議收藏!
- 工地巡檢:步履不停,以行動兌現品質承諾,嚴格把控每一環!
- 避坑指南:裝修坑多、水深?歸根結底五個字:信息不對稱
- 工地巡檢日:標準&品質是底線,專業&用心是態度!
- 好評如潮:曬一波熱乎的客戶評價,親身體驗過才最具有發言權!
- 最好的口碑,莫過于裝修業主的真實評價!
- 南京紅牛裝飾:始終如一,以品質說話,以服務鑄口碑!
- 再好的文案,都抵不過客戶的真實反饋!“三個最”【內附完工實景】
- 工地突擊巡檢|嚴把每一處細節,用心守護每一份安心!
- 南京紅牛裝飾再添榮譽,榮獲兩面錦旗,雙倍肯定,十分滿意!
- 南京115㎡現代簡約風裝修,每一處都將“實用”和“顏值”完美兼容!
- 裝修寶典:為何說企業文化是企業靈魂,是企業生存與發展的根本?
- 南京裝修公司紅牛裝飾工地突擊巡檢:一厘一毫堅守品質,一心一意守護新家!
- 南京裝修避坑指南:裝修材料的選擇,直接影響您入住新家的早晚?
- 南京比較靠譜的裝修公司?南京紅牛裝飾裝修寶典:新房裝修好多久可以入住?關鍵在于……
- 工地巡檢:雙節同慶,品質同行,嚴把每一道工序,用心守護夢想家!
- 避坑指南:老房改造二手舊房翻新注意這幾點,省心又省錢!
- 690億元!2025最后一批“國補”資金已下達!還可疊加企補!至高可省40000元!
- 【9月再添榮譽】業主說紅牛裝飾設計牛!監工牛!預算牛!超滿意!
- 九月秋意漸濃,南京紅牛裝飾工地巡檢步履不停,只為兌現品質承諾!


