| 案例風格 | 輕奢風格 | 案例戶型 | 平層 | 案例面積 | 135㎡ |
|---|---|---|---|---|---|
| 樓盤名稱 | 電建洺悅府二期北苑 | 設 計 師 | 蔣琛 | 案例造價 | 定制家|全包20萬 |
設計說明
設計戶型:135㎡|4室2廳2衛|VR
裝修類型:新房裝修
裝修方式:全包裝修
設計費服務費(元):9800
施工費(元):9萬
主材、輔材的材料費總和(元):11萬
費用總和(元):20萬
主材品牌:L&D瓷磚、圣象地板、金豪森木門、開來櫥柜、摩恩潔具、奧普吊頂
開工日期:2022年05月02日
竣工日期:2022年09月02日
項目經理:錢新平
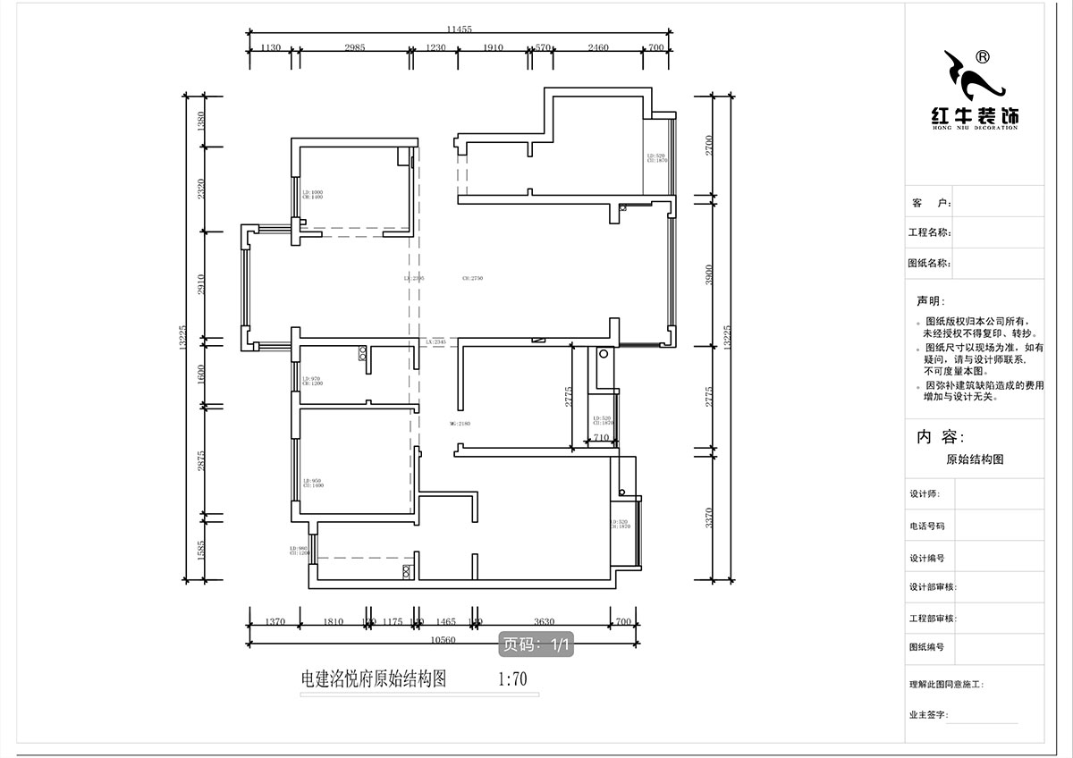
改造前建筑缺陷:
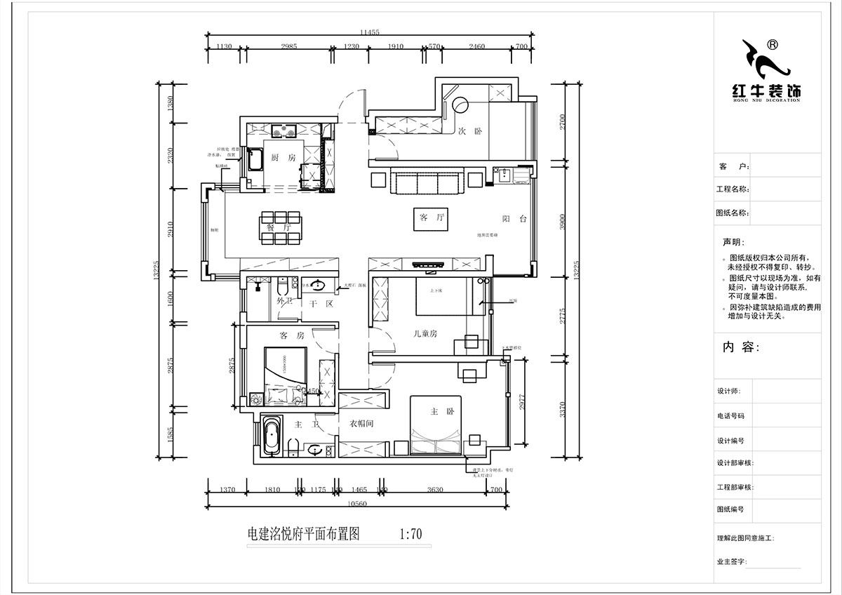
進門房間,因為要增加辦公空間,所以把床延伸至窗下,把原始的門廳衣帽區納入房間,增加收納,客餐廳南北陽臺打通,把北陽臺作為西廚房的使用,增加了家里生活的便利,客廳電視墻和餐邊柜一體定制,空間規整,收納倍增。主臥室因為衛生間的門位置的原因,做了三個方案,一是把主臥室門對著大門,后期做成隱形門,在原來衣帽間的位置通過調整衛生間的尺寸,可以在背后增加一組收納柜,但是衛生間的門對著床,二是客戶避諱主臥對著大門,那就主臥的門改到過道邊上,衣帽間和衛生間的位置基本確定在原來位置,三是臥室門對著大門做城隱形門,但是衣帽間的門改一個方向,這樣也增加了一組收納!
方案設計說明:
房子是父母給孩子準備的婚房,風格定義為現代輕奢,在平面功能的規劃中,要求四個房間全部保留,房間原始的尺寸都不是很大,好在所有的飄窗全部可以打掉,充分利用空調外機的位置把臥室打開,增加舒適性。




家裝攻略
- 二手房裝修舊房翻新太難了,想要裝修不求人?建議收藏!
- 工地巡檢:步履不停,以行動兌現品質承諾,嚴格把控每一環!
- 避坑指南:裝修坑多、水深?歸根結底五個字:信息不對稱
- 工地巡檢日:標準&品質是底線,專業&用心是態度!
- 好評如潮:曬一波熱乎的客戶評價,親身體驗過才最具有發言權!
- 最好的口碑,莫過于裝修業主的真實評價!
- 南京紅牛裝飾:始終如一,以品質說話,以服務鑄口碑!
- 再好的文案,都抵不過客戶的真實反饋!“三個最”【內附完工實景】
- 工地突擊巡檢|嚴把每一處細節,用心守護每一份安心!
- 南京紅牛裝飾再添榮譽,榮獲兩面錦旗,雙倍肯定,十分滿意!
- 南京115㎡現代簡約風裝修,每一處都將“實用”和“顏值”完美兼容!
- 裝修寶典:為何說企業文化是企業靈魂,是企業生存與發展的根本?
- 南京裝修公司紅牛裝飾工地突擊巡檢:一厘一毫堅守品質,一心一意守護新家!
- 南京裝修避坑指南:裝修材料的選擇,直接影響您入住新家的早晚?
- 南京比較靠譜的裝修公司?南京紅牛裝飾裝修寶典:新房裝修好多久可以入住?關鍵在于……
- 工地巡檢:雙節同慶,品質同行,嚴把每一道工序,用心守護夢想家!
- 避坑指南:老房改造二手舊房翻新注意這幾點,省心又省錢!
- 690億元!2025最后一批“國補”資金已下達!還可疊加企補!至高可省40000元!
- 【9月再添榮譽】業主說紅牛裝飾設計牛!監工牛!預算牛!超滿意!
- 九月秋意漸濃,南京紅牛裝飾工地巡檢步履不停,只為兌現品質承諾!


