| 案例風格 | 現代簡約風格 | 案例戶型 | 平層 | 案例面積 | 100㎡ |
|---|---|---|---|---|---|
| 樓盤名稱 | 長營村145號 | 設 計 師 | 紅牛裝飾設計團隊 | 案例造價 | 定制家|全包15萬 |
設計說明
設計戶型:100㎡|4室1廳1衛
裝修類型:老房裝修
裝修方式:全包裝修
設計費服務費(元):4500
施工費(元):8萬
主材、輔材的材料費總和(元):7萬
費用總和(元):15萬
開工日期:2023年02月18日
竣工日期:2023年06月20日
項目經理:徐冬林
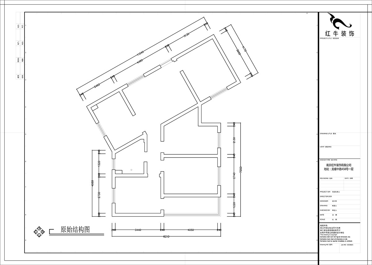
改造前建筑缺陷:
戶型斜角多,不是正南方向。
方案設計說明:
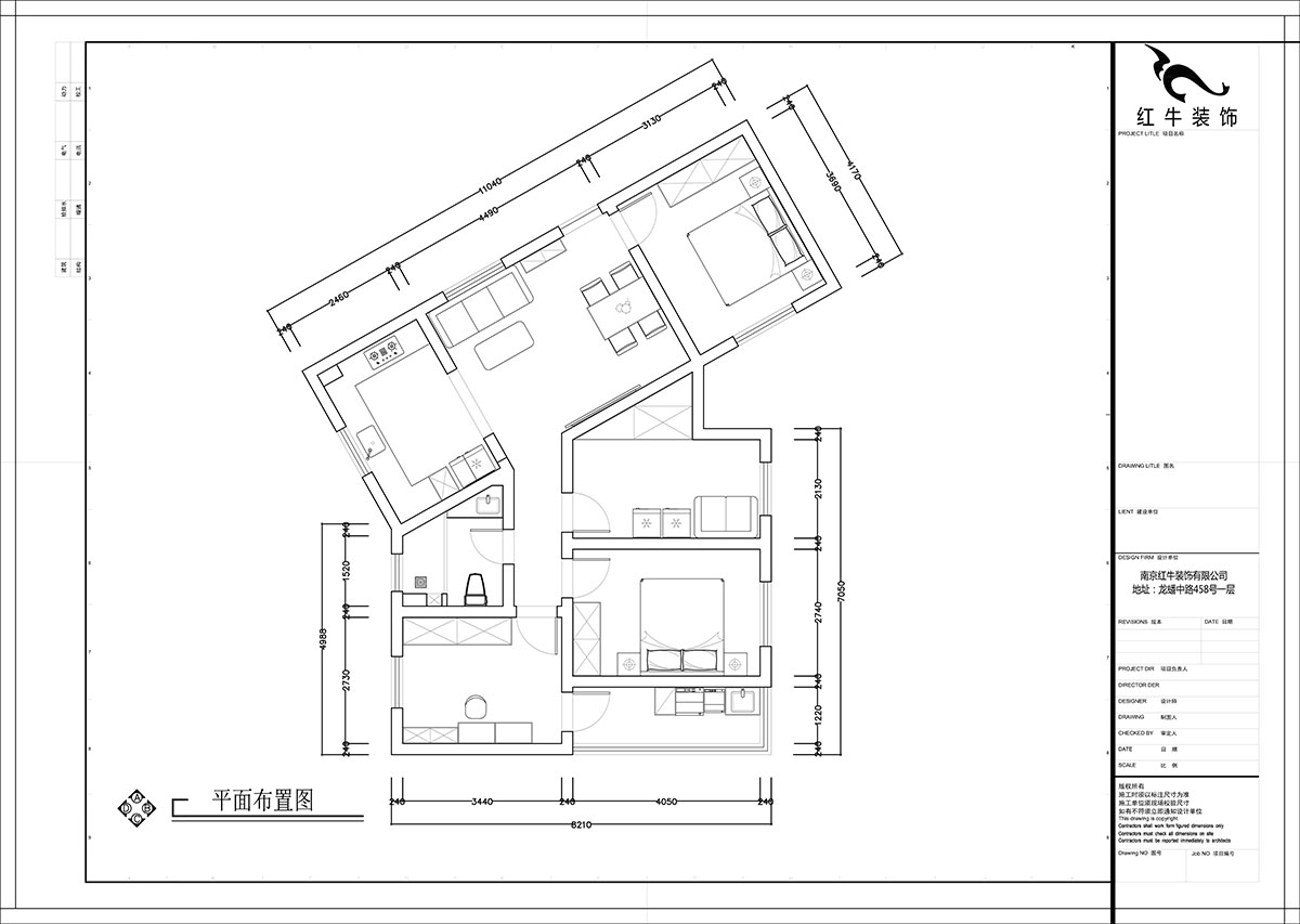
本案是客戶老兩口自住,大體結構不需要做過多改動,廚房門洞移位,增加裝飾柜空間,同時可以將廚房的采光給客廳使用,增加明亮感。衛生間利用斜角做洗臉柜,解決原有洗臉柜太小的麻煩。洗衣機放置陽臺,增加便捷性。
設計說明:
本案客戶夫妻倆,小孩偶爾來住。通過改動增加餐廳位置,一邊作為小孩居住空間。衛生間孔家通過改造,變成干濕分離,互不干擾。
簡約設計,電視墻增加儲物,使空間更加簡潔,全屋顏色清爽明亮。
在客廳設計上,白色墻頂面,深色的柜體形成對比,淺色家具,石材臺面的茶幾,中央空調,吸頂燈,滿足老兩口居住的實用性。暖灰色的瓷磚,使空間更加溫馨、自然。
主臥室的更加簡單,無吊頂設計使空間更加不壓抑,木色大床更適合老人的居住需求和觀感,整個空間色調柔柔的,很適合臥室的氛圍感。
次臥室的石膏線條,暖色墻面,新中式家具,白色的柜子,空間清新一門到頂的設計使空間得到拉伸。
書房作為多功能區,兼備儲物、學習、居住的三個需求,原木色的地面與木色柜體的點綴交相呼應,百葉卷簾的設計更加節省空間,老兩口保留的縫紉機,留下對從前深深的印記。
客臥,基本上是閑置放雜物的地方,偶爾來客人居住用的沙發床可以放置,同時平時多的冰箱、冰柜也可以放置。





家裝攻略
- 二手房裝修舊房翻新太難了,想要裝修不求人?建議收藏!
- 工地巡檢:步履不停,以行動兌現品質承諾,嚴格把控每一環!
- 避坑指南:裝修坑多、水深?歸根結底五個字:信息不對稱
- 工地巡檢日:標準&品質是底線,專業&用心是態度!
- 好評如潮:曬一波熱乎的客戶評價,親身體驗過才最具有發言權!
- 最好的口碑,莫過于裝修業主的真實評價!
- 南京紅牛裝飾:始終如一,以品質說話,以服務鑄口碑!
- 再好的文案,都抵不過客戶的真實反饋!“三個最”【內附完工實景】
- 工地突擊巡檢|嚴把每一處細節,用心守護每一份安心!
- 南京紅牛裝飾再添榮譽,榮獲兩面錦旗,雙倍肯定,十分滿意!
- 南京115㎡現代簡約風裝修,每一處都將“實用”和“顏值”完美兼容!
- 裝修寶典:為何說企業文化是企業靈魂,是企業生存與發展的根本?
- 南京裝修公司紅牛裝飾工地突擊巡檢:一厘一毫堅守品質,一心一意守護新家!
- 南京裝修避坑指南:裝修材料的選擇,直接影響您入住新家的早晚?
- 南京比較靠譜的裝修公司?南京紅牛裝飾裝修寶典:新房裝修好多久可以入住?關鍵在于……
- 工地巡檢:雙節同慶,品質同行,嚴把每一道工序,用心守護夢想家!
- 避坑指南:老房改造二手舊房翻新注意這幾點,省心又省錢!
- 690億元!2025最后一批“國補”資金已下達!還可疊加企補!至高可省40000元!
- 【9月再添榮譽】業主說紅牛裝飾設計牛!監工牛!預算牛!超滿意!
- 九月秋意漸濃,南京紅牛裝飾工地巡檢步履不停,只為兌現品質承諾!


