| 案例風格 | 現代簡約風格 | 案例戶型 | 平層 | 案例面積 | 70㎡ |
|---|---|---|---|---|---|
| 樓盤名稱 | 清溪村 | 設 計 師 | 紅牛裝飾設計團隊 | 案例造價 | 定制家|全包14萬 |
設計說明
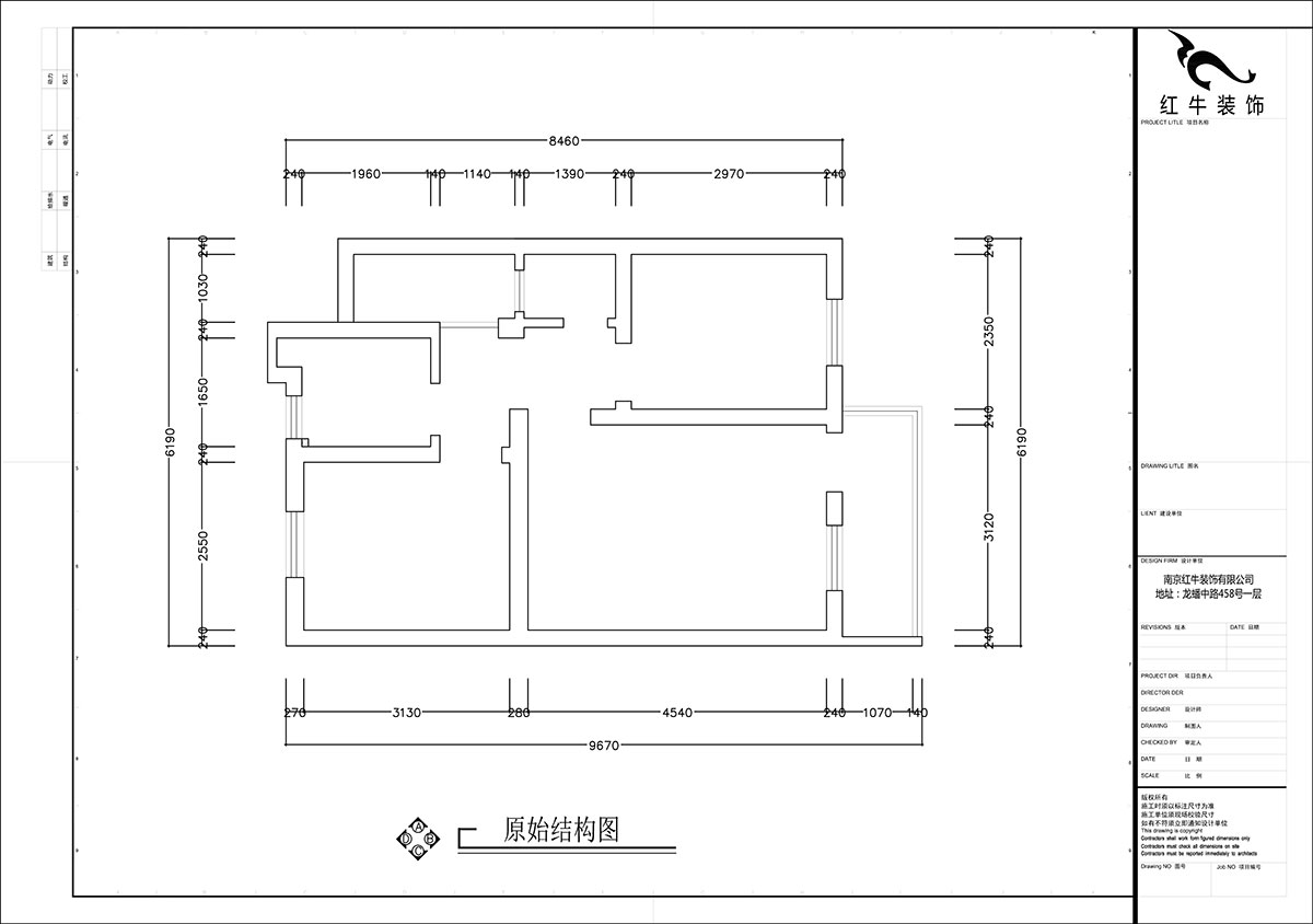
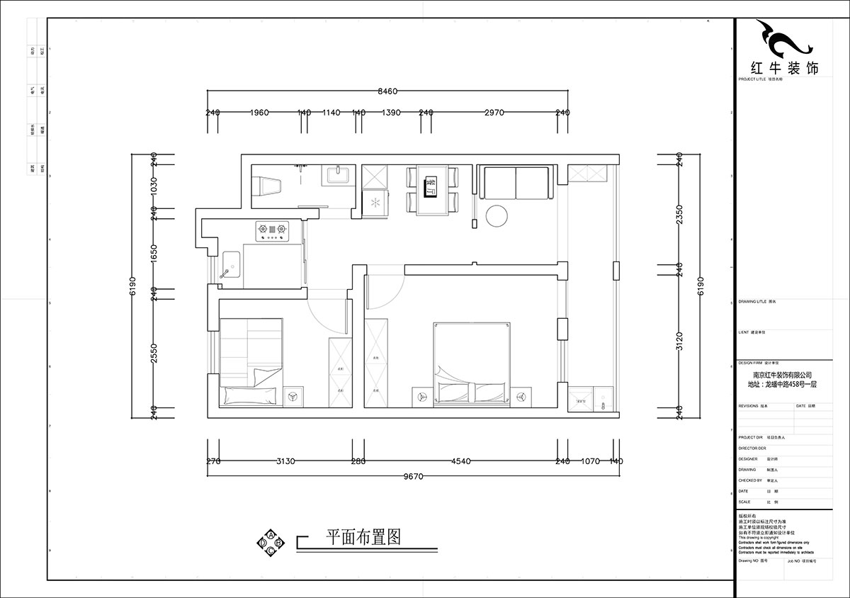
設計戶型:70㎡|2室2廳1衛
裝修類型:老房裝修
裝修方式:全包裝修
設計費服務費(元):5000
施工費(元):7萬
主材、輔材的材料費總和(元):7萬
費用總和(元):14萬
主材品牌:L&D瓷磚、李洋地板、森尚木門、開來櫥柜、法恩莎衛浴
改造前建筑情況:
利用樓梯位置作為衛生間。
方案設計說明:
現代人的生活習性,喜歡簡單明了不拖泥帶水的東西,都市的快節奏,讓人們希望在房子里找到家的溫馨。客廳淺灰色的墻面讓人有安靜下來的體驗,木色的家具,加以搭配撞色的門板,不會有原始的呆板。木色的家具配以時尚的撞色,大膽又不失規矩,甚是合適。大量的留白,使空間更加時尚和安靜。房間木色的拼色和皮質的碰撞,配以稍深的背景墻,溫暖又清新,讓主人能在疲憊一天的工作中,舒服地進入夢鄉。次臥朝北,運用淺色的墻面,將空間帶進自然,運用各色材質,顏色的碰撞,讓空間更加靈動,讓居住的人們也不壓抑,同時滿足不同年齡段。


家裝攻略
- 二手房裝修舊房翻新太難了,想要裝修不求人?建議收藏!
- 工地巡檢:步履不停,以行動兌現品質承諾,嚴格把控每一環!
- 避坑指南:裝修坑多、水深?歸根結底五個字:信息不對稱
- 工地巡檢日:標準&品質是底線,專業&用心是態度!
- 好評如潮:曬一波熱乎的客戶評價,親身體驗過才最具有發言權!
- 最好的口碑,莫過于裝修業主的真實評價!
- 南京紅牛裝飾:始終如一,以品質說話,以服務鑄口碑!
- 再好的文案,都抵不過客戶的真實反饋!“三個最”【內附完工實景】
- 工地突擊巡檢|嚴把每一處細節,用心守護每一份安心!
- 南京紅牛裝飾再添榮譽,榮獲兩面錦旗,雙倍肯定,十分滿意!
- 南京115㎡現代簡約風裝修,每一處都將“實用”和“顏值”完美兼容!
- 裝修寶典:為何說企業文化是企業靈魂,是企業生存與發展的根本?
- 南京裝修公司紅牛裝飾工地突擊巡檢:一厘一毫堅守品質,一心一意守護新家!
- 南京裝修避坑指南:裝修材料的選擇,直接影響您入住新家的早晚?
- 南京比較靠譜的裝修公司?南京紅牛裝飾裝修寶典:新房裝修好多久可以入住?關鍵在于……
- 工地巡檢:雙節同慶,品質同行,嚴把每一道工序,用心守護夢想家!
- 避坑指南:老房改造二手舊房翻新注意這幾點,省心又省錢!
- 690億元!2025最后一批“國補”資金已下達!還可疊加企補!至高可省40000元!
- 【9月再添榮譽】業主說紅牛裝飾設計牛!監工牛!預算牛!超滿意!
- 九月秋意漸濃,南京紅牛裝飾工地巡檢步履不停,只為兌現品質承諾!


