| 案例風格 | 新中式風格 | 案例戶型 | 平層 | 案例面積 | 120㎡ |
|---|---|---|---|---|---|
| 樓盤名稱 | 印湖山莊 | 設 計 師 | 熊皓宇 | 案例造價 | 定制家|全包18萬 |
設計說明
設計戶型:120㎡|3室2廳2衛|VR
裝修類型:毛坯房裝修
裝修方式:全包裝修
設計費服務費(元):7000
施工費(元):8萬
主材、輔材的材料費總和(元):10萬
費用總和(元):18萬
主材品牌:歐神諾瓷磚、李洋地板、金豪森木門、開來櫥柜、法恩莎潔具、奧普吊頂
開工日期:2022年04月19日
竣工日期:2022年07月29日
項目經理:毛步友
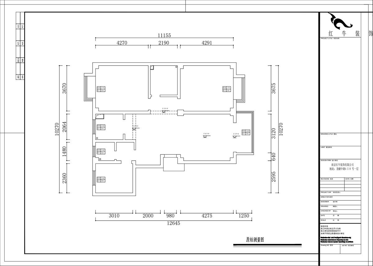
改造前建筑缺陷:
本案戶型規整,采光較好,業主對于廚房面積不滿意,操作臺面少,不能擺放雙門冰箱。
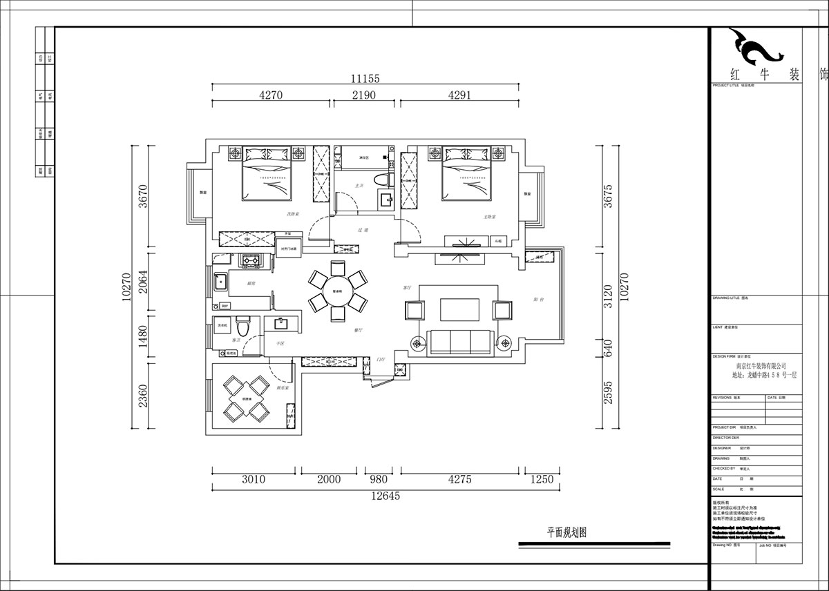
方案設計說明:
本案家具為老家具,基于家具的基礎上根據業主的喜好進行設計,中國文化講究的就是一種和諧美,所以中式風格肯定也離不開這一-特點。如果說中式家具是山,體現的是一種居高臨下的霸氣;那么新中式則是海,體現的是一種海納百川的包容及融合中通的和諧。新中式家具的“和諧”體現在它對生活方式的表達和對主人情感的把握。年輕人崇尚時尚,中年人偏愛大氣,老年人卻追求古典。三代同堂的家庭里,怎樣的家具才能兼顧大家的感受?唯有新中式!新中式家具簡化了傳統家具繁復的設計,融入現代化元素,使得家具線條更加圓潤流暢。新中式家具以文化的韻味、混搭的材質、人性化的功能和設計,成為三代同堂家庭的共同選擇。


家裝攻略
- 二手房裝修舊房翻新太難了,想要裝修不求人?建議收藏!
- 工地巡檢:步履不停,以行動兌現品質承諾,嚴格把控每一環!
- 避坑指南:裝修坑多、水深?歸根結底五個字:信息不對稱
- 工地巡檢日:標準&品質是底線,專業&用心是態度!
- 好評如潮:曬一波熱乎的客戶評價,親身體驗過才最具有發言權!
- 最好的口碑,莫過于裝修業主的真實評價!
- 南京紅牛裝飾:始終如一,以品質說話,以服務鑄口碑!
- 再好的文案,都抵不過客戶的真實反饋!“三個最”【內附完工實景】
- 工地突擊巡檢|嚴把每一處細節,用心守護每一份安心!
- 南京紅牛裝飾再添榮譽,榮獲兩面錦旗,雙倍肯定,十分滿意!
- 南京115㎡現代簡約風裝修,每一處都將“實用”和“顏值”完美兼容!
- 裝修寶典:為何說企業文化是企業靈魂,是企業生存與發展的根本?
- 南京裝修公司紅牛裝飾工地突擊巡檢:一厘一毫堅守品質,一心一意守護新家!
- 南京裝修避坑指南:裝修材料的選擇,直接影響您入住新家的早晚?
- 南京比較靠譜的裝修公司?南京紅牛裝飾裝修寶典:新房裝修好多久可以入住?關鍵在于……
- 工地巡檢:雙節同慶,品質同行,嚴把每一道工序,用心守護夢想家!
- 避坑指南:老房改造二手舊房翻新注意這幾點,省心又省錢!
- 690億元!2025最后一批“國補”資金已下達!還可疊加企補!至高可省40000元!
- 【9月再添榮譽】業主說紅牛裝飾設計牛!監工牛!預算牛!超滿意!
- 九月秋意漸濃,南京紅牛裝飾工地巡檢步履不停,只為兌現品質承諾!


