| 案例風格 | 現代簡約風格 | 案例戶型 | 別墅 | 案例面積 | 160㎡ |
|---|---|---|---|---|---|
| 樓盤名稱 | 西華龍樾 | 設 計 師 | 熊皓宇 | 案例造價 | 定制家|全包24萬 |
設計說明
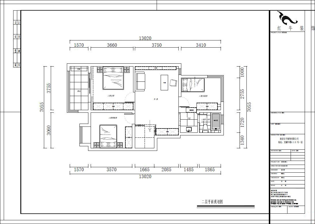
設計戶型:160㎡|4室2廳2衛|VR
裝修類型:毛坯房裝修
裝修方式:全包裝修
設計費服務費(元):1萬
施工費(元):12萬
主材、輔材的材料費總和(元):12萬
費用總和(元):24萬
主材品牌:歐神諾瓷磚、圣象地板、金豪森木門、歐派櫥柜、法恩莎潔具、奧普吊頂
開工日期:2022年07月13日
竣工日期:2022年12月01日
項目經理:張志飛
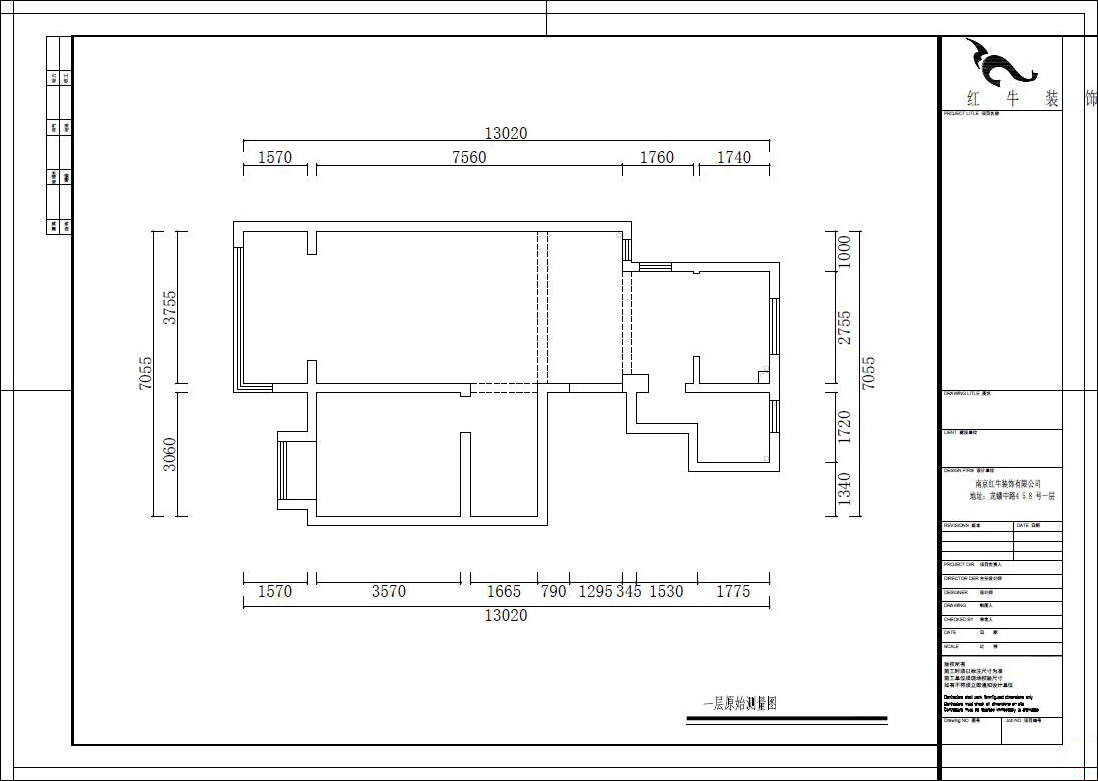
改造前建筑情況:
本案為復式戶型,原始戶型客廳和陽臺區域為挑高空間,層高5.8米,考慮到業主三代人一起居住,且有兩個小朋友,建議業主在滿足房屋功能空間的情況下,再做裝飾類設計。
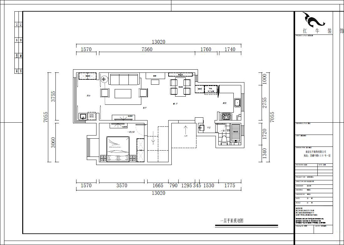
方案設計說明:
整個空間沒有選擇多余的設計手法,反而將極簡的設計風格更加突出,采用一種低飽和度的色調與木質元素相結合,展現出一種溫馨舒適的家庭氛圍。在空間中可以看到寧靜而又詩意風格,讓空間變得更加獨特給人一種回歸本真的感受。屋是墻壁與梁所結合,家是愛與夢想所構成。
1、客廳采用原木色板材作為沙發背景墻等,再加上灰色的布藝沙發一,在材質上有了一定的沖擊。沒有選用傳統的電視背景墻而是用投影儀使得空間更加極簡。
2、廚房和餐廳都屬于同一空間。無主燈的設計,暖灰色的櫥柜很好的滿足了收納的需求,推拉門在隔絕油煙的同時也可以確保陽光米照射進來。
3、主臥延續了極簡風,沒有過多裝飾的床頭背景和簡單的吊線燈,整體的家具色彩搭配和諧也是用了低飽和度色和原木色的結合。




家裝攻略
- 二手房裝修舊房翻新太難了,想要裝修不求人?建議收藏!
- 工地巡檢:步履不停,以行動兌現品質承諾,嚴格把控每一環!
- 避坑指南:裝修坑多、水深?歸根結底五個字:信息不對稱
- 工地巡檢日:標準&品質是底線,專業&用心是態度!
- 好評如潮:曬一波熱乎的客戶評價,親身體驗過才最具有發言權!
- 最好的口碑,莫過于裝修業主的真實評價!
- 南京紅牛裝飾:始終如一,以品質說話,以服務鑄口碑!
- 再好的文案,都抵不過客戶的真實反饋!“三個最”【內附完工實景】
- 工地突擊巡檢|嚴把每一處細節,用心守護每一份安心!
- 南京紅牛裝飾再添榮譽,榮獲兩面錦旗,雙倍肯定,十分滿意!
- 南京115㎡現代簡約風裝修,每一處都將“實用”和“顏值”完美兼容!
- 裝修寶典:為何說企業文化是企業靈魂,是企業生存與發展的根本?
- 南京裝修公司紅牛裝飾工地突擊巡檢:一厘一毫堅守品質,一心一意守護新家!
- 南京裝修避坑指南:裝修材料的選擇,直接影響您入住新家的早晚?
- 南京比較靠譜的裝修公司?南京紅牛裝飾裝修寶典:新房裝修好多久可以入???關鍵在于……
- 工地巡檢:雙節同慶,品質同行,嚴把每一道工序,用心守護夢想家!
- 避坑指南:老房改造二手舊房翻新注意這幾點,省心又省錢!
- 690億元!2025最后一批“國補”資金已下達!還可疊加企補!至高可省40000元!
- 【9月再添榮譽】業主說紅牛裝飾設計牛!監工牛!預算牛!超滿意!
- 九月秋意漸濃,南京紅牛裝飾工地巡檢步履不停,只為兌現品質承諾!


