| 案例風格 | 北歐風格 | 案例戶型 | 平層 | 案例面積 | 75㎡ |
|---|---|---|---|---|---|
| 樓盤名稱 | 后宰門街 | 設 計 師 | 紅牛裝飾設計團隊 | 案例造價 | 14萬(全包) |
設計說明:
現代人的生活習性,喜歡簡單明了不拖泥帶水的東西,都市的快節奏,讓人們希望在房子里找到家的溫馨。客廳淺色的墻面讓人有安靜下來的體驗,北歐的家具,加以搭配撞色的門板,不會有原始的呆板。木色的家具配以時尚的撞色,大膽又不失規矩,甚是合適。大量的留白,使空間更加時尚和安靜。房間木色的拼色和布藝的碰撞,配以不規則圖案的墻紙,溫暖又清新,讓主人能在疲憊一天的工作中,舒服的進入夢鄉。院墻防腐木的處理,綠色藤蔓的點綴,將空間帶進自然,做飯時可以看見窗外的風景,運用各色材質,顏色的碰撞,讓空間更加靈動,讓居住的人們也不壓抑,同時滿足不同年齡段。


南京后宰門街75㎡北歐風格 | 美翻了的家庭小院

■ 樓盤名稱:后宰門街
■ 設計風格:北歐風格
■ 建筑面積:75㎡
現代人喜歡簡單明了、不拖泥帶水的東西,都市的快節奏,讓人們希望在房子里找到家的溫馨。大量的留白,使空間更加時尚和安靜,各色材質、顏色的碰撞,讓空間更加靈動。
——設計師
客餐廳設計

一進門,映入眼簾的就是客餐廳。倚墻而立的白色玄關柜,搭配上懸掛的鬧鐘,讓這面墻不再單調。

淺色的墻面,北歐風家具,讓人感到安寧平靜。各種大大小小的裝飾品,讓這里充滿家的溫馨。

電視背景墻上的鏡子,起到了擴大視覺空間的效果,讓面積不太的客餐廳顯得更加寬闊敞亮。
廚房設計

具有強大吸力的集成灶是不錯的選擇,利落清爽,顏值頗高。
過道設計

過道通向外面的小院,這邊放置了洗衣機,相鄰處背面是廚房放置冰箱的位置,空間得到了很好的利用。
院子設計

院墻防腐木的處理,綠色藤蔓的點綴,打造極具觀賞價值的院落空間,做飯時可以欣賞院中風光。
臥室設計

不規則圖案墻紙與拼色窗簾的碰撞,極具個性,地面上絨絨的地毯,讓臥室顯得溫暖舒適。
衛生間設計

墻面鋪滿了小白磚,彰顯出清新之美,并且有提亮空間的作用,使得衛浴空間干凈明亮。

設計師:張智猿
擅長風格:現代簡約、歐式風格、新中式風格
設計理念:因地制宜,順其自然。
作品小區:后宰門街、保利國際社區、冠城大通藍郡、紫晶未來城、新都雅苑、高科榮境、西柏果園、中海桃源里、海德北岸、中糧鴻云、紫金華府、大光路。
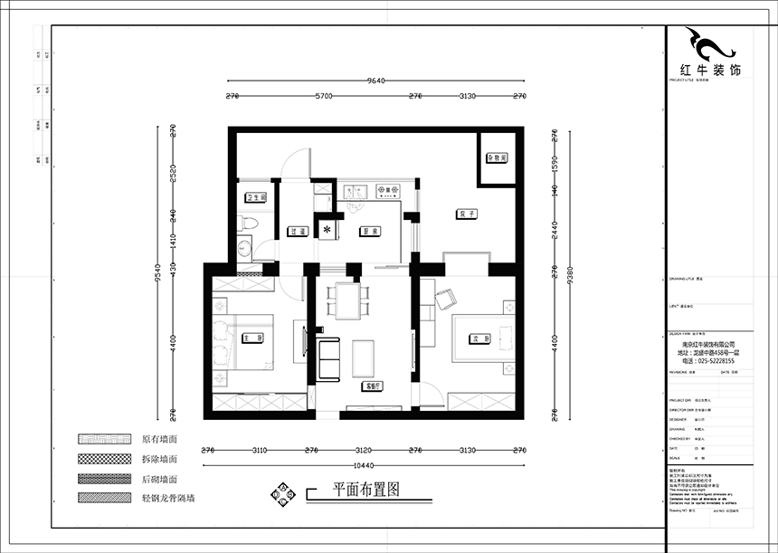
戶型圖

▲ 原始戶型圖

▲ 平面布置圖


家裝攻略
- 二手房裝修舊房翻新太難了,想要裝修不求人?建議收藏!
- 工地巡檢:步履不停,以行動兌現品質承諾,嚴格把控每一環!
- 避坑指南:裝修坑多、水深?歸根結底五個字:信息不對稱
- 工地巡檢日:標準&品質是底線,專業&用心是態度!
- 好評如潮:曬一波熱乎的客戶評價,親身體驗過才最具有發言權!
- 最好的口碑,莫過于裝修業主的真實評價!
- 南京紅牛裝飾:始終如一,以品質說話,以服務鑄口碑!
- 再好的文案,都抵不過客戶的真實反饋!“三個最”【內附完工實景】
- 工地突擊巡檢|嚴把每一處細節,用心守護每一份安心!
- 南京紅牛裝飾再添榮譽,榮獲兩面錦旗,雙倍肯定,十分滿意!
- 南京115㎡現代簡約風裝修,每一處都將“實用”和“顏值”完美兼容!
- 裝修寶典:為何說企業文化是企業靈魂,是企業生存與發展的根本?
- 南京裝修公司紅牛裝飾工地突擊巡檢:一厘一毫堅守品質,一心一意守護新家!
- 南京裝修避坑指南:裝修材料的選擇,直接影響您入住新家的早晚?
- 南京比較靠譜的裝修公司?南京紅牛裝飾裝修寶典:新房裝修好多久可以入住?關鍵在于……
- 工地巡檢:雙節同慶,品質同行,嚴把每一道工序,用心守護夢想家!
- 避坑指南:老房改造二手舊房翻新注意這幾點,省心又省錢!
- 690億元!2025最后一批“國補”資金已下達!還可疊加企補!至高可省40000元!
- 【9月再添榮譽】業主說紅牛裝飾設計牛!監工牛!預算牛!超滿意!
- 九月秋意漸濃,南京紅牛裝飾工地巡檢步履不停,只為兌現品質承諾!


