| 案例風格 | 輕奢風格 | 案例戶型 | 平層 | 案例面積 | 140㎡ |
|---|---|---|---|---|---|
| 樓盤名稱 | 同曦國際廣場 | 設 計 師 | 熊皓宇 | 案例造價 | |
南京同曦國際廣場140㎡輕奢風格 | 改善性住房應該這樣設計

■ 樓盤名稱:同曦國際廣場
■ 設計風格:輕奢風格
■ 建筑面積:140㎡
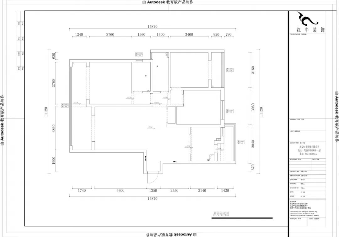
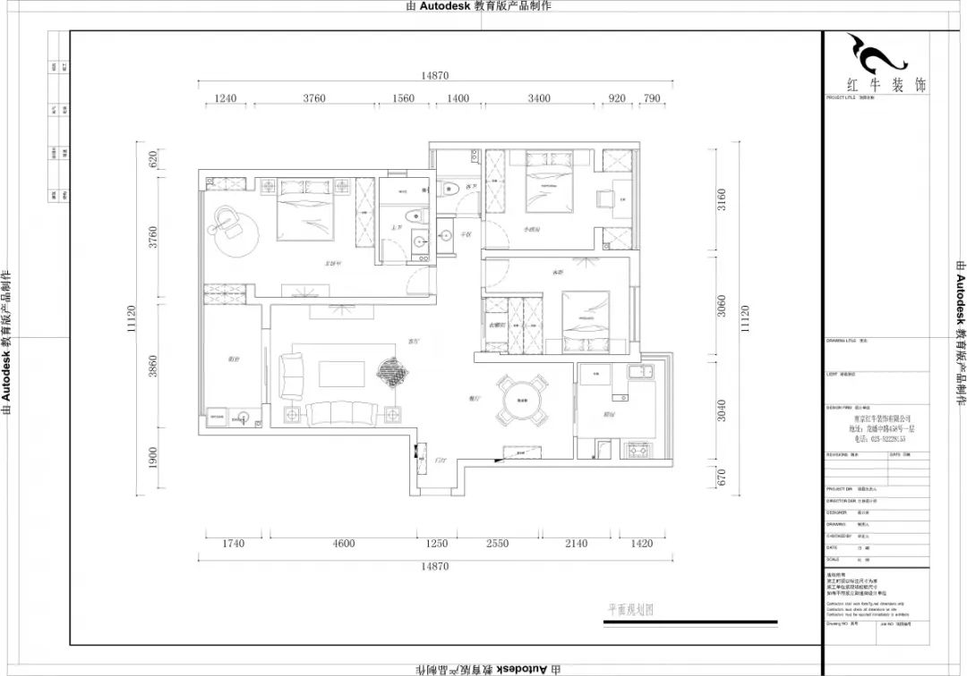
戶型圖

▲ 原始戶型圖

▲ 平面布置圖
客廳設計

客廳由灰與藍構成,彰顯內斂、優雅的質感。背景墻上的石材飾面板讓室內空間顯得開闊明亮。運用少許金屬元素作為點綴,輕松演繹輕奢之美。

過道另一側是餐廳,它與客廳之間有很明顯的區隔。旁邊的儲物間由一部分客臥空間改造而成。
餐廳設計

在方正規矩的居住空間里,有圓形來化解一下,視覺上會舒服很多。而且一家人圍著圓桌吃飯,會有一種溫暖親切的感受。

成品餐邊柜比較低矮,能夠降低視覺重心,達到放大餐廳空間的效果。上面擺放的裝飾畫,已經不再是簡單的平面圖像,而是三維的藝術品,意韻十足。
廚房設計

島臺的設計能夠承接各功能區,提高廚房空間的整體顏值,在鍋碗瓢盆中搶占C位。
主臥設計

陽臺上放上一把單椅,就是一處不錯的休閑場所,在此可以縱覽室外景色。精美的床頭吊燈,不僅能解放出床頭柜面上的空間,還提升了臥室格調。

簡潔、利落的圓形鏡,打破了衛生間的固有印象,為其添加一絲個性。顏值頗高的臺上盆,搭配黃銅龍頭,提升了空間的輕奢感。
客臥設計

衣柜是百葉門的樣式,讓人在視覺上產生一種層次漸變的感覺。此外,它在通風上也有巨大優勢。上面的鏡子在視覺上能夠起到擴大空間的效果。
兒童房設計

藍色的墻面營造出寧靜的氛圍。床品、裝飾畫的選擇顯得活潑有童趣。既有書桌椅,又有定制書柜,提供非常充足的學習空間。
客戶評價
目前,這套房子已經完成了裝修。竣工的時候,業主給我們發來裝修評價,對整個裝修過程非常滿意!



設計師:熊皓宇
擅長風格:新中式,美式輕奢,北歐風格
設計理念:作為女性設計師,注重細節是一種優勢,設計過程要把自己的專業和客戶的個性統一規劃起來,從而達到協調、完美的效果。
作品小區:保利國際社區、中冶盛世濱江、鳳棲園、同曦國際廣場、世茂外灘新城、雍福龍庭、香山美墅、弘陽上院、蘇寧睿城、百家湖花園、旭日上城、保利梧桐語、香悅瀾山、楓情水岸等。

家裝攻略
- 二手房裝修舊房翻新太難了,想要裝修不求人?建議收藏!
- 工地巡檢:步履不停,以行動兌現品質承諾,嚴格把控每一環!
- 避坑指南:裝修坑多、水深?歸根結底五個字:信息不對稱
- 工地巡檢日:標準&品質是底線,專業&用心是態度!
- 好評如潮:曬一波熱乎的客戶評價,親身體驗過才最具有發言權!
- 最好的口碑,莫過于裝修業主的真實評價!
- 南京紅牛裝飾:始終如一,以品質說話,以服務鑄口碑!
- 再好的文案,都抵不過客戶的真實反饋!“三個最”【內附完工實景】
- 工地突擊巡檢|嚴把每一處細節,用心守護每一份安心!
- 南京紅牛裝飾再添榮譽,榮獲兩面錦旗,雙倍肯定,十分滿意!
- 南京115㎡現代簡約風裝修,每一處都將“實用”和“顏值”完美兼容!
- 裝修寶典:為何說企業文化是企業靈魂,是企業生存與發展的根本?
- 南京裝修公司紅牛裝飾工地突擊巡檢:一厘一毫堅守品質,一心一意守護新家!
- 南京裝修避坑指南:裝修材料的選擇,直接影響您入住新家的早晚?
- 南京比較靠譜的裝修公司?南京紅牛裝飾裝修寶典:新房裝修好多久可以入住?關鍵在于……
- 工地巡檢:雙節同慶,品質同行,嚴把每一道工序,用心守護夢想家!
- 避坑指南:老房改造二手舊房翻新注意這幾點,省心又省錢!
- 690億元!2025最后一批“國補”資金已下達!還可疊加企補!至高可省40000元!
- 【9月再添榮譽】業主說紅牛裝飾設計牛!監工牛!預算牛!超滿意!
- 九月秋意漸濃,南京紅牛裝飾工地巡檢步履不停,只為兌現品質承諾!
已有2719人預約
已有2719人參與


