| 案例風格 | 現代簡約風格 | 案例戶型 | 平層 | 案例面積 | 90㎡ |
|---|---|---|---|---|---|
| 樓盤名稱 | 紫金上品苑 | 設 計 師 | 熊皓宇 | 案例造價 | 定制家|全包13萬 |
設計說明
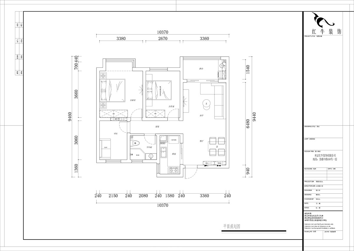
設計戶型:90㎡|3室2廳1衛
裝修方式:全包裝修
主材品牌:L&D瓷磚、李洋地板、戴勝木門、開來櫥柜、法恩莎潔具、奧普吊頂
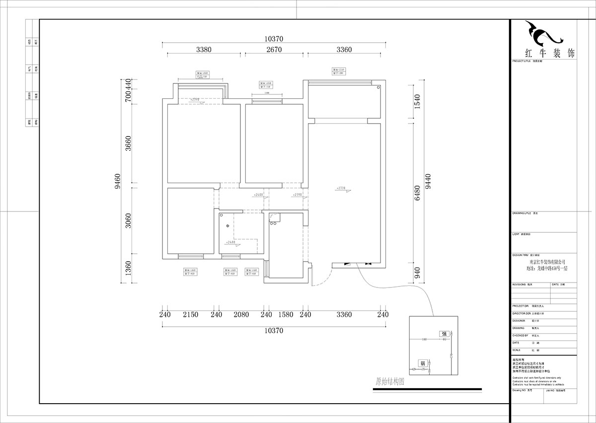
改造前建筑情況:
本案位于棲霞區堯化門板塊,交通便利,周邊醫療,教育,購物配置都比較齊全,業主選擇此處作為小孩婚房,考慮比較周全。此戶型為目前小三房戶型中比較常見的,有獨立的客餐廳,兩房朝南,一房朝北,采光和通風效果都較好。此戶型在我的作品中,至少有3套成品案例,在與業主的溝通交流后,都比較滿意。但因年輕人對時尚的追求,本案定義為灰色簡約現代風,硬裝與軟裝的單配,尤為重要。
方案設計說明:
本案風格定位現代風格。
1、簡約不等于簡單,它是經過深思熟慮后經過創新得出的設計和思路的延展,不是簡單的“堆砌”和平淡的“擺放”。
2、家庭的簡約不只是說裝修,還反映在家居配飾上的簡約。
3、在家具配置上,白亮光系列家具,獨特的光澤使家具倍感時尚,具有舒適與美觀并存的享受。在配飾上,延續了黑白灰的主色調,以簡潔的造型、完美的細節,營造出時尚前衛的感覺。
4、裝修的簡約一定要從務實出發,切忌盲目跟風而不考慮其他的因素。簡約的背后也體現一種現代“消費觀”。即注重生活品位、注重健康時尚、注重合理節約科學消費。


家裝攻略
- 二手房裝修舊房翻新太難了,想要裝修不求人?建議收藏!
- 工地巡檢:步履不停,以行動兌現品質承諾,嚴格把控每一環!
- 避坑指南:裝修坑多、水深?歸根結底五個字:信息不對稱
- 工地巡檢日:標準&品質是底線,專業&用心是態度!
- 好評如潮:曬一波熱乎的客戶評價,親身體驗過才最具有發言權!
- 最好的口碑,莫過于裝修業主的真實評價!
- 南京紅牛裝飾:始終如一,以品質說話,以服務鑄口碑!
- 再好的文案,都抵不過客戶的真實反饋!“三個最”【內附完工實景】
- 工地突擊巡檢|嚴把每一處細節,用心守護每一份安心!
- 南京紅牛裝飾再添榮譽,榮獲兩面錦旗,雙倍肯定,十分滿意!
- 南京115㎡現代簡約風裝修,每一處都將“實用”和“顏值”完美兼容!
- 裝修寶典:為何說企業文化是企業靈魂,是企業生存與發展的根本?
- 南京裝修公司紅牛裝飾工地突擊巡檢:一厘一毫堅守品質,一心一意守護新家!
- 南京裝修避坑指南:裝修材料的選擇,直接影響您入住新家的早晚?
- 南京比較靠譜的裝修公司?南京紅牛裝飾裝修寶典:新房裝修好多久可以入住?關鍵在于……
- 工地巡檢:雙節同慶,品質同行,嚴把每一道工序,用心守護夢想家!
- 避坑指南:老房改造二手舊房翻新注意這幾點,省心又省錢!
- 690億元!2025最后一批“國補”資金已下達!還可疊加企補!至高可省40000元!
- 【9月再添榮譽】業主說紅牛裝飾設計牛!監工牛!預算牛!超滿意!
- 九月秋意漸濃,南京紅牛裝飾工地巡檢步履不停,只為兌現品質承諾!


