| 案例風格 | 現代簡約風格 | 案例戶型 | 平層 | 案例面積 | 125㎡ |
|---|---|---|---|---|---|
| 樓盤名稱 | 蘇寧濱江壹號 | 設 計 師 | 熊皓宇 | 案例造價 | 定制家|全包20萬 |
設計說明
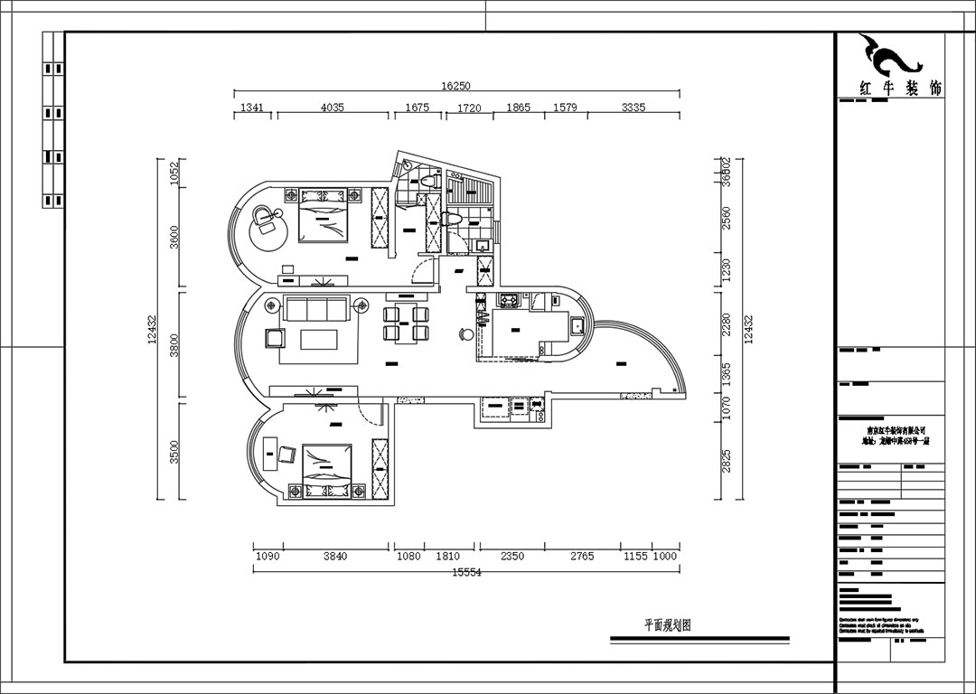
設計戶型:125㎡|2室2廳2衛
裝修類型:老房改造裝修
裝修方式:全包裝修
設計費服務費(元):8500
施工費(元):9萬
主材、輔材的材料費總和(元):11萬
費用總和(元):20萬
主材品牌:歐神諾瓷磚、圣象地板、金豪森木門、歐派櫥柜、法恩莎潔具、奧普吊頂
開工日期:2022年02月17日
竣工日期:2022年06月10日
項目經理:張志飛
改造前建筑缺陷:
房型整體比較規整,保留原始結構,打造輕松舒適的現代風居家環境。
方案設計說明:
本案以現代風格為主,融合了現代風格與輕奢風格的設計元素,以設計感與輕奢感為出發點,總體布局上滿足業主的個性化需求,打造適合業主舒適生活的居住空間。整體給人簡約大氣的氣息,沒有復雜的空間布局,每處都格外的干凈利落,現代實用,讓人感覺溫暖而舒適。
戶型方面尊重業主的意見,沒有過多調整,保留兩個衛生間滿足同時使用的需求,減少主衛面積打造屬于業主的衣帽間,整排的收納衣柜滿足業主的儲物需求;在餐廚空間設計上,打通廚房與餐廳的隔墻,增設一個吧臺,解決廚房窗戶狹小的問題,讓整個空間更加通透,同時增加設計的趣味性。
客餐廳的設計上,設計師在設計時希望能利用石材、軟包、木質線條、金屬、玻璃所表現出的質感,使其完美的呈現出現代時尚的裝飾美感。結合業主對于冷色調的喜愛,硬裝部分選擇了天藍色作為基調,而軟裝部分使用墨綠色和米白色點綴,并選擇全屋淺灰色墻布融合整個客餐廳設計,軟裝設計搭配上使用水晶吊燈、金屬臺燈和金屬飾品,讓客餐廳顯得舒適協調。
臥室的設計上,設計師選擇注重舒適氛圍的營造,在用色上講究和諧、統一,選擇色彩豐富的軟裝布置與冷色調的硬裝相融合,讓古典與輕奢相互碰撞,滿足業主的個性化設計需求。


家裝攻略
- 二手房裝修舊房翻新太難了,想要裝修不求人?建議收藏!
- 工地巡檢:步履不停,以行動兌現品質承諾,嚴格把控每一環!
- 避坑指南:裝修坑多、水深?歸根結底五個字:信息不對稱
- 工地巡檢日:標準&品質是底線,專業&用心是態度!
- 好評如潮:曬一波熱乎的客戶評價,親身體驗過才最具有發言權!
- 最好的口碑,莫過于裝修業主的真實評價!
- 南京紅牛裝飾:始終如一,以品質說話,以服務鑄口碑!
- 再好的文案,都抵不過客戶的真實反饋!“三個最”【內附完工實景】
- 工地突擊巡檢|嚴把每一處細節,用心守護每一份安心!
- 南京紅牛裝飾再添榮譽,榮獲兩面錦旗,雙倍肯定,十分滿意!
- 南京115㎡現代簡約風裝修,每一處都將“實用”和“顏值”完美兼容!
- 裝修寶典:為何說企業文化是企業靈魂,是企業生存與發展的根本?
- 南京裝修公司紅牛裝飾工地突擊巡檢:一厘一毫堅守品質,一心一意守護新家!
- 南京裝修避坑指南:裝修材料的選擇,直接影響您入住新家的早晚?
- 南京比較靠譜的裝修公司?南京紅牛裝飾裝修寶典:新房裝修好多久可以入住?關鍵在于……
- 工地巡檢:雙節同慶,品質同行,嚴把每一道工序,用心守護夢想家!
- 避坑指南:老房改造二手舊房翻新注意這幾點,省心又省錢!
- 690億元!2025最后一批“國補”資金已下達!還可疊加企補!至高可省40000元!
- 【9月再添榮譽】業主說紅牛裝飾設計牛!監工牛!預算牛!超滿意!
- 九月秋意漸濃,南京紅牛裝飾工地巡檢步履不停,只為兌現品質承諾!


